東京都文京区本郷1丁目(水道橋駅)の賃貸:物件詳細
交通 所在地 |
駅徒歩 |
賃料 管理費等 |
敷金/保証金 礼金 |
間取り 面積 |
物件種目 築年月 |
|
都営三田線/水道橋
東京都文京区本郷1丁目
|
4分
|
32.6万円
20,000円
|
1ヶ月 / なし
なし
|
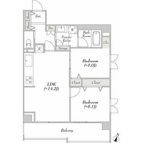
2LDK
60.00m²
|
賃貸マンション
1998年5月(築27年6ヶ月)
|
ペット相談、角部屋、南向き、二人入居可、2面採光、24時間換気システム、IT重説対応物件
|
|
間取図
|
外観
|
<
その他の画像
>
|
| 交通 | 都営三田線 水道橋駅 徒歩4分 |
|---|
| その他の交通 | 東京メトロ丸ノ内線 本郷三丁目駅 徒歩6分 JR総武線 水道橋駅 徒歩7分 |
| 所在地 |
東京都文京区本郷1丁目
|
| 物件種目 |
賃貸マンション |
| 賃料 |
32.6万円 |
管理費等 |
20,000円 |
| 敷金 / 保証金 |
1ヶ月 / なし |
礼金 |
なし |
| 敷引 |
- |
保証金償却 |
- |
| その他一時金 |
24時間サポート:16,500円、鍵交換代等:27,500円~ |
保険等 |
要 2年 22,000円 |
| 維持費等 |
- |
| 間取り |
2LDK(LDK14.2、洋5、洋6.1) |
専有面積 |
60.00m² |
| 築年月 |
1998年5月(築27年6ヶ月)
|
階建 / 階 |
9階建 / 2階 |
| 建物構造 |
SRC |
総戸数 |
- |
| 主要採光面 |
南 |
駐車場 |
- |
| バイク置き場 |
無 |
駐輪場 |
有 550円/月 |
| 建物名・部屋番号 |
ルミークアン本郷 201 |
ペット |
相談 |
| アピールポイント |
室内設備は浴室乾燥機・洗面化粧台などが揃っており、とても充実しています。セキュリティ面は、オートロック・TVインターホンなど充実しているので安心して生活できます。収納はクロゼット・シューズボックスなど豊富なので、広々と空間を利用することも可能です。留守中に注文した商品が届くので、配送時間を気にせず注文ができる宅配ボックスがあります。駐輪場付きのマンションです。設備や外観が充実しているマンションです。お友達を招待するのも恥ずかしくない物件。エレベーター付きの物件です。ペットと一緒に暮らしたい方にうれしい、ペット相談可の物件です。快適な暮らしを送るためのエアコンが設置されているマンションとなっています。3口コンロが付いているので、3つの料理を同時に進められて時短につながります。ご好評の物件なので入居日は2025年9月の期日指定とさせて頂きます。 |
| リフォーム履歴 |
- |
| リノベーション履歴 |
- |
| 備考 |
賃貸保証等:加入要(初回総賃料の40~60%)
管理形態/管理員の勤務形態:-/-
IT重説対応物件
短期解約違約金:1年未満解約で賃料の1ヶ月分
トランクルーム:7700円~33000円(税込)
ペット:飼育時は敷金1ヶ月積み増し償却
※居室内写真は別号室参考
掲載状況と現況が異なる場合は現況を優先とします。
室内設備は洗面所独立・浴室乾燥機など大変充実しております。共用部には宅配ボックスが付いているため、好きなタイミングで荷物を受け取ることができます。収納はシューズボックス・クロゼットなど豊富なので、衣類や履き物の整理がしやすく便利です。セキュリティ面は、TVインターホン・オートロックなどを設置しているので安全面でも優れております。駐輪場付きの物件です。敷地内ごみ置き場付き物件でゴミ出しを楽にできます。お部屋の広さ60㎡。バルコニー付きの物件で、用途に合わせて使用できおすすめです。周辺に駅が二つあり、交通の利便性が高いです。ニーズが高いからこその2025年9月の入居期日指定。二人で楽しい生活が送れるお住まいで生活費もおさえられます。
|
| エネルギー消費性能 |
- |
| 断熱性能 |
- |
| 目安光熱費 |
- |
| バス・トイレ |
バス・トイレ別、浴室乾燥機、追焚機能、洗面所独立、洗面所、洗面台、シャワー、温水洗浄便座、トイレ |
| キッチン |
カウンターキッチン、システムキッチン、3口以上コンロ、ガスコンロ可、グリル |
| セキュリティー |
モニター付オートロック、オートロック、モニター付インターホン |
| 収納 |
収納スペース、シューズインクローゼット、クローゼット、シューズボックス |
| 設備・サービス |
室内洗濯機置場、洗濯機置場、都市ガス給湯、給湯、フローリング、都市ガス、エアコン |
| TV・通信 |
- |
| その他 |
宅配BOX、バルコニー、駐輪場、エレベーター |
| 契約期間 |
2年 |
現況 |
空家 |
| 条件等 |
- |
入居可能時期 |
即時 |
| 更新料 |
新賃料 1ヶ月 |
物件番号 |
1110549515 |
| 情報公開日 |
2025年9月12日 |
次回更新予定日 |
2025年10月27日 |
| ケータイ用バーコード |
- スマートフォンでこの物件を見る
- スマートフォンからもこの物件をご覧になれます。
|
※「-」と表示されている項目については、情報提供会社にご確認ください。
| 周辺施設 |
東京ドームシティ アトラクションズ |
| 距離 |
456m |
写真を見る |
| 周辺施設 |
お茶の水公園 |
| 距離 |
928m |
写真を見る |
| 周辺施設 |
まいばすけっと 本郷2丁目店 |
| 距離 |
350m |
写真を見る |
| 周辺施設 |
メトロ・エム後楽園 |
| 距離 |
729m |
写真を見る |
| 周辺施設 |
順天堂大学医学部附属 順天堂医院 |
| 距離 |
584m |
写真を見る |
| 周辺施設 |
大坪会(医療法人社団)東都文京病院 |
| 距離 |
1071m |
写真を見る |
ここから簡単にお問い合わせをすることができます。
(SSLでの暗号化での送信を希望されるお客さまは
こちら
よりお問い合わせください)
お問い合わせを行う前に
「個人情報の取り扱いについて」を必ずお読みください。
「個人情報の取り扱いについて」に同意いただいた場合は「上記にご同意の上 確認画面へ進む」のボタンをクリックしてください。
個人情報の取り扱いについて
皆さまが送付された個人情報はアットホーム(株)のサーバを経由し、お問い合わせ先の不動産会社にメールまたはFAXにて転送されるためアットホーム(株)にも保管されます。アットホーム(株)で保管された個人情報の取り扱いについては、【こちら】をご覧ください。
また、本画面でご記入いただいた個人情報は、お問い合わせ先の不動産会社でも保管します。 お問い合わせ先の不動産会社が保管する個人情報の取り扱いについては、不動産会社に直接お問い合わせください。
国土交通大臣免許(4)第7400号 |
|---|
- 交通:
- 都営三田線/白山駅
- 東京都文京区白山5丁目35-6 QueenAnne1F
- TEL:
- 03-3830-7570
- 所属団体:
- (公社)全日本不動産協会会員(公社)首都圏不動産公正取引協議会加盟
取引態様:仲介  - 00277081
|
- スマートフォンで
この不動産会社を見る

|
- 提携サイト等より掲載されている物件情報につきましては、不動産会社詳細情報にリンクされていないものがあります。
- 物件に関するお問合せは、物件詳細ページの「情報提供会社」に表示されている不動産会社へ直接お願いいたします。
- 間取図は、現況を優先させていただきます。
- 映像は物件の一部を撮影したものです。物件の契約にあたっての最終判断はご自身の判断に基づいて行ってください。
- 仲介手数料について

アットホームは物件情報の適正化に努めております。
内容に誤りがある場合にはこちらへご連絡ください。