大阪府大阪市中央区松屋町住吉(松屋町駅)の賃貸:物件詳細
交通 所在地 |
駅徒歩 |
賃料 管理費等 |
敷金/保証金 礼金 |
間取り 面積 |
物件種目 築年月 |
|
地下鉄長堀鶴見緑地線/松屋町
大阪府大阪市中央区松屋町住吉
|
3分
|
20万円
20,000円
|
1ヶ月 / なし
2ヶ月
|
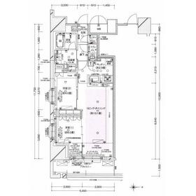
2LDK
61.22m²
|
賃貸マンション
2020年10月(築5年6ヶ月)
|
分譲タイプ、二人入居可、24時間換気システム
|
| 交通 | 地下鉄長堀鶴見緑地線 松屋町駅 徒歩3分 |
|---|
| その他の交通 | 地下鉄谷町線 谷町六丁目駅 徒歩8分 |
| 所在地 |
大阪府大阪市中央区松屋町住吉
|
| 物件種目 |
賃貸マンション |
| 賃料 |
20万円 |
管理費等 |
20,000円 |
| 敷金 / 保証金 |
1ヶ月 / なし |
礼金 |
2ヶ月 |
| 敷引 |
- |
保証金償却 |
- |
| その他一時金 |
クリーニング(契約時):79,200円、消臭・除菌(契約時):16,500円 |
保険等 |
要 2年 17,900円 |
| 維持費等 |
安心入居サポート:1,100円/月 |
| 間取り |
2LDK |
専有面積 |
61.22m² |
| 築年月 |
2020年10月(築5年6ヶ月)
|
階建 / 階 |
地上15階地下1階建 / 8階 |
| 建物構造 |
RC |
総戸数 |
- |
| 主要採光面 |
|
駐車場 |
空無 |
| バイク置き場 |
- |
駐輪場 |
- |
| 建物名・部屋番号 |
BRANZ 大阪松屋町 812 |
ペット |
-
|
| リフォーム履歴 |
- |
| リノベーション履歴 |
- |
| 備考 |
賃貸保証等:加入要(初回保証委託料:月支払総額の50%(最低保証料:20000円、家賃・共益費・駐車場等の付帯料込)/月額保証委託料:月額請求金額の2%(契約更新月は更新料含む))
管理形態/管理員の勤務形態:-/-
|
| エネルギー消費性能 |
- |
| 断熱性能 |
- |
| 目安光熱費 |
- |
| バス・トイレ |
バス・トイレ別、洗面所独立、温水洗浄便座 |
| キッチン |
カウンターキッチン、システムキッチン |
| セキュリティー |
オートロック、モニター付インターホン、ディンプルキー、ダブルロックドア、防犯カメラ |
| 収納 |
収納スペース、シューズインクローゼット |
| 設備・サービス |
都市ガス |
| TV・通信 |
インターネット使用料無料、ケーブルTV |
| その他 |
宅配BOX、バルコニー、エレベーター |
| 契約期間 |
2年 |
現況 |
空家 |
| 条件等 |
- |
入居可能時期 |
即時 |
| 更新料 |
新賃料 1ヶ月 |
物件番号 |
1110772614 |
| 情報公開日 |
2026年2月18日 |
次回更新予定日 |
2026年4月4日 |
| ケータイ用バーコード |
- スマートフォンでこの物件を見る
- スマートフォンからもこの物件をご覧になれます。
|
※「-」と表示されている項目については、情報提供会社にご確認ください。
ここから簡単にお問い合わせをすることができます。
(SSLでの暗号化での送信を希望されるお客さまは
こちら
よりお問い合わせください)
お問い合わせを行う前に
「個人情報の取り扱いについて」を必ずお読みください。
「個人情報の取り扱いについて」に同意いただいた場合は「上記にご同意の上 確認画面へ進む」のボタンをクリックしてください。
個人情報の取り扱いについて
皆さまが送付された個人情報はアットホーム(株)のサーバを経由し、お問い合わせ先の不動産会社にメールまたはFAXにて転送されるためアットホーム(株)にも保管されます。アットホーム(株)で保管された個人情報の取り扱いについては、【こちら】をご覧ください。
また、本画面でご記入いただいた個人情報は、お問い合わせ先の不動産会社でも保管します。 お問い合わせ先の不動産会社が保管する個人情報の取り扱いについては、不動産会社に直接お問い合わせください。
国土交通大臣免許(4)第7608号 |
|---|
- 交通:
- 地下鉄御堂筋線/本町駅 徒歩1分
- 大阪府大阪市中央区南本町3丁目6-14 イトゥビル7F
- TEL:
- 06-6281-8746
- FAX:
- 06-6281-8747
- 所属団体:
- (一社)不動産流通経営協会会員(公社)首都圏不動産公正取引協議会加盟
取引態様:代理  - 50005040
|
- スマートフォンで
この不動産会社を見る

|
- 提携サイト等より掲載されている物件情報につきましては、不動産会社詳細情報にリンクされていないものがあります。
- 物件に関するお問合せは、物件詳細ページの「情報提供会社」に表示されている不動産会社へ直接お願いいたします。
- 間取図は、現況を優先させていただきます。
- 映像は物件の一部を撮影したものです。物件の契約にあたっての最終判断はご自身の判断に基づいて行ってください。
- 仲介手数料について

アットホームは物件情報の適正化に努めております。
内容に誤りがある場合にはこちらへご連絡ください。