福岡県福岡市博多区中呉服町(呉服町駅)の賃貸:物件詳細
交通 所在地 |
駅徒歩 |
賃料 管理費等 |
敷金/保証金 礼金 |
間取り 面積 |
物件種目 築年月 |
|
地下鉄箱崎線/呉服町
福岡県福岡市博多区中呉服町
|
5分
|
11.7万円
4,000円
|
なし / なし
1ヶ月
|
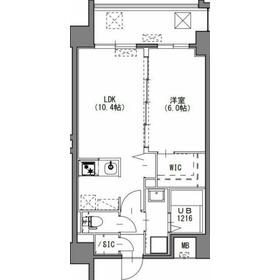
1LDK
39.32m²
|
賃貸マンション
2023年3月(築2年8ヶ月)
|
最上階、高齢者相談、二人入居可、24時間換気システム、IT重説対応物件、保証人不要
|
|
間取図
|
外観
|
<
その他の画像
>
|
| 交通 | 地下鉄箱崎線 呉服町駅 徒歩5分 |
|---|
| その他の交通 | 地下鉄箱崎線 千代県庁口駅 徒歩8分 地下鉄空港線 中洲川端駅 徒歩11分 |
| 所在地 |
福岡県福岡市博多区中呉服町
|
| 物件種目 |
賃貸マンション |
| 賃料 |
11.7万円 |
管理費等 |
4,000円 |
| 敷金 / 保証金 |
なし / なし |
礼金 |
1ヶ月 |
| 敷引 |
- |
保証金償却 |
- |
| その他一時金 |
室内清掃費用:77,000円、鍵交換代等:33,000円~ |
保険等 |
要 |
| 維持費等 |
町会費:500円/月 |
クレジットカード決済 |
初期費用可 |
| 間取り |
1LDK(LDK10.4、洋6) |
専有面積 |
39.32m² |
| 築年月 |
2023年3月(築2年8ヶ月)
|
階建 / 階 |
12階建 / 12階 |
| 建物構造 |
RC |
総戸数 |
- |
| 主要採光面 |
|
駐車場 |
近有 18,000円/月 |
| バイク置き場 |
有 |
駐輪場 |
有 |
| 建物名・部屋番号 |
S-RESIDENCE中呉服 |
ペット |
-
|
| アピールポイント |
室内設備は浴室乾燥機・洗面所独立などが揃っており、とても充実しています。セキュリティ面は、オートロック・TVインターホンなどを設置しているので安全面でも優れております。収納はウォークインクロゼット・シューズWICなどが備え付けられているので、衣類や日用品の収納に重宝します。共用部には宅配ボックスが付いているため、好きなタイミングで荷物を受け取ることができます。この物件は内観も綺麗で設備も充実した、令和5年築となっています。通信がとても快適な暮らしに嬉しい高速回線を導入しました。おかずや汁物など何品も作りたい人におすすめな2口コンロを備え付けております。12階建ての物件です。ぜひご覧いただきたい賃貸物件です。2路線利用可の物件です。エアコン付きなので暑い日も寒い日も安心して過ごせます。 |
| リフォーム履歴 |
- |
| リノベーション履歴 |
- |
| 備考 |
賃貸保証等:加入要(初回50%、更新時12,000円/年初回50%、更新時12,000円/年)
管理形態/管理員の勤務形態:-/-
IT重説対応物件、外壁コンクリート
物件のお問い合わせはSumoSumoまで♪♪
共用部には宅配ボックスを備え付けているため、対面で荷物を受け取る必要がありません。セキュリティ面は、TVインターホン・オートロックなどを備え付けているので安心して暮らせます。室内設備は洗面化粧台・浴室乾燥機など充実した設備を備え付けています。収納はクロゼット・シューズWICなど豊富なので、衣類や履き物の整理がしやすく便利です。駐輪場付きのマンションです。お住まいの近くには駐車場があるので、そちらをご利用ください。お部屋から徒歩5分の場所に駅が位置するので、毎日の移動時間を削減できます。快適に生活する上で欠かせないエアコンが設置されているマンションです。12階建ての物件です。落ち着いた生活ができるリビングとダイニングのある充実設備の1LDK。通風良好なマンションはいつでも気持ちの良い空間です。
|
| エネルギー消費性能 |
- |
| 断熱性能 |
- |
| 目安光熱費 |
- |
| バス・トイレ |
バス・トイレ別、浴室暖房、浴室乾燥機、シャワー付洗面化粧台、洗面所独立、洗面所、洗面台、シャワー、温水洗浄便座、トイレ |
| キッチン |
カウンターキッチン、システムキッチン、2口コンロ、ガスコンロ可、グリル |
| セキュリティー |
モニター付オートロック、オートロック、モニター付インターホン |
| 収納 |
ウォークインクローゼット、収納スペース、シューズインクローゼット、クローゼット |
| 設備・サービス |
室内洗濯機置場、洗濯機置場、給湯、全居室フローリング、フローリング、エアコン、冷房 |
| TV・通信 |
インターネット対応、インターネット使用料無料、CATVインターネット、ケーブルTV |
| その他 |
宅配BOX、バイク置き場、バルコニー、駐輪場、エレベーター |
| 契約期間 |
2年 |
現況 |
居住中 |
| 条件等 |
- |
入居可能時期 |
相談 |
| 更新料 |
- |
物件番号 |
1110972515 |
| 情報公開日 |
2025年9月12日 |
次回更新予定日 |
2025年10月27日 |
| ケータイ用バーコード |
- スマートフォンでこの物件を見る
- スマートフォンからもこの物件をご覧になれます。
|
※「-」と表示されている項目については、情報提供会社にご確認ください。
| 周辺施設 |
博多呉服郵便局 |
| 距離 |
109m |
写真を見る |
| 周辺施設 |
ローソン 博多中呉服町店 |
| 距離 |
125m |
写真を見る |
| 周辺施設 |
セブンイレブン 博多蔵本店 |
| 距離 |
236m |
写真を見る |
| 周辺施設 |
ファミリーマート 中呉服町店 |
| 距離 |
322m |
写真を見る |
| 周辺施設 |
マルショク 千代町店 |
| 距離 |
343m |
写真を見る |
| 周辺施設 |
タカラ薬局千代 |
| 距離 |
398m |
写真を見る |
ここから簡単にお問い合わせをすることができます。
(SSLでの暗号化での送信を希望されるお客さまは
こちら
よりお問い合わせください)
お問い合わせを行う前に
「個人情報の取り扱いについて」を必ずお読みください。
「個人情報の取り扱いについて」に同意いただいた場合は「上記にご同意の上 確認画面へ進む」のボタンをクリックしてください。
個人情報の取り扱いについて
皆さまが送付された個人情報はアットホーム(株)のサーバを経由し、お問い合わせ先の不動産会社にメールまたはFAXにて転送されるためアットホーム(株)にも保管されます。アットホーム(株)で保管された個人情報の取り扱いについては、【こちら】をご覧ください。
また、本画面でご記入いただいた個人情報は、お問い合わせ先の不動産会社でも保管します。 お問い合わせ先の不動産会社が保管する個人情報の取り扱いについては、不動産会社に直接お問い合わせください。
国土交通大臣免許(2)第9550号 |
|---|
- 交通:
- JR鹿児島本線/博多駅 徒歩5分
- 福岡県福岡市博多区博多駅前2丁目13-13 シャンソンビル博多4F
- TEL:
- 092-600-0801
- 所属団体:
- (公社)全日本不動産協会会員(公社)近畿地区不動産公正取引協議会加盟
取引態様:仲介  - 80507507
|
- スマートフォンで
この不動産会社を見る

|
- 提携サイト等より掲載されている物件情報につきましては、不動産会社詳細情報にリンクされていないものがあります。
- 物件に関するお問合せは、物件詳細ページの「情報提供会社」に表示されている不動産会社へ直接お願いいたします。
- 間取図は、現況を優先させていただきます。
- 映像は物件の一部を撮影したものです。物件の契約にあたっての最終判断はご自身の判断に基づいて行ってください。
- 仲介手数料について

アットホームは物件情報の適正化に努めております。
内容に誤りがある場合にはこちらへご連絡ください。