東京都品川区南品川6丁目(大井町駅)の賃貸:物件詳細
交通 所在地 |
駅徒歩 |
賃料 管理費等 |
敷金/保証金 礼金 |
間取り 面積 |
物件種目 築年月 |
|
JR京浜東北線/大井町
東京都品川区南品川6丁目
|
6分
|
10.5万円
5,000円
|
なし / なし
なし
|
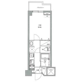
1K
21.84m²
|
賃貸マンション
1983年11月(築42年2ヶ月)
|
分譲タイプ、外観タイル張り
|
|
間取図
|
外観
|
<
その他の画像
>
|
|
|
| 交通 | JR京浜東北線 大井町駅 徒歩6分 |
|---|
| その他の交通 | 京急本線 青物横丁駅 徒歩8分 京急本線 鮫洲駅 徒歩14分 |
| 所在地 |
東京都品川区南品川6丁目
|
| 物件種目 |
賃貸マンション |
| 賃料 |
10.5万円 |
管理費等 |
5,000円 |
| 敷金 / 保証金 |
なし / なし |
礼金 |
なし |
| 敷引 |
- |
保証金償却 |
- |
| その他一時金 |
なし、鍵交換代等:39,600円~ |
保険等 |
要 |
| 維持費等 |
- |
クレジットカード決済 |
初期費用可 |
| 間取り |
1K |
専有面積 |
21.84m² |
| 築年月 |
1983年11月(築42年2ヶ月)
|
階建 / 階 |
地上9階地下1階建 / 2階 |
| 建物構造 |
SRC |
総戸数 |
195戸 |
| 主要採光面 |
西 |
駐車場 |
近有 33,000円/月 |
| バイク置き場 |
- |
駐輪場 |
- |
| 建物名・部屋番号 |
三越ゼームス坂マンション |
ペット |
-
|
| アピールポイント |
☆当店の強みをお伝えします☆
①クレジットカードの初期費用分割払いを、喜んでお受けいたします(クレジットカード以外もOK)
②他社様がネットに掲載されている物件は、全てお調べし、【好条件】でご紹介いたします
他社様で「お申込み」された物件でも、【好条件】でご紹介できる場合がございます
③「審査が不安…」「保証人がいない…」「値段交渉をして欲しい…」などなど、
どのようなご条件でも、遠慮なくご相談いただけます
④ご検討されている「エリア」「沿線」が「広範囲」「複数」でも、一度で漏れなくお探しいただけます
ポータルサイトや他社サイトで気になるお部屋がございましたらお気軽にご相談ください
お客様のご来店を心よりお待ちしております |
| リフォーム履歴 |
- |
| リノベーション履歴 |
- |
| 備考 |
賃貸保証等:加入要(初回:賃料等の50%、毎月収納代行手数料:550円、1年毎更新料:10000円)
管理形態/管理員の勤務形態:-/-
外壁コンクリート
火災保険加入必須(フレックス少額短期保険20000円2年)/エアコン清掃費用借主負担(退去時/退去時清掃費¥38500/短期解約違約金賃料管理費の1ヵ月分 1年未満解約となった場合請求となります/更新料 10000円1年間
|
| エネルギー消費性能 |
- |
| 断熱性能 |
- |
| 目安光熱費 |
- |
| バス・トイレ |
バス・トイレ別、温水洗浄便座、トイレ |
| キッチン |
ガスコンロ付 |
| セキュリティー |
オートロック、防犯カメラ |
| 収納 |
- |
| 設備・サービス |
フローリング、都市ガス、エアコン |
| TV・通信 |
インターネット対応、光ファイバー |
| その他 |
バルコニー、エレベーター |
| 契約期間 |
2年 |
現況 |
居住中 |
| 条件等 |
- |
入居可能時期 |
2026年2月上旬予定 |
| 更新料 |
- |
物件番号 |
1111010720 |
| 情報公開日 |
2025年12月15日 |
次回更新予定日 |
2025年12月29日 |
| ケータイ用バーコード |
- スマートフォンでこの物件を見る
- スマートフォンからもこの物件をご覧になれます。
|
※「-」と表示されている項目については、情報提供会社にご確認ください。
| 周辺施設 |
アトレ大井町2 |
| 距離 |
662m |
写真を見る |
| 周辺施設 |
まいばすけっとゼームス坂店 |
| 距離 |
395m |
写真を見る |
| 周辺施設 |
セブンイレブン南品川店 |
| 距離 |
376m |
写真を見る |
| 周辺施設 |
ユニバーサルドラッグ大井町店 |
| 距離 |
170m |
写真を見る |
| 周辺施設 |
ヤマダ電機LABI品川大井町住まいる家電館 |
| 距離 |
827m |
写真を見る |
| 周辺施設 |
うまい鮨勘大井町支店 |
| 距離 |
619m |
写真を見る |
| 周辺施設 |
南品川四郵便局 |
| 距離 |
460m |
写真を見る |
ここから簡単にお問い合わせをすることができます。
(SSLでの暗号化での送信を希望されるお客さまは
こちら
よりお問い合わせください)
お問い合わせを行う前に
「個人情報の取り扱いについて」を必ずお読みください。
「個人情報の取り扱いについて」に同意いただいた場合は「上記にご同意の上 確認画面へ進む」のボタンをクリックしてください。
個人情報の取り扱いについて
皆さまが送付された個人情報はアットホーム(株)のサーバを経由し、お問い合わせ先の不動産会社にメールまたはFAXにて転送されるためアットホーム(株)にも保管されます。アットホーム(株)で保管された個人情報の取り扱いについては、【こちら】をご覧ください。
また、本画面でご記入いただいた個人情報は、お問い合わせ先の不動産会社でも保管します。 お問い合わせ先の不動産会社が保管する個人情報の取り扱いについては、不動産会社に直接お問い合わせください。
国土交通大臣免許(3)第8522号 |
|---|
- 交通:
- JR京浜東北線/川崎駅 徒歩1分
- 神奈川県川崎市川崎区駅前本町11-1 パシフィックマークス川崎 8階
- TEL:
- 044-221-4180
- FAX:
- 044-221-4181
- 所属団体:
- (公社)全日本不動産協会会員(公社)首都圏不動産公正取引協議会加盟
取引態様:仲介  - 00785866
|
- スマートフォンで
この不動産会社を見る

|
- 提携サイト等より掲載されている物件情報につきましては、不動産会社詳細情報にリンクされていないものがあります。
- 物件に関するお問合せは、物件詳細ページの「情報提供会社」に表示されている不動産会社へ直接お願いいたします。
- 間取図は、現況を優先させていただきます。
- 映像は物件の一部を撮影したものです。物件の契約にあたっての最終判断はご自身の判断に基づいて行ってください。
- 仲介手数料について

アットホームは物件情報の適正化に努めております。
内容に誤りがある場合にはこちらへご連絡ください。