北海道札幌市中央区北六条西19丁目(西18丁目駅)の賃貸:物件詳細
交通 所在地 |
駅徒歩 |
賃料 管理費等 |
敷金/保証金 礼金 |
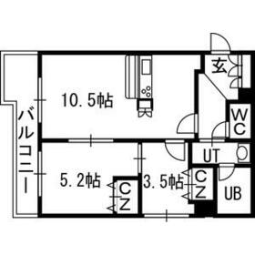
間取り 面積 |
物件種目 築年月 |
|
札幌市東西線/西18丁目
北海道札幌市中央区北六条西19丁目
|
14分
|
6.9万円
6,000円
|
なし / なし
なし
|
2LDK
43.12m²
|
賃貸マンション
2006年8月(築19年7ヶ月)
|
24時間セキュリティー、24時間換気システム、閑静な住宅街、ロードヒーティング
|
|
間取図
|
外観
|
<
その他の画像
>
|
| 交通 | 札幌市東西線 西18丁目駅 徒歩14分 |
|---|
| その他の交通 | 札幌市東西線 西28丁目駅 徒歩14分 JR札沼線 桑園駅 徒歩15分 |
| 所在地 |
北海道札幌市中央区北六条西19丁目
|
| 物件種目 |
賃貸マンション |
| 賃料 |
6.9万円 |
管理費等 |
6,000円 |
| 敷金 / 保証金 |
なし / なし |
礼金 |
なし |
| 敷引 |
実費 |
保証金償却 |
- |
| その他一時金 |
カギ交換費:9,900円 |
保険等 |
要 2年 20,000円 |
| 維持費等 |
24時間管理料:1,430円/月 |
クレジットカード決済 |
初期費用可 |
| 間取り |
2LDK(LD10.5 K2 洋4.1 洋5.2) |
専有面積 |
43.12m² |
| 築年月 |
2006年8月(築19年7ヶ月)
|
階建 / 階 |
7階建 / 4階 |
| 建物構造 |
RC |
総戸数 |
22戸 |
| 主要採光面 |
西 |
駐車場 |
有 14,300円/月 |
| バイク置き場 |
無 |
駐輪場 |
有 |
| 建物名・部屋番号 |
Ambiente619 00405 |
ペット |
-
|
| リフォーム履歴 |
- |
| リノベーション履歴 |
- |
| 備考 |
賃貸保証等:利用可(保証会社:ROOM iD(エポスカード)初回保証料は月額家賃等の50%(下限1万5千円)、月次保証料は1.5%)
管理形態/管理員の勤務形態:-/-
[退去時費用 退去費用実費精算※故意・過失等別途実費] タカラBB設備保守費3,300円(税込)(利用の有無に関わらず)、清掃料40,700円(税込)退去時払い、エポスカード以外の保証会社使用もご相談可能です。 駐車場の空き状況等は [要確認] NO:110700620
|
| エネルギー消費性能 |
- |
| 断熱性能 |
- |
| 目安光熱費 |
- |
| バス・トイレ |
バス・トイレ別、シャワー付洗面化粧台、洗面所独立、洗面台、シャワー、トイレ |
| キッチン |
カウンターキッチン、システムキッチン、2口コンロ、ガスコンロ可、グリル |
| セキュリティー |
オートロック、モニター付インターホン、火災警報器(報知機) |
| 収納 |
収納スペース、クローゼット、シューズボックス |
| 設備・サービス |
室内洗濯機置場、給湯、プロパンガス、FF暖房、暖房、灯油、複層ガラス |
| TV・通信 |
インターネット対応、インターネット使用料無料、光ファイバー、ケーブルTV |
| その他 |
宅配BOX、バルコニー、駐輪場、エレベーター |
| 契約期間 |
2年 |
現況 |
空家 |
| 条件等 |
- |
入居可能時期 |
即時 |
| 更新料 |
- |
物件番号 |
1111194922 |
| 情報公開日 |
2026年2月5日 |
次回更新予定日 |
2026年2月20日 |
| ケータイ用バーコード |
- スマートフォンでこの物件を見る
- スマートフォンからもこの物件をご覧になれます。
|
※「-」と表示されている項目については、情報提供会社にご確認ください。
| 周辺施設 |
セイコーマート |
| 距離 |
91m |
写真を見る |
| 周辺施設 |
(株)北洋銀行/中央区北五条通支店 |
| 距離 |
336m |
写真を見る |
| 周辺施設 |
まいばすけっと |
| 距離 |
350m |
写真を見る |
| 周辺施設 |
ヴィクトリアステーション北5条店 |
| 距離 |
491m |
写真を見る |
| 周辺施設 |
札幌龍谷学園高等学校 |
| 距離 |
421m |
写真を見る |
ここから簡単にお問い合わせをすることができます。
(SSLでの暗号化での送信を希望されるお客さまは
こちら
よりお問い合わせください)
お問い合わせを行う前に
「個人情報の取り扱いについて」を必ずお読みください。
「個人情報の取り扱いについて」に同意いただいた場合は「上記にご同意の上 確認画面へ進む」のボタンをクリックしてください。
個人情報の取り扱いについて
皆さまが送付された個人情報はアットホーム(株)のサーバを経由し、お問い合わせ先の不動産会社にメールまたはFAXにて転送されるためアットホーム(株)にも保管されます。アットホーム(株)で保管された個人情報の取り扱いについては、【こちら】をご覧ください。
また、本画面でご記入いただいた個人情報は、お問い合わせ先の不動産会社でも保管します。 お問い合わせ先の不動産会社が保管する個人情報の取り扱いについては、不動産会社に直接お問い合わせください。
国土交通大臣免許(4)第7144号 |
|---|
- 交通:
- JR函館本線/琴似駅
- 北海道札幌市西区琴似一条2丁目6-8 ライオンズマンション琴似2階
- TEL:
- 011-633-7199
- FAX:
- 011-633-7198
- 所属団体:
- (公社)北海道宅地建物取引業協会会員(一社)北海道不動産公正取引協議会加盟
取引態様:仲介  - 99021185
|
- スマートフォンで
この不動産会社を見る

|
- 提携サイト等より掲載されている物件情報につきましては、不動産会社詳細情報にリンクされていないものがあります。
- 物件に関するお問合せは、物件詳細ページの「情報提供会社」に表示されている不動産会社へ直接お願いいたします。
- 間取図は、現況を優先させていただきます。
- 映像は物件の一部を撮影したものです。物件の契約にあたっての最終判断はご自身の判断に基づいて行ってください。
- 仲介手数料について

アットホームは物件情報の適正化に努めております。
内容に誤りがある場合にはこちらへご連絡ください。