京都府京都市上京区四町目(丸太町駅)の賃貸:物件詳細
交通 所在地 |
駅徒歩 |
賃料 管理費等 |
敷金/保証金 礼金 |
間取り 面積 |
物件種目 築年月 |
|
地下鉄烏丸線/丸太町
京都府京都市上京区四町目
|
15分
|
22.58万円
29,230円
|
なし / なし
26万円
|
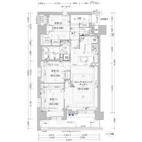
3LDK
65.41m²
|
賃貸マンション
2024年3月(築2年1ヶ月)
|
分譲タイプ、常時ゴミ出し可能、角部屋
|
|
間取図
|
外観
|
その他の画像
|
| 交通 | 地下鉄烏丸線 丸太町駅 徒歩15分 |
|---|
| その他の交通 | 地下鉄東西線 二条城前駅 徒歩14分 地下鉄烏丸線 今出川駅 徒歩20分 |
| 所在地 |
京都府京都市上京区四町目
|
| 物件種目 |
賃貸マンション |
| 賃料 |
22.58万円 |
管理費等 |
29,230円 |
| 敷金 / 保証金 |
なし / なし |
礼金 |
26万円 |
| 敷引 |
- |
保証金償却 |
- |
| その他一時金 |
退去時清掃代:55,000円 |
保険等 |
要 1年 11,000円 |
| 維持費等 |
プレサポ24:990円/月 |
| 間取り |
3LDK(洋室4.2畳/洋室4.5畳/洋室5.2畳/LDK15.6畳) |
専有面積 |
65.41m² |
| 築年月 |
2024年3月(築2年1ヶ月)
|
階建 / 階 |
7階建 / 2階 |
| 建物構造 |
RC |
総戸数 |
- |
| 主要採光面 |
西 |
駐車場 |
- |
| バイク置き場 |
- |
駐輪場 |
有 |
| 建物名・部屋番号 |
プレサンスロジェ京都御所西 201 |
ペット |
-
|
| リフォーム履歴 |
- |
| リノベーション履歴 |
- |
| 備考 |
管理形態/管理員の勤務形態:-/-
|
| エネルギー消費性能 |
- |
| 断熱性能 |
- |
| 目安光熱費 |
- |
| バス・トイレ |
バス・トイレ別、浴室乾燥機、追焚機能、洗面所独立、洗面台、シャワー、温水洗浄便座、トイレ |
| キッチン |
システムキッチン、3口以上コンロ、ガスコンロ付 |
| セキュリティー |
モニター付オートロック、オートロック、モニター付インターホン、ディンプルキー、防犯カメラ |
| 収納 |
クローゼット、シューズボックス |
| 設備・サービス |
床暖房、室内洗濯機置場、給湯、全居室フローリング、フローリング、都市ガス |
| TV・通信 |
インターネット対応、インターネット使用料無料、BS端子 |
| その他 |
宅配BOX、バルコニー、駐輪場、エレベーター |
| 契約期間 |
1年 |
現況 |
空家 |
| 条件等 |
- |
入居可能時期 |
即時 |
| 更新料 |
11,000円 |
物件番号 |
1111274317 |
| 情報公開日 |
2026年1月15日 |
次回更新予定日 |
2026年4月2日 |
| ケータイ用バーコード |
- スマートフォンでこの物件を見る
- スマートフォンからもこの物件をご覧になれます。
|
※「-」と表示されている項目については、情報提供会社にご確認ください。
| 周辺施設 |
フレスコ堀川店 |
| 距離 |
303m |
写真を見る |
| 周辺施設 |
ファミリーマート 長者亀屋町店 |
| 距離 |
303m |
写真を見る |
| 周辺施設 |
ローソン 丸太町小川店 |
| 距離 |
303m |
写真を見る |
| 周辺施設 |
薬ヒグチ 中立売店 |
| 距離 |
388m |
写真を見る |
| 周辺施設 |
ホームセンターコーナン 西陣上七軒店 |
| 距離 |
182m |
写真を見る |
ここから簡単にお問い合わせをすることができます。
(SSLでの暗号化での送信を希望されるお客さまは
こちら
よりお問い合わせください)
お問い合わせを行う前に
「個人情報の取り扱いについて」を必ずお読みください。
「個人情報の取り扱いについて」に同意いただいた場合は「上記にご同意の上 確認画面へ進む」のボタンをクリックしてください。
個人情報の取り扱いについて
皆さまが送付された個人情報はアットホーム(株)のサーバを経由し、お問い合わせ先の不動産会社にメールまたはFAXにて転送されるためアットホーム(株)にも保管されます。アットホーム(株)で保管された個人情報の取り扱いについては、【こちら】をご覧ください。
また、本画面でご記入いただいた個人情報は、お問い合わせ先の不動産会社でも保管します。 お問い合わせ先の不動産会社が保管する個人情報の取り扱いについては、不動産会社に直接お問い合わせください。
京都府知事免許(5)第11502号 |
|---|
- 交通:
- 地下鉄烏丸線/今出川駅 徒歩1分
- 京都府京都市上京区今出川通室町東入今出川町333 第2高橋ビル2F
- TEL:
- 075-417-3337
- 所属団体:
- (公社)全日本不動産協会会員(公社)近畿地区不動産公正取引協議会加盟
取引態様:仲介  - 50016430
|
- スマートフォンで
この不動産会社を見る

|
- 提携サイト等より掲載されている物件情報につきましては、不動産会社詳細情報にリンクされていないものがあります。
- 物件に関するお問合せは、物件詳細ページの「情報提供会社」に表示されている不動産会社へ直接お願いいたします。
- 間取図は、現況を優先させていただきます。
- 映像は物件の一部を撮影したものです。物件の契約にあたっての最終判断はご自身の判断に基づいて行ってください。
- 仲介手数料について

アットホームは物件情報の適正化に努めております。
内容に誤りがある場合にはこちらへご連絡ください。