東京都中央区勝どき4丁目(勝どき駅)の賃貸:物件詳細
交通 所在地 |
駅徒歩 |
賃料 管理費等 |
敷金/保証金 礼金 |
間取り 面積 |
物件種目 築年月 |
都営大江戸線/勝どき
東京都中央区勝どき4丁目
|
2分
|
38万円
なし
|
1ヶ月 / なし
2ヶ月
|
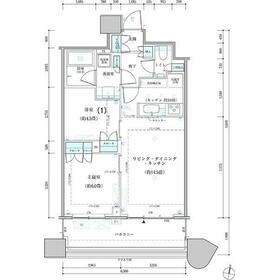
2LDK
56.52m²
|
賃貸マンション
2023年8月(築2年3ヶ月)
|
ペット相談、楽器相談、分譲タイプ、常時ゴミ出し可能、南向き、高齢者相談、24時間セキュリティー、24時間換気システム、IT重説対応物件
|
間取図
|
外観
|
<
その他の画像
>
|
交通 | 都営大江戸線 勝どき駅 徒歩2分 |
---|
その他の交通 | 都営大江戸線 月島駅 徒歩13分 東京メトロ日比谷線 築地駅 徒歩20分 |
所在地 |
東京都中央区勝どき4丁目
|
物件種目 |
賃貸マンション |
賃料 |
38万円 |
管理費等 |
なし |
敷金 / 保証金 |
1ヶ月 / なし |
礼金 |
2ヶ月 |
敷引 |
- |
保証金償却 |
- |
その他一時金 |
室内清掃費用:105,692円、鍵交換代等:33,000円~ |
保険等 |
要 2年 20,000円 |
維持費等 |
口座振替事務手数料():110円/月 |
クレジットカード決済 |
初期費用可 |
間取り |
2LDK |
専有面積 |
56.52m² |
築年月 |
2023年8月(築2年3ヶ月)
|
階建 / 階 |
地上58階地下3階建 / 9階 |
建物構造 |
RC |
総戸数 |
- |
主要採光面 |
南 |
駐車場 |
有 32,000円/月 |
バイク置き場 |
有 |
駐輪場 |
有 |
建物名・部屋番号 |
パークタワー勝どき サウス |
ペット |
相談 |
アピールポイント |
セキュリティ面は、オートロック・TVインターホンなどを設置しているので安全面でも優れております。共用部にはゴミ出し24時間OK・宅配ボックスなどが備わっておりとても充実しています。収納はクロゼット・シューズボックス・全居室収納など豊富なので、広々と空間を利用することも可能です。室内設備は洗面化粧台・浴室乾燥機・食器洗乾燥機などが揃っているので、快適に過ごしやすいお部屋になります。CATV受信環境があり、地域に密着した独自の番組も楽しめます。こちらの物件では、駐車場が月額32000円でご利用いただけます。転居先に住み心地も良いこちらの賃貸物件。充実した新生活を過ごしましょう。システムキッチンで快適にクッキングを楽しみましょう。簡単に温度管理できるエアコン付きのマンション。キレイな設備がそろった築浅のお部屋。2LDKでダイニングキッチンリビングで家族の仲が深まる。 |
リフォーム履歴 |
- |
リノベーション履歴 |
- |
備考 |
賃貸保証等:加入要([保証会社]加入要[保証会社名]レジデントアシスタンス株式会社[保証会社利用料]初回保証委託料(最低20,000円):月額賃料等の50%、 2年目以降:9,600円\\/年)
管理形態/管理員の勤務形態:-/-
IT重説対応物件
※1年未満解約時違約金有★同タイプ・別階の内観写真を掲載している場合があります。図面と現況が異なる場合は現況を優先いたします。
室内設備は洗面化粧台・浴室乾燥機・食器洗乾燥機などが揃っており、とても充実しています。セキュリティ面は、TVインターホン・オートロックなどを設置しているので安全面でも優れております。収納はシューズボックス・クロゼット・全居室収納など豊富なので、広々と空間を利用することも可能です。共用部には宅配ボックス・ゴミ出し24時間OKなどが揃っており、とても充実しています。駅まで徒歩2分の立地が魅力的な、利便性の高い物件です。この物件はチューナーのご用意とご契約だけでBSを楽しめます。敷地内の駐車場に空きがあるので、是非ご利用ください。初期費用のカード決済ができます。ピアノの演奏をしたい方は当社までご相談下さい。外装もおしゃれで快適な生活をおくることができるマンションです。システムキッチン付きで、お料理と後片付けが手早くできます。
|
エネルギー消費性能 |
- |
断熱性能 |
- |
目安光熱費 |
- |
バス・トイレ |
バス・トイレ別、浴室乾燥機、追焚機能、洗面所独立、洗面所、シャワー、温水洗浄便座、トイレ |
キッチン |
カウンターキッチン、システムキッチン、食器洗浄乾燥機、ディスポーザー、3口以上コンロ、ガスコンロ可、グリル |
セキュリティー |
モニター付オートロック、オートロック、モニター付インターホン、ディンプルキー、ダブルロックドア、防犯カメラ |
収納 |
全居室収納、収納スペース、クローゼット、シューズボックス |
設備・サービス |
床暖房、室内洗濯機置場、洗濯機置場、全居室フローリング、フローリング、都市ガス、エアコン、暖房、冷房 |
TV・通信 |
インターネット対応、光ファイバー、ケーブルTV、CS、BS端子 |
その他 |
宅配BOX、共用シアタールーム、バイク置き場、エレベーター2基以上、共用ゲストルーム、バルコニー、駐輪場、エレベーター |
契約期間 |
2年 |
現況 |
居住中 |
条件等 |
定期借家 |
入居可能時期 |
2025年12月中旬予定 |
更新料 |
- |
物件番号 |
1111416615 |
情報公開日 |
2025年9月13日 |
次回更新予定日 |
2025年10月23日 |
ケータイ用バーコード |
- スマートフォンでこの物件を見る
- スマートフォンからもこの物件をご覧になれます。
|
※「-」と表示されている項目については、情報提供会社にご確認ください。
周辺施設 |
サイゼリヤ 勝どきビュータワー店 |
距離 |
490m |
写真を見る |
周辺施設 |
ドトールコーヒーショップ 勝どき店 |
距離 |
507m |
写真を見る |
周辺施設 |
月島第二児童公園 |
距離 |
407m |
写真を見る |
周辺施設 |
マルエツ 晴海三丁目店 |
距離 |
880m |
写真を見る |
周辺施設 |
ローソン パークタワー勝どきミッド店 |
距離 |
206m |
写真を見る |
周辺施設 |
セブンイレブン ベイシティ晴海店 |
距離 |
689m |
写真を見る |
周辺施設 |
パンダ薬局 勝どき店 |
距離 |
127m |
写真を見る |
周辺施設 |
勝どき小児クリニック |
距離 |
645m |
写真を見る |
ここから簡単にお問い合わせをすることができます。
(SSLでの暗号化での送信を希望されるお客さまは
こちら
よりお問い合わせください)
お問い合わせを行う前に
「個人情報の取り扱いについて」を必ずお読みください。
「個人情報の取り扱いについて」に同意いただいた場合は「上記にご同意の上 確認画面へ進む」のボタンをクリックしてください。
個人情報の取り扱いについて
皆さまが送付された個人情報はアットホーム(株)のサーバを経由し、お問い合わせ先の不動産会社にメールまたはFAXにて転送されるためアットホーム(株)にも保管されます。アットホーム(株)で保管された個人情報の取り扱いについては、【こちら】をご覧ください。
また、本画面でご記入いただいた個人情報は、お問い合わせ先の不動産会社でも保管します。 お問い合わせ先の不動産会社が保管する個人情報の取り扱いについては、不動産会社に直接お問い合わせください。
東京都知事免許(1)第109763号 |
---|
- 交通:
- 東京メトロ有楽町線/銀座一丁目駅 徒歩3分
- 東京都中央区銀座1丁目5-1 Holon GinzaⅡ
- TEL:
- 03-5962-8933
- FAX:
- 03-5962-8933
- 所属団体:
- (公社)東京都宅地建物取引業協会会員(公社)首都圏不動産公正取引協議会加盟
取引態様:仲介  - 00275939
|
- スマートフォンで
この不動産会社を見る

|
- 提携サイト等より掲載されている物件情報につきましては、不動産会社詳細情報にリンクされていないものがあります。
- 物件に関するお問合せは、物件詳細ページの「情報提供会社」に表示されている不動産会社へ直接お願いいたします。
- 間取図は、現況を優先させていただきます。
- 映像は物件の一部を撮影したものです。物件の契約にあたっての最終判断はご自身の判断に基づいて行ってください。
- 仲介手数料について

アットホームは物件情報の適正化に努めております。
内容に誤りがある場合にはこちらへご連絡ください。