大阪府大阪市西区本田2丁目(九条駅)の賃貸:物件詳細
交通 所在地 |
駅徒歩 |
賃料 管理費等 |
敷金/保証金 礼金 |
間取り 面積 |
物件種目 築年月 |
|
地下鉄中央線/九条
大阪府大阪市西区本田2丁目
|
6分
|
7.85万円
6,000円
|
なし / なし
1ヶ月
|
1DK
25.66m²
|
賃貸マンション
2026年3月
|
ペット相談、常時ゴミ出し可能、二人入居可、24時間換気システム、バリアフリー、閑静な住宅街、外観タイル張り
|
|
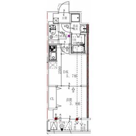
間取図
ARCA九条
|
外観
ARCA九条
|
<
その他の画像
>
|
| 交通 | 地下鉄中央線 九条駅 徒歩6分 |
|---|
| その他の交通 | 地下鉄長堀鶴見緑地線 西長堀駅 徒歩15分 地下鉄長堀鶴見緑地線 ドーム前千代崎駅 徒歩12分 |
| 所在地 |
大阪府大阪市西区本田2丁目
|
| 物件種目 |
賃貸マンション |
| 賃料 |
7.85万円 |
管理費等 |
6,000円 |
| 敷金 / 保証金 |
なし / なし |
礼金 |
1ヶ月 |
| 敷引 |
- |
保証金償却 |
- |
| その他一時金 |
なし |
保険等 |
要 2年 17,000円 |
| 維持費等 |
マルチサポート:1,100円/月 |
クレジットカード決済 |
初期費用可 |
| 間取り |
1DK(DK5.7、洋3.8) |
専有面積 |
25.66m² |
| 築年月 |
2026年3月
|
階建 / 階 |
10階建 / 4階 |
| 建物構造 |
RC |
総戸数 |
- |
| 主要採光面 |
東 |
駐車場 |
近有 33,000円/月 |
| バイク置き場 |
有 2,200円/月 |
駐輪場 |
有 330円/月 |
| 建物名・部屋番号 |
ARCA九条 |
ペット |
小型犬可・ 猫可 |
| リフォーム履歴 |
- |
| リノベーション履歴 |
- |
| 備考 |
賃貸保証等:加入要(初回保証料:月額総賃料の50% 1年更新:10,000円)
管理形態/管理員の勤務形態:-/巡回
バルコニー:5m²
管理人巡回
お料理を良くされる方にはシステムキッチン付きのこちらの物件をご紹介しております。物件の不備も定期的にメンテナンスしてくれるので安心。こちらはペット飼育可の物件です。インターネットが無料であるため、利用料を気にすることなくネットを使用でき映画やドラマをたくさん見たい方にもおすすめです。魅力的な駅近の物件で、駅まで徒歩6分です。入居者に安心して暮らしていただけるように、建物の共用部に防犯カメラを備え付けております。セキュリティ面は、TVインターホン・オートロックなど充実しているので安心して生活できます。室内設備は洗面所独立・浴室乾燥機などが揃っており、とても充実しています。共用部にはゴミ出し24時間OK・宅配ボックスなど様々な設備やサービスが揃っているので便利です。収納はクロゼット・シューズボックス・全居室収納などが備え付けられているので、衣類や日用品の収納に重宝します。ぜひ一度見ていただきたい、「ARCA九条」です。
|
| エネルギー消費性能 |
- |
| 断熱性能 |
- |
| 目安光熱費 |
- |
| バス・トイレ |
バス・トイレ別、浴室乾燥機、シャワー付洗面化粧台、洗面所独立、洗面所、洗面台、シャワー、温水洗浄便座、トイレ |
| キッチン |
システムキッチン、2口コンロ、ガスコンロ可 |
| セキュリティー |
モニター付オートロック、オートロック、モニター付インターホン、ディンプルキー、ダブルロックドア、防犯カメラ |
| 収納 |
全居室収納、収納スペース、クローゼット、シューズボックス |
| 設備・サービス |
室内洗濯機置場、洗濯機置場、都市ガス給湯、給湯、全居室フローリング、フローリング、都市ガス、エアコン、冷房、人感センサー付照明 |
| TV・通信 |
インターネット対応、インターネット使用料無料、CATVインターネット、ケーブルTV、CS、BS端子 |
| その他 |
宅配BOX、バイク置き場、バルコニー、駐輪場、エレベーター |
| 契約期間 |
2年 |
現況 |
未完成 |
| 条件等 |
- |
入居可能時期 |
2026年4月上旬予定 |
| 更新料 |
- |
物件番号 |
1111471225 |
| 情報公開日 |
2026年3月24日 |
次回更新予定日 |
2026年4月7日 |
| ケータイ用バーコード |
- スマートフォンでこの物件を見る
- スマートフォンからもこの物件をご覧になれます。
|
※「-」と表示されている項目については、情報提供会社にご確認ください。
| 周辺施設 |
スーパー玉出 九条店 |
| 距離 |
460m |
写真を見る |
| 周辺施設 |
KOHYO(コーヨー) 堀江店鮮度館 |
| 距離 |
1269m |
写真を見る |
| 周辺施設 |
関西スーパー 南堀江店 |
| 距離 |
1468m |
写真を見る |
| 周辺施設 |
イオンモール大阪ドームシティ |
| 距離 |
877m |
写真を見る |
| 周辺施設 |
セブンイレブン 大阪本田3丁目店 |
| 距離 |
362m |
写真を見る |
| 周辺施設 |
スーパービバホーム 大阪ドームシティ店 |
| 距離 |
1204m |
写真を見る |
| 周辺施設 |
ホームセンターコーナン西本町店 |
| 距離 |
1741m |
写真を見る |
| 周辺施設 |
マツモトキヨシ 九条店 |
| 距離 |
264m |
写真を見る |
ここから簡単にお問い合わせをすることができます。
(SSLでの暗号化での送信を希望されるお客さまは
こちら
よりお問い合わせください)
お問い合わせを行う前に
「個人情報の取り扱いについて」を必ずお読みください。
「個人情報の取り扱いについて」に同意いただいた場合は「上記にご同意の上 確認画面へ進む」のボタンをクリックしてください。
個人情報の取り扱いについて
皆さまが送付された個人情報はアットホーム(株)のサーバを経由し、お問い合わせ先の不動産会社にメールまたはFAXにて転送されるためアットホーム(株)にも保管されます。アットホーム(株)で保管された個人情報の取り扱いについては、【こちら】をご覧ください。
また、本画面でご記入いただいた個人情報は、お問い合わせ先の不動産会社でも保管します。 お問い合わせ先の不動産会社が保管する個人情報の取り扱いについては、不動産会社に直接お問い合わせください。
大阪府知事免許(3)第58754号 |
|---|
- 交通:
- 地下鉄谷町線/谷町四丁目駅 徒歩1分
- 大阪府大阪市中央区内本町1丁目2-11 ウタカビル2F
- TEL:
- 06-6937-5666
- FAX:
- 06-6937-5667
- 所属団体:
- (公社)全日本不動産協会会員(公社)近畿地区不動産公正取引協議会加盟
取引態様:仲介  - 50107727
|
- スマートフォンで
この不動産会社を見る

|
- 提携サイト等より掲載されている物件情報につきましては、不動産会社詳細情報にリンクされていないものがあります。
- 物件に関するお問合せは、物件詳細ページの「情報提供会社」に表示されている不動産会社へ直接お願いいたします。
- 間取図は、現況を優先させていただきます。
- 映像は物件の一部を撮影したものです。物件の契約にあたっての最終判断はご自身の判断に基づいて行ってください。
- 仲介手数料について

アットホームは物件情報の適正化に努めております。
内容に誤りがある場合にはこちらへご連絡ください。