東京都渋谷区恵比寿南1丁目(恵比寿駅)の賃貸:物件詳細
交通 所在地 |
駅徒歩 |
賃料 管理費等 |
敷金/保証金 礼金 |
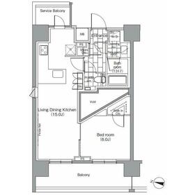
間取り 面積 |
物件種目 築年月 |
|
東京メトロ日比谷線/恵比寿
東京都渋谷区恵比寿南1丁目
|
2分
|
29.1万円
15,000円
|
1ヶ月 / なし
1ヶ月
|
1LDK
47.52m²
|
賃貸マンション
2013年10月(築12年6ヶ月)
|
ペット相談、楽器相談、角部屋
|
|
間取図
|
外観
|
<
その他の画像
>
|
| 交通 | 東京メトロ日比谷線 恵比寿駅 徒歩2分 |
|---|
| その他の交通 | JR山手線 恵比寿駅 徒歩3分 |
| 所在地 |
東京都渋谷区恵比寿南1丁目
|
| 物件種目 |
賃貸マンション |
| 賃料 |
29.1万円 |
管理費等 |
15,000円 |
| 敷金 / 保証金 |
1ヶ月 / なし |
礼金 |
1ヶ月 |
| 敷引 |
- |
保証金償却 |
- |
| その他一時金 |
M-REALフ゜レミアム会費2年(入居時):19,800円、鍵交換代等:33,000円~ |
保険等 |
要 2年 32,000円 |
| 維持費等 |
- |
| 間取り |
1LDK(LDK15、洋6) |
専有面積 |
47.52m² |
| 築年月 |
2013年10月(築12年6ヶ月)
|
階建 / 階 |
14階建 / 10階 |
| 建物構造 |
RC |
総戸数 |
- |
| 主要採光面 |
西 |
駐車場 |
- |
| バイク置き場 |
- |
駐輪場 |
- |
| 建物名・部屋番号 |
パークハビオ恵比寿 |
ペット |
相談 |
| リフォーム履歴 |
- |
| リノベーション履歴 |
- |
| 備考 |
賃貸保証等:加入要(当社指定:初期費用は賃料等の50%、月次保証料は賃料等の1%。その他保証会社条件有)
管理形態/管理員の勤務形態:-/日勤
管理人日勤
◆初期費用・web内見・入居日交渉などお気軽にご相談下さい◆
【お部屋探しはクレアスレント】★空室の確認は即時返答★LINEで簡単にお部屋探し★営業時間外もご対応可能★インターネットで紹介していない類似物件も多数ご用意、ご案内!お客様のご要望にお応えいたします!仕様・図面・写真等に相違があった場合は現況を優先します。退去時清掃実費、大手法人保証会社不要(敷金1ヶ月増)、ペットSOHO敷金1ヶ月増、駐車場は要問合せ
|
| エネルギー消費性能 |
- |
| 断熱性能 |
- |
| 目安光熱費 |
- |
| バス・トイレ |
バス・トイレ別、浴室乾燥機、追焚機能、温水洗浄便座、トイレ |
| キッチン |
システムキッチン、3口以上コンロ、ガスコンロ可 |
| セキュリティー |
オートロック、防犯カメラ |
| 収納 |
ウォークインクローゼット、収納スペース、クローゼット |
| 設備・サービス |
室内洗濯機置場、洗濯機置場、フローリング、都市ガス、エアコン |
| TV・通信 |
インターネット対応、ケーブルTV、BS端子 |
| その他 |
宅配BOX、バルコニー、エレベーター |
| 契約期間 |
2年 |
現況 |
居住中 |
| 条件等 |
- |
入居可能時期 |
2026年6月中旬予定 |
| 更新料 |
旧賃料 1ヶ月 |
物件番号 |
1111474625 |
| 情報公開日 |
2026年3月24日 |
次回更新予定日 |
2026年4月7日 |
| ケータイ用バーコード |
- スマートフォンでこの物件を見る
- スマートフォンからもこの物件をご覧になれます。
|
※「-」と表示されている項目については、情報提供会社にご確認ください。
| 周辺施設 |
GOOD SOUND COFFEE グッドサウンドコーヒー 中目黒店 |
| 距離 |
882m |
写真を見る |
| 周辺施設 |
ドトールコーヒーショップ 中目黒店 |
| 距離 |
1137m |
写真を見る |
| 周辺施設 |
松屋 中目黒店 |
| 距離 |
1149m |
写真を見る |
| 周辺施設 |
シュマッツ中目黒店 |
| 距離 |
988m |
写真を見る |
| 周辺施設 |
広尾第二児童遊園地 |
| 距離 |
1102m |
写真を見る |
ここから簡単にお問い合わせをすることができます。
(SSLでの暗号化での送信を希望されるお客さまは
こちら
よりお問い合わせください)
お問い合わせを行う前に
「個人情報の取り扱いについて」を必ずお読みください。
「個人情報の取り扱いについて」に同意いただいた場合は「上記にご同意の上 確認画面へ進む」のボタンをクリックしてください。
個人情報の取り扱いについて
皆さまが送付された個人情報はアットホーム(株)のサーバを経由し、お問い合わせ先の不動産会社にメールまたはFAXにて転送されるためアットホーム(株)にも保管されます。アットホーム(株)で保管された個人情報の取り扱いについては、【こちら】をご覧ください。
また、本画面でご記入いただいた個人情報は、お問い合わせ先の不動産会社でも保管します。 お問い合わせ先の不動産会社が保管する個人情報の取り扱いについては、不動産会社に直接お問い合わせください。
国土交通大臣免許(1)第10473号 |
|---|
- 交通:
- JR東海道本線/新橋駅 徒歩8分
- 東京都港区西新橋2丁目39-3 SVAX西新橋ビルディング2F
- TEL:
- 03-6824-9583
- FAX:
- 03-5733-3562
- 所属団体:
- (公社)東京都宅地建物取引業協会会員(公社)首都圏不動産公正取引協議会加盟
取引態様:仲介  - 00820426
|
- スマートフォンで
この不動産会社を見る

|
- 提携サイト等より掲載されている物件情報につきましては、不動産会社詳細情報にリンクされていないものがあります。
- 物件に関するお問合せは、物件詳細ページの「情報提供会社」に表示されている不動産会社へ直接お願いいたします。
- 間取図は、現況を優先させていただきます。
- 映像は物件の一部を撮影したものです。物件の契約にあたっての最終判断はご自身の判断に基づいて行ってください。
- 仲介手数料について

アットホームは物件情報の適正化に努めております。
内容に誤りがある場合にはこちらへご連絡ください。