福岡県福岡市博多区石城町(千代県庁口駅)の賃貸:物件詳細
交通 所在地 |
駅徒歩 |
賃料 管理費等 |
敷金/保証金 礼金 |
間取り 面積 |
物件種目 築年月 |
|
地下鉄箱崎線/千代県庁口
福岡県福岡市博多区石城町
|
13分
|
9.7万円
5,000円
|
なし / なし
2ヶ月
|
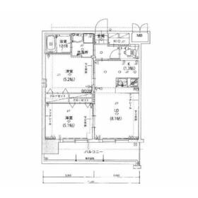
2LDK
45.72m²
|
賃貸マンション
2015年11月(築10年6ヶ月)
|
デザイナーズ、分譲タイプ、常時ゴミ出し可能、角部屋、二人入居可、24時間換気システム、閑静な住宅街、IT重説対応物件
|
|
間取図
間取図
|
外観
|
<
その他の画像
>
|
| 交通 | 地下鉄箱崎線 千代県庁口駅 徒歩13分 |
|---|
| その他の交通 | 地下鉄箱崎線 呉服町駅 徒歩15分 地下鉄空港線 中洲川端駅 徒歩22分 |
| 所在地 |
福岡県福岡市博多区石城町
|
| 物件種目 |
賃貸マンション |
| 賃料 |
9.7万円 |
管理費等 |
5,000円 |
| 敷金 / 保証金 |
なし / なし |
礼金 |
2ヶ月 |
| 敷引 |
- |
保証金償却 |
- |
| その他一時金 |
なし |
保険等 |
要 |
| 維持費等 |
- |
| 間取り |
2LDK |
専有面積 |
45.72m² |
| 築年月 |
2015年11月(築10年6ヶ月)
|
階建 / 階 |
10階建 / 4階 |
| 建物構造 |
RC |
総戸数 |
- |
| 主要採光面 |
|
駐車場 |
- |
| バイク置き場 |
有 |
駐輪場 |
有 |
| 建物名・部屋番号 |
|
ペット |
-
|
| アピールポイント |
人気デザイナーズマンションに空きが出ました♪ |
| リフォーム履歴 |
- |
| リノベーション履歴 |
- |
| 備考 |
管理形態/管理員の勤務形態:-/巡回
IT重説対応物件、管理人巡回
|
| エネルギー消費性能 |
- |
| 断熱性能 |
- |
| 目安光熱費 |
- |
| バス・トイレ |
バス・トイレ別、シャワー付洗面化粧台、洗面所独立、洗面所、洗面台、シャワー、温水洗浄便座、トイレ |
| キッチン |
カウンターキッチン、システムキッチン、2口コンロ、ガスコンロ付 |
| セキュリティー |
モニター付オートロック、オートロック、モニター付インターホン、ダブルロックドア、防犯カメラ |
| 収納 |
クローゼット、シューズボックス |
| 設備・サービス |
室内洗濯機置場、給湯、フローリング、エアコン |
| TV・通信 |
光ファイバー、CATVインターネット、ケーブルTV、CS、BS端子 |
| その他 |
宅配BOX、バイク置き場、バルコニー、駐輪場、エレベーター |
| 契約期間 |
2年 |
現況 |
居住中 |
| 条件等 |
- |
入居可能時期 |
相談 |
| 更新料 |
11,000円 |
物件番号 |
1112044107 |
| 情報公開日 |
2026年3月31日 |
次回更新予定日 |
2026年4月14日 |
| ケータイ用バーコード |
- スマートフォンでこの物件を見る
- スマートフォンからもこの物件をご覧になれます。
|
※「-」と表示されている項目については、情報提供会社にご確認ください。
| 周辺施設 |
ローソン博多石城町店 |
| 距離 |
210m |
写真を見る |
| 周辺施設 |
業務スーパー博多せんしょう店 |
| 距離 |
790m |
| 周辺施設 |
ドラッグイレブンFM神屋町店 |
| 距離 |
840m |
| 周辺施設 |
CoCo壱番屋アクロスガーデン千鳥橋店 |
| 距離 |
630m |
| 周辺施設 |
福岡ウェディング&ホテル・IR専門学校 |
| 距離 |
150m |
ここから簡単にお問い合わせをすることができます。
(SSLでの暗号化での送信を希望されるお客さまは
こちら
よりお問い合わせください)
お問い合わせを行う前に
「個人情報の取り扱いについて」を必ずお読みください。
「個人情報の取り扱いについて」に同意いただいた場合は「上記にご同意の上 確認画面へ進む」のボタンをクリックしてください。
個人情報の取り扱いについて
皆さまが送付された個人情報はアットホーム(株)のサーバを経由し、お問い合わせ先の不動産会社にメールまたはFAXにて転送されるためアットホーム(株)にも保管されます。アットホーム(株)で保管された個人情報の取り扱いについては、【こちら】をご覧ください。
また、本画面でご記入いただいた個人情報は、お問い合わせ先の不動産会社でも保管します。 お問い合わせ先の不動産会社が保管する個人情報の取り扱いについては、不動産会社に直接お問い合わせください。
福岡県知事免許(1)第19791号 |
|---|
- 交通:
- JR鹿児島本線/博多駅 徒歩3分
- 福岡県福岡市博多区博多駅前2丁目3-12 ブラザー博多駅前ビル5F
- TEL:
- 092-476-8111
- FAX:
- 092-476-8112
- 所属団体:
- (公社)福岡県宅地建物取引業協会会員(一社)九州不動産公正取引協議会加盟
取引態様:仲介  - 80505849
|
- スマートフォンで
この不動産会社を見る

|
- 提携サイト等より掲載されている物件情報につきましては、不動産会社詳細情報にリンクされていないものがあります。
- 物件に関するお問合せは、物件詳細ページの「情報提供会社」に表示されている不動産会社へ直接お願いいたします。
- 間取図は、現況を優先させていただきます。
- 映像は物件の一部を撮影したものです。物件の契約にあたっての最終判断はご自身の判断に基づいて行ってください。
- 仲介手数料について

アットホームは物件情報の適正化に努めております。
内容に誤りがある場合にはこちらへご連絡ください。