東京都墨田区東向島4丁目(東向島駅)の賃貸:物件詳細
交通 所在地 |
駅徒歩 |
賃料 管理費等 |
敷金/保証金 礼金 |
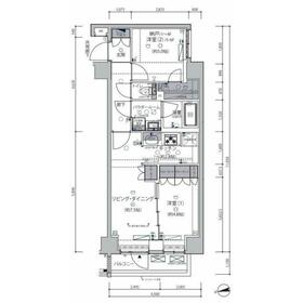
間取り 面積 |
物件種目 築年月 |
|
東武伊勢崎線/東向島
東京都墨田区東向島4丁目
|
7分
|
17.8万円
20,000円
|
なし / なし
なし
|
1SLDK
48.93m²
|
賃貸マンション
2025年2月(築1年未満)
|
ペット相談、分譲タイプ、保証人不要
|
|
間取図
|
外観
|
<
その他の画像
>
|
| 交通 | 東武伊勢崎線 東向島駅 徒歩7分 |
|---|
| その他の交通 | 東武伊勢崎線 鐘ヶ淵駅 徒歩13分 |
| 所在地 |
東京都墨田区東向島4丁目
|
| 物件種目 |
賃貸マンション |
| 賃料 |
17.8万円 |
管理費等 |
20,000円 |
| 敷金 / 保証金 |
なし / なし |
礼金 |
なし |
| 敷引 |
- |
保証金償却 |
- |
| その他一時金 |
なし |
保険等 |
要 2年 18,000円 |
| 維持費等 |
- |
クレジットカード決済 |
初期費用可 |
| 間取り |
1SLDK(S5) |
専有面積 |
48.93m² |
| 築年月 |
2025年2月(築1年未満)
|
階建 / 階 |
6階建 / 3階 |
| 建物構造 |
RC |
総戸数 |
- |
| 主要採光面 |
西 |
駐車場 |
- |
| バイク置き場 |
無 |
駐輪場 |
無 |
| 建物名・部屋番号 |
セジョリ東向島 309 |
ペット |
相談 |
| アピールポイント |
宅配ボックスがあるので自由な時間に荷物を受け取ることができ、配達時間を気にせずに生活することができます。収納はウォークインクロゼット・シューズボックスなど豊富なので、広々と空間を利用することも可能です。いつでも洗濯物を干せるので、日中は忙しいという人にもおすすめの浴室乾燥機があります。セキュリティ面は、オートロック・TVインターホンなど充実しているので、防犯対策もばっちりです。コンロやシンクが一体となっていてお手入れが簡単なシステムキッチンがります。エアコン付きなので、室内の温度調整が簡単です。住環境のよい分譲賃貸の物件は、間取りもよく快適に暮らせます。この物件はバルコニー付きで、用途に合わせて利用できます。ペット好きのお客様には嬉しい、ペット相談可能な物件です。こちらの物件はバスルームとトイレが別々です。クレジットカードで初期費用がお支払いいただけるので、決済の手間が軽減できます。 |
| リフォーム履歴 |
- |
| リノベーション履歴 |
- |
| 備考 |
賃貸保証等:加入要(初回保証委託料:月額賃料の50%、継続保証委託料:15,000円\\/年)
管理形態/管理員の勤務形態:-/-
収納はウォークインクロゼット・シューズボックスなど豊富なので、衣類や履き物の整理がしやすく便利です。セキュリティ面は、TVインターホン・オートロックなど充実しているので、防犯対策もばっちりです。生乾きの洗濯物を乾かしたい時にも役立つ、お風呂場でサッと乾燥できる浴室乾燥機があります。共用部には宅配ボックスが備え付けられているため、好きなタイミングで荷物を受け取ることができます。こちらは初期費用をカードでお支払いいただけるマンションです。現在空家となっておりますので、お早めのご入居が可能となっております。マンションタイプのお部屋です。大量の洗濯物もバルコニーで解決。利便性の高い設備も充実した、高ニーズな2025年築の物件です。ペットを育てている方にもうれしい、ペット相談可の物件です。過ごしやすい環境を実現する、エアコン付きのマンションです。
|
| エネルギー消費性能 |
- |
| 断熱性能 |
- |
| 目安光熱費 |
- |
| バス・トイレ |
バス・トイレ別、浴室乾燥機、洗面台、温水洗浄便座、トイレ |
| キッチン |
システムキッチン |
| セキュリティー |
モニター付オートロック、オートロック、モニター付インターホン |
| 収納 |
ウォークインクローゼット、収納スペース、クローゼット、シューズボックス |
| 設備・サービス |
室内洗濯機置場、洗濯機置場、都市ガス、エアコン |
| TV・通信 |
- |
| その他 |
宅配BOX、バルコニー |
| 契約期間 |
2年 |
現況 |
空家 |
| 条件等 |
- |
入居可能時期 |
即時 |
| 更新料 |
新賃料 1ヶ月 |
物件番号 |
1112171615 |
| 情報公開日 |
2025年12月1日 |
次回更新予定日 |
2025年12月16日 |
| ケータイ用バーコード |
- スマートフォンでこの物件を見る
- スマートフォンからもこの物件をご覧になれます。
|
※「-」と表示されている項目については、情報提供会社にご確認ください。
ここから簡単にお問い合わせをすることができます。
(SSLでの暗号化での送信を希望されるお客さまは
こちら
よりお問い合わせください)
お問い合わせを行う前に
「個人情報の取り扱いについて」を必ずお読みください。
「個人情報の取り扱いについて」に同意いただいた場合は「上記にご同意の上 確認画面へ進む」のボタンをクリックしてください。
個人情報の取り扱いについて
皆さまが送付された個人情報はアットホーム(株)のサーバを経由し、お問い合わせ先の不動産会社にメールまたはFAXにて転送されるためアットホーム(株)にも保管されます。アットホーム(株)で保管された個人情報の取り扱いについては、【こちら】をご覧ください。
また、本画面でご記入いただいた個人情報は、お問い合わせ先の不動産会社でも保管します。 お問い合わせ先の不動産会社が保管する個人情報の取り扱いについては、不動産会社に直接お問い合わせください。
東京都知事免許(1)第107945号 |
|---|
- 交通:
- 東武伊勢崎線/曳舟駅 徒歩1分
- 東京都墨田区京島1丁目1-1 イーストコア曳舟一番館104号室
- TEL:
- 03-6456-1143
- FAX:
- 03-6456-1139
- 所属団体:
- (公社)全日本不動産協会会員(公社)首都圏不動産公正取引協議会加盟
取引態様:仲介  - 00272862
|
- スマートフォンで
この不動産会社を見る

|
- 提携サイト等より掲載されている物件情報につきましては、不動産会社詳細情報にリンクされていないものがあります。
- 物件に関するお問合せは、物件詳細ページの「情報提供会社」に表示されている不動産会社へ直接お願いいたします。
- 間取図は、現況を優先させていただきます。
- 映像は物件の一部を撮影したものです。物件の契約にあたっての最終判断はご自身の判断に基づいて行ってください。
- 仲介手数料について

アットホームは物件情報の適正化に努めております。
内容に誤りがある場合にはこちらへご連絡ください。