福岡県福岡市南区大池1丁目(高宮駅)の賃貸:物件詳細
交通 所在地 |
駅徒歩 |
賃料 管理費等 |
敷金/保証金 礼金 |
間取り 面積 |
物件種目 築年月 |
|
西鉄天神大牟田線/高宮
福岡県福岡市南区大池1丁目
|
18分
|
8.3万円
6,000円
|
なし / なし
なし
|
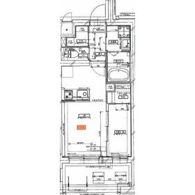
1LDK
29.80m²
|
賃貸マンション
2026年3月
|
ペット相談、角部屋
|
|
間取図
|
外観
|
<
その他の画像
>
|
| 交通 | 西鉄天神大牟田線 高宮駅 徒歩18分 |
|---|
| その他の交通 | 西鉄天神大牟田線 大橋駅 徒歩26分 西鉄天神大牟田線 西鉄平尾駅 徒歩30分 |
| 所在地 |
福岡県福岡市南区大池1丁目
|
| 物件種目 |
賃貸マンション |
| 賃料 |
8.3万円 |
管理費等 |
6,000円 |
| 敷金 / 保証金 |
なし / なし |
礼金 |
なし |
| 敷引 |
- |
保証金償却 |
- |
| その他一時金 |
なし |
保険等 |
要 |
| 維持費等 |
- |
| 間取り |
1LDK |
専有面積 |
29.80m² |
| 築年月 |
2026年3月
|
階建 / 階 |
10階建 / 4階 |
| 建物構造 |
RC |
総戸数 |
- |
| 主要採光面 |
|
駐車場 |
有 18,700円/月 |
| バイク置き場 |
- |
駐輪場 |
- |
| 建物名・部屋番号 |
MODERN EIGHT高宮lieto |
ペット |
相談 |
| アピールポイント |
セキュリティ面は、TVインターホン・オートロックなど充実しているので安心して生活できます。共用部にはエレベータ・敷地内ごみ置き場などが揃っており、とても充実しています。室内設備は洗面化粧台・浴室乾燥機など充実した設備を備え付けています。収納はシューズボックス・クロゼットなど豊富なので、広々と空間を利用することも可能です。コンロや作業台が一体化しているので段差がなく、掃除がとても楽になるシステムキッチンがあります。快適な暮らしを送るためのエアコンが設置されているマンションです。こちらの物件はマンションです。自走式の駐車場がある物件です。新築物件をお探しなら、こちらの物件で快適な生活をおくりませんか。眠りが浅く物音が気になる方にオススメなのが角部屋です。ペット好きにもうれしい、ペット相談可の物件です(#^^#) |
| リフォーム履歴 |
- |
| リノベーション履歴 |
- |
| 備考 |
管理形態/管理員の勤務形態:-/-
お部屋探しはリベルテ株式会社にお任せください★
収納はシューズボックス・クロゼットなど豊富なので、衣類や履き物の整理がしやすく便利です。室内設備は洗面化粧台・浴室乾燥機などが揃っており、とても充実しています。セキュリティ面は、オートロック・TVインターホンなどを備え付けているので安心して暮らせます。共用部にはエレベータ・敷地内ごみ置き場などが備わっておりとても充実しています。敷地内の駐車場にも空きがあり、駐車可能です。過ごしやすい環境を実現する、エアコン付きの物件です。お湯を温め直せる追い焚き機能付きです。この物件はバルコニー付きでおすすめです。一人暮らしの安心できる物件、防犯対策でカメラがついています。自走式の駐車場がある物件です。1LDKの物件です(^^)
|
| エネルギー消費性能 |
- |
| 断熱性能 |
- |
| 目安光熱費 |
- |
| バス・トイレ |
バス・トイレ別、浴室乾燥機、追焚機能、洗面台、シャワー、温水洗浄便座、トイレ |
| キッチン |
システムキッチン、3口以上コンロ |
| セキュリティー |
モニター付オートロック、オートロック、モニター付インターホン、防犯カメラ |
| 収納 |
収納スペース、クローゼット、シューズボックス |
| 設備・サービス |
室内洗濯機置場、洗濯機置場、給湯、フローリング、エアコン |
| TV・通信 |
インターネット対応 |
| その他 |
バルコニー、エレベーター |
| 契約期間 |
2年 |
現況 |
空家 |
| 条件等 |
- |
入居可能時期 |
即時 |
| 更新料 |
- |
物件番号 |
1112739225 |
| 情報公開日 |
2026年3月25日 |
次回更新予定日 |
2026年4月9日 |
| ケータイ用バーコード |
- スマートフォンでこの物件を見る
- スマートフォンからもこの物件をご覧になれます。
|
※「-」と表示されている項目については、情報提供会社にご確認ください。
| 周辺施設 |
セブンイレブン 福岡若久1丁目店 |
| 距離 |
855m |
写真を見る |
| 周辺施設 |
セブンイレブン 福岡高宮西店 |
| 距離 |
1937m |
写真を見る |
| 周辺施設 |
ドラッグストア マツモトキヨシ 野間店 |
| 距離 |
176m |
写真を見る |
| 周辺施設 |
サニー野間店 |
| 距離 |
592m |
写真を見る |
| 周辺施設 |
サニー若久店 |
| 距離 |
1375m |
写真を見る |
| 周辺施設 |
ボンラパス サービスセンター |
| 距離 |
1355m |
写真を見る |
ここから簡単にお問い合わせをすることができます。
(SSLでの暗号化での送信を希望されるお客さまは
こちら
よりお問い合わせください)
お問い合わせを行う前に
「個人情報の取り扱いについて」を必ずお読みください。
「個人情報の取り扱いについて」に同意いただいた場合は「上記にご同意の上 確認画面へ進む」のボタンをクリックしてください。
個人情報の取り扱いについて
皆さまが送付された個人情報はアットホーム(株)のサーバを経由し、お問い合わせ先の不動産会社にメールまたはFAXにて転送されるためアットホーム(株)にも保管されます。アットホーム(株)で保管された個人情報の取り扱いについては、【こちら】をご覧ください。
また、本画面でご記入いただいた個人情報は、お問い合わせ先の不動産会社でも保管します。 お問い合わせ先の不動産会社が保管する個人情報の取り扱いについては、不動産会社に直接お問い合わせください。
福岡県知事免許(2)第19496号 |
|---|
- 交通:
- 地下鉄七隈線/天神南駅 徒歩5分
- 福岡県福岡市中央区春吉3丁目21-18-603
- TEL:
- 092-753-9657
- FAX:
- 092-753-9658
- 所属団体:
- (公社)福岡県宅地建物取引業協会会員(一社)九州不動産公正取引協議会加盟
取引態様:仲介  - 80505930
|
- スマートフォンで
この不動産会社を見る

|
- 提携サイト等より掲載されている物件情報につきましては、不動産会社詳細情報にリンクされていないものがあります。
- 物件に関するお問合せは、物件詳細ページの「情報提供会社」に表示されている不動産会社へ直接お願いいたします。
- 間取図は、現況を優先させていただきます。
- 映像は物件の一部を撮影したものです。物件の契約にあたっての最終判断はご自身の判断に基づいて行ってください。
- 仲介手数料について

アットホームは物件情報の適正化に努めております。
内容に誤りがある場合にはこちらへご連絡ください。