東京都江戸川区篠崎町2丁目(篠崎駅)の賃貸:物件詳細
交通 所在地 |
駅徒歩 |
賃料 管理費等 |
敷金/保証金 礼金 |
間取り 面積 |
物件種目 築年月 |
都営新宿線/篠崎
東京都江戸川区篠崎町2丁目
|
10分
|
6.15万円
4,000円
|
なし / なし
なし
|
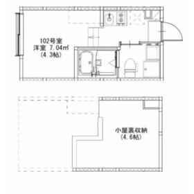
ワンルーム
15.39m²
|
賃貸アパート
2025年8月
|
デザイナーズ、24時間セキュリティー、24時間換気システム、閑静な住宅街、IT重説対応物件、保証人不要
|
間取図
|
外観
|
<
その他の画像
>
|
|
交通 | 都営新宿線 篠崎駅 徒歩10分 |
所在地 |
東京都江戸川区篠崎町2丁目
|
物件種目 |
賃貸アパート |
賃料 |
6.15万円 |
管理費等 |
4,000円 |
敷金 / 保証金 |
なし / なし |
礼金 |
なし |
敷引 |
- |
保証金償却 |
- |
その他一時金 |
クリーニング費用:38,500円、IoT登録費用:16,500円、24時間サポート:19,800円、契約事務手数料:11,000円、除菌消臭代:16,500円 |
保険等 |
要 2年 20,000円 |
維持費等 |
町会費(月額):300円/月、口座引落手数料(月額):660円/月 |
クレジットカード決済 |
初期費用可 |
間取り |
ワンルーム(洋4.3) |
専有面積 |
15.39m² |
築年月 |
2025年8月
|
階建 / 階 |
2階建 / 1階 |
建物構造 |
木造 |
総戸数 |
- |
主要採光面 |
|
駐車場 |
- |
バイク置き場 |
- |
駐輪場 |
- |
建物名・部屋番号 |
102 |
ペット |
-
|
アピールポイント |
ドアを開けたり直接会話しなくてもモニター越しに来訪者を確認できるモニター付きインターホンを設置しております。共用部には宅配ボックスを設置しているため、好きなタイミングで荷物を受け取ることができます。収納はクロゼット・シューズボックスなど豊富なので、衣類や履き物の整理がしやすく便利です。室内設備は洗面化粧台・浴室乾燥機などが揃っており、とても充実しています。日常生活で利用頻度の高い水回りだからこそ、使い勝手のいいシステムキッチン付きの物件を選んでみませんか。こちらは初期費用をカードでお支払いいただける物件なので、支払い手続きの手間が省けます。通風良好なアパートはいつでも気持ちの良い空間です。通信速度が速く時間も節約できる光回線を導入しました。こちらのアパートは閑静な住宅地にあります。新居におススメ。こだわり条件満載の新築物件。快適な生活を送ることのできる、エアコン付きのアパートです。 |
リフォーム履歴 |
- |
リノベーション履歴 |
- |
備考 |
賃貸保証等:加入要(【初回】保証人(有)30,000円(無)50,000円【更新】1年毎12,000円)
管理形態/管理員の勤務形態:-/-
IT重説対応物件
部屋の紹介、内見、申込、契約が全て弊社へご来店いただかなくても可能です!詳しくはお問い合わせください!メール又はお電話ください◇【初期費用分割、カード決済可能】
収納はクロゼット・シューズボックスなど豊富なので、衣類や履き物の整理がしやすく便利です。共用部には宅配ボックスが備え付けられているため、家で何時間も待機する必要がありません。室内設備は洗面所独立・浴室乾燥機など充実した設備を備え付けています。直接会わずにインターホン越しに来訪者を確認できるので、トラブルを事前に回避しやすくなります。注目を集めているのが、敷地内ごみ置き場のあるアパートです。アパートタイプのお部屋です。不審者対策として心強い防犯カメラが備えられています。きれい好きな人が選んでます。やっぱり住むなら新築物件ですよね。駅から徒歩10分にある物件なので、電車利用が多い方にオススメです。予め照明が設置されていて、引越しでの負担が減ります。初期費用はカードで決済いただけます。
|
エネルギー消費性能 |
- |
断熱性能 |
- |
目安光熱費 |
- |
バス・トイレ |
バス・トイレ別、浴室乾燥機、洗面所独立、洗面所、洗面台、シャワー、温水洗浄便座、トイレ |
キッチン |
システムキッチン、2口コンロ、ガスコンロ可 |
セキュリティー |
モニター付インターホン、防犯カメラ |
収納 |
収納スペース、クローゼット、シューズボックス |
設備・サービス |
室内洗濯機置場、洗濯機置場、ロフト、全居室フローリング、フローリング、エアコン、冷房、照明器具 |
TV・通信 |
インターネット対応、インターネット使用料無料、光ファイバー、ケーブルTV、CS、BS端子 |
その他 |
宅配BOX |
契約期間 |
2年 |
現況 |
空家 |
条件等 |
- |
入居可能時期 |
即時 |
更新料 |
新賃料 1.5ヶ月 |
物件番号 |
1112958815 |
情報公開日 |
2025年9月15日 |
次回更新予定日 |
2025年10月30日 |
ケータイ用バーコード |
- スマートフォンでこの物件を見る
- スマートフォンからもこの物件をご覧になれます。
|
※「-」と表示されている項目については、情報提供会社にご確認ください。
周辺施設 |
ビッグ・エー 江戸川篠崎店 |
距離 |
880m |
写真を見る |
周辺施設 |
まいばすけっと 篠崎町5丁目店 |
距離 |
1053m |
写真を見る |
周辺施設 |
かつや 瑞江店 |
距離 |
1862m |
写真を見る |
周辺施設 |
ファミリーマート 瑞江駅北口店 |
距離 |
2428m |
写真を見る |
周辺施設 |
ユニクロ西瑞江店 |
距離 |
2085m |
写真を見る |
周辺施設 |
南小岩フラワーロード郵便局 |
距離 |
4192m |
写真を見る |
周辺施設 |
オオゼキ 南小岩店 |
距離 |
4180m |
写真を見る |
ここから簡単にお問い合わせをすることができます。
(SSLでの暗号化での送信を希望されるお客さまは
こちら
よりお問い合わせください)
お問い合わせを行う前に
「個人情報の取り扱いについて」を必ずお読みください。
「個人情報の取り扱いについて」に同意いただいた場合は「上記にご同意の上 確認画面へ進む」のボタンをクリックしてください。
個人情報の取り扱いについて
皆さまが送付された個人情報はアットホーム(株)のサーバを経由し、お問い合わせ先の不動産会社にメールまたはFAXにて転送されるためアットホーム(株)にも保管されます。アットホーム(株)で保管された個人情報の取り扱いについては、【こちら】をご覧ください。
また、本画面でご記入いただいた個人情報は、お問い合わせ先の不動産会社でも保管します。 お問い合わせ先の不動産会社が保管する個人情報の取り扱いについては、不動産会社に直接お問い合わせください。
東京都知事免許(1)第106820号 |
---|
- 交通:
- JR山手線/新宿駅 徒歩5分
- 東京都新宿区西新宿1丁目14-15 タウンウエストビルディング803
- TEL:
- 03-6258-5721
- FAX:
- 03-6258-5722
- 所属団体:
- (公社)全日本不動産協会会員(公社)首都圏不動産公正取引協議会加盟
取引態様:仲介  - 00277039
|
- スマートフォンで
この不動産会社を見る

|
- 提携サイト等より掲載されている物件情報につきましては、不動産会社詳細情報にリンクされていないものがあります。
- 物件に関するお問合せは、物件詳細ページの「情報提供会社」に表示されている不動産会社へ直接お願いいたします。
- 間取図は、現況を優先させていただきます。
- 映像は物件の一部を撮影したものです。物件の契約にあたっての最終判断はご自身の判断に基づいて行ってください。
- 仲介手数料について

アットホームは物件情報の適正化に努めております。
内容に誤りがある場合にはこちらへご連絡ください。