東京都新宿区歌舞伎町2丁目(西武新宿駅)の賃貸:物件詳細
交通 所在地 |
駅徒歩 |
賃料 管理費等 |
敷金/保証金 礼金 |
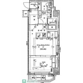
間取り 面積 |
物件種目 築年月 |
|
西武新宿線/西武新宿
東京都新宿区歌舞伎町2丁目
|
1分
|
25.5万円
20,000円
|
なし / なし
1ヶ月
|
1LDK
40.58m²
|
賃貸マンション
2016年9月(築9年7ヶ月)
|
ペット相談、分譲タイプ、角部屋、二人入居可、2面採光、24時間換気システム、IT重説対応物件、保証人不要
|
|
間取図
|
外観
|
<
その他の画像
>
|
| 交通 | 西武新宿線 西武新宿駅 徒歩1分 |
|---|
| その他の交通 | 都営大江戸線 新宿西口駅 徒歩7分 東京メトロ丸ノ内線 新宿駅 徒歩8分 |
| 所在地 |
東京都新宿区歌舞伎町2丁目
|
| 物件種目 |
賃貸マンション |
| 賃料 |
25.5万円 |
管理費等 |
20,000円 |
| 敷金 / 保証金 |
なし / なし |
礼金 |
1ヶ月 |
| 敷引 |
- |
保証金償却 |
- |
| その他一時金 |
入居サポート:41,450円、消臭・抗菌施工:17,600円、事務手数料:11,000円 |
保険等 |
要 2年 25,000円 |
| 維持費等 |
ペット飼育時:3,500円/月 |
クレジットカード決済 |
初期費用可 |
| 間取り |
1LDK(洋室4.7帖 LDK9.4帖) |
専有面積 |
40.58m² |
| 築年月 |
2016年9月(築9年7ヶ月)
|
階建 / 階 |
15階建 / 10階 |
| 建物構造 |
RC |
総戸数 |
- |
| 主要採光面 |
東 |
駐車場 |
無 |
| バイク置き場 |
- |
駐輪場 |
有 |
| 建物名・部屋番号 |
エル・グランジュテ新宿 1001 |
ペット |
相談 |
| アピールポイント |
★2025年賃貸仲介件数全国第2位★首都圏に強いタウンハウジングがご案内させていただきます! |
| リフォーム履歴 |
- |
| リノベーション履歴 |
- |
| 備考 |
賃貸保証等:加入要(賃貸保証料:0.50ヶ月 以降毎年15,000円/年)
管理形態/管理員の勤務形態:-/-
IT重説対応物件
東京を中心に関東人気エリアの賃貸マンション・アパート情報が豊富!創業45年 直営140店舗以上の 独自のネットワークで最適なマンション・アパートをお探しします!お部屋探しからご契約までをオンラインで簡単にご対応できます!『ひとを、まちを、もっと豊かに。』2025年賃貸仲介件数全国第2位の実績です!安心してお問合せくださいませ。※退去時清掃費用借主負担※短期解約違約金あり
|
| エネルギー消費性能 |
- |
| 断熱性能 |
- |
| 目安光熱費 |
- |
| バス・トイレ |
バス・トイレ別、浴室暖房、浴室乾燥機、洗面所独立、洗面所、洗面台、シャワー、温水洗浄便座、トイレ |
| キッチン |
カウンターキッチン、システムキッチン、2口コンロ、ガスコンロ付 |
| セキュリティー |
モニター付オートロック、オートロック、モニター付インターホン、ディンプルキー、ダブルロックドア、防犯カメラ、火災警報器(報知機) |
| 収納 |
収納スペース、クローゼット、シューズボックス |
| 設備・サービス |
室内洗濯機置場、都市ガス給湯、給湯、全居室フローリング、フローリング、都市ガス、可動間仕切り、エアコン、暖房、冷房 |
| TV・通信 |
インターネット対応、インターネット使用料無料 |
| その他 |
宅配BOX、バルコニー、駐輪場、エレベーター |
| 契約期間 |
2年 |
現況 |
居住中 |
| 条件等 |
- |
入居可能時期 |
2026年3月下旬予定 |
| 更新料 |
新賃料 1.5ヶ月 |
物件番号 |
1113601823 |
| 情報公開日 |
2026年3月10日 |
次回更新予定日 |
2026年3月24日 |
| ケータイ用バーコード |
- スマートフォンでこの物件を見る
- スマートフォンからもこの物件をご覧になれます。
|
※「-」と表示されている項目については、情報提供会社にご確認ください。
| 周辺施設 |
肉のハナマサ |
| 距離 |
460m |
写真を見る |
| 周辺施設 |
まいばすけっと北新宿1丁目店 |
| 距離 |
480m |
写真を見る |
| 周辺施設 |
ファミリーマートトモニー西武新宿駅北口店 |
| 距離 |
70m |
写真を見る |
| 周辺施設 |
ミニストップ歌舞伎町2丁目店 |
| 距離 |
390m |
写真を見る |
| 周辺施設 |
新宿明治通郵便局 |
| 距離 |
800m |
写真を見る |
| 周辺施設 |
ダイコクドラッグ |
| 距離 |
290m |
写真を見る |
ここから簡単にお問い合わせをすることができます。
(SSLでの暗号化での送信を希望されるお客さまは
こちら
よりお問い合わせください)
お問い合わせを行う前に
「個人情報の取り扱いについて」を必ずお読みください。
「個人情報の取り扱いについて」に同意いただいた場合は「上記にご同意の上 確認画面へ進む」のボタンをクリックしてください。
個人情報の取り扱いについて
皆さまが送付された個人情報はアットホーム(株)のサーバを経由し、お問い合わせ先の不動産会社にメールまたはFAXにて転送されるためアットホーム(株)にも保管されます。アットホーム(株)で保管された個人情報の取り扱いについては、【こちら】をご覧ください。
また、本画面でご記入いただいた個人情報は、お問い合わせ先の不動産会社でも保管します。 お問い合わせ先の不動産会社が保管する個人情報の取り扱いについては、不動産会社に直接お問い合わせください。
国土交通大臣免許(1)第9926号 |
|---|
- 交通:
- JR山手線/渋谷駅 徒歩2分
- 東京都渋谷区道玄坂2丁目6-14 ホマレヤビル8F
- TEL:
- 03-5456-9988
- FAX:
- 03-5456-9991
取引態様:仲介  - 00313524
|
- スマートフォンで
この不動産会社を見る

|
- 提携サイト等より掲載されている物件情報につきましては、不動産会社詳細情報にリンクされていないものがあります。
- 物件に関するお問合せは、物件詳細ページの「情報提供会社」に表示されている不動産会社へ直接お願いいたします。
- 間取図は、現況を優先させていただきます。
- 映像は物件の一部を撮影したものです。物件の契約にあたっての最終判断はご自身の判断に基づいて行ってください。
- 仲介手数料について

アットホームは物件情報の適正化に努めております。
内容に誤りがある場合にはこちらへご連絡ください。