不動産 賃貸 マンション等の住宅情報:埼玉住まい情報


東京都台東区浅草5丁目(浅草駅)の賃貸:物件詳細

  • 物件詳細
  • 情報の見方
  • 印刷用画面
交通
所在地
駅徒歩 賃料
管理費等
敷金/保証金
礼金
間取り
面積
物件種目
築年月

つくばエクスプレス/浅草
【バス】6分 浅草五丁目 停歩2分

東京都台東区浅草5丁目

20.9万円

15,000円

なし / なし

なし

1SLDK

51.18m²

賃貸マンション

2024年10月(築1年2ヶ月)
未入居

おすすめPOINTペット相談、分譲タイプ、角部屋、高齢者相談、二人入居可、保証人不要

おすすめコメント

セキュリティ面は、オートロック・TVインターホンなど充実しているので安心して生活できます。共用部には宅配ボックスが備え付けられているため、忙しくて在宅時間が少なくても荷物を受け取れます。

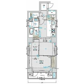
間取図

間取図

外観

外観

<
その他の画像
  • 室内
  • リビング
  • 設備
  • リビング
  • その他
  • リビング
  • 収納
  • トイレ
  • その他
  • エントランス
  • 共有部分
>
    • とりあえず保存
    • お問い合わせ
    交通

    つくばエクスプレス 浅草駅
    【バス】 6分 浅草五丁目 停歩2分

    その他の交通

    東京メトロ日比谷線 三ノ輪駅 徒歩17分

    東京メトロ銀座線 浅草駅 徒歩17分

    所在地 東京都台東区浅草5丁目
    物件種目 賃貸マンション
    賃料 20.9万円 管理費等 15,000円
    敷金 / 保証金 なし / なし 礼金 なし
    敷引 保証金償却
    その他一時金 なし 保険等 要 2年 24,700円
    維持費等
    間取り 1SLDK(LDK11.2、洋6.7、S3.2) 専有面積 51.18m²
    築年月 2024年10月(築1年2ヶ月) 未入居 階建 / 階 8階建 / 2階
    建物構造 RC 総戸数
    主要採光面 北西 駐車場
    バイク置き場 駐輪場
    建物名・部屋番号 アスブルーム奥浅草 205 ペット 相談
    アピールポイント 室内設備は洗面所独立・浴室乾燥機など豊富に揃っており、過ごしやすいお部屋になっております。セキュリティ面は、TVインターホン・オートロックなどを設置しているので安全面でも優れております。共用部には宅配ボックスが付いているため、家で何時間も待機する必要がありません。空家ですのでお早めのお引越しが可能です。インターネットが無料であるため、インターネット回線の契約が不要で、解約の手間がかからず日程調整が難しい方にもおすすめです。こちらの物件はマンションです。お部屋の広さも51.18平米あり、快適な暮らしができます。システムキッチンはシンクやコンロ、作業台などが一体化しているので、掃除がしやすい構造になっています。収納スペースがたくさんほしいという方は、ぜひサービスルームのあるSLDKを。設備が充実してうれしい、築浅物件です。
    リフォーム履歴
    リノベーション履歴
    備考
    賃貸保証等:加入要(イントラスト 初回保証委託料:月額総支払額の0%、年間保証料12,000円ミライズインシュア/日本セーフティ/ルームバンクインシュア:初回保証料:月額総支払額の0%、年間保証料12,000円がかかりま)
    管理形態/管理員の勤務形態:-/-
    クリーニング費用は退去時請求:㎡数×1,100円(税別)エアコン洗浄費用:12,000円(税別)×設置台数1年未満の解約:賃料+管理費の2ヵ月 1年以上2年未満の解約:賃料+管理費1ヵ月 解約予告:2ヶ月前
    共用部には宅配ボックスを設置しているため、対面で荷物を受け取らなくて済みます。室内設備は浴室乾燥機・洗面所独立など充実した設備を備え付けています。セキュリティ面は、TVインターホン・オートロックなどを備え付けているので安心して暮らせます。造りとデザインに関して、自信をもって情報を提供できるマンションです。2024年に建設された物件です。こちらの物件にはエレベーターがあります。51.18平米の専有面積を有する一押しのマンション。2駅利用可能な利便性の高いマンションです。ペットを飼っている方にもご紹介したい、ペット飼育可の物件です。フローリング仕様のマンションです。
    エネルギー消費性能
    断熱性能
    目安光熱費
    バス・トイレ バス・トイレ別、浴室乾燥機、追焚機能、洗面所独立、洗面所、温水洗浄便座、トイレ
    キッチン システムキッチン、3口以上コンロ、ガスコンロ可
    セキュリティー モニター付オートロック、オートロック、モニター付インターホン
    収納 収納スペース、クローゼット
    設備・サービス エアコン2台以上、室内洗濯機置場、洗濯機置場、フローリング、都市ガス、エアコン
    TV・通信 インターネット対応、インターネット使用料無料、ケーブルTV、CS、BS端子
    その他 宅配BOX、駐輪場、エレベーター
    契約期間 2年 現況 空家
    条件等 入居可能時期 即時
    仲介手数料 1ヶ月    
    更新料 新賃料 1ヶ月 物件番号 1113832412
    情報公開日 2025年6月26日 次回更新予定日 2025年11月15日
    ケータイ用バーコード

    QRコード

    スマートフォンでこの物件を見る
    スマートフォンからもこの物件をご覧になれます。
    ※「-」と表示されている項目については、情報提供会社にご確認ください。

    クイックお問い合わせ

    ここから簡単にお問い合わせをすることができます。
    (SSLでの暗号化での送信を希望されるお客さまは こちら よりお問い合わせください)

    お問い合わせ内容(必須)
    お名前(必須) 姓  名 
    メールアドレス(必須)
    ※携帯電話のメールアドレスをご入力される方はこちらをご確認ください
    電話番号(必須)
    - -

    ※入力いただいた電話番号へSMSまたは音声でパスワードをご連絡します。

    携帯電話の番号をご入力の方へ

    携帯電話の番号をご入力の方へ
    確認画面にて送信ボタンをクリックするとSMSが携帯電話に届きます。
    そのSMSに記載のパスワード(認証番号)を入力し、お問い合わせを完了してください。
    尚、SMSの送信者番号は 0005 202 760 となります。
    これはアットホームの固定番号です。

    備考欄 希望条件、物件案内希望日、質問などがございましたらご記入ください。
    お問い合わせを行う前に「個人情報の取り扱いについて」を必ずお読みください。
    「個人情報の取り扱いについて」に同意いただいた場合は「上記にご同意の上 確認画面へ進む」のボタンをクリックしてください。

    個人情報の取り扱いについて

    皆さまが送付された個人情報はアットホーム(株)のサーバを経由し、お問い合わせ先の不動産会社にメールまたはFAXにて転送されるためアットホーム(株)にも保管されます。アットホーム(株)で保管された個人情報の取り扱いについては、【こちら】をご覧ください。
    また、本画面でご記入いただいた個人情報は、お問い合わせ先の不動産会社でも保管します。 お問い合わせ先の不動産会社が保管する個人情報の取り扱いについては、不動産会社に直接お問い合わせください。

    情報提供会社

    (株)ハウスフレンド

    東京都知事免許(7)第73741号

    交通:
    JR総武線/秋葉原駅 徒歩3分
    東京都千代田区神田相生町1番地 秋葉原センタープレイスビル11階
    TEL:
    03-5577-5538
    FAX:
    03-5577-5539
    所属団体:
    (公社)東京都宅地建物取引業協会会員
    (公社)首都圏不動産公正取引協議会加盟

    取引態様:代理

    • 00511701
    • とりあえず保存
    • お問い合わせ
    • 提携サイト等より掲載されている物件情報につきましては、不動産会社詳細情報にリンクされていないものがあります。
    • 物件に関するお問合せは、物件詳細ページの「情報提供会社」に表示されている不動産会社へ直接お願いいたします。
    • 間取図は、現況を優先させていただきます。
    • 映像は物件の一部を撮影したものです。物件の契約にあたっての最終判断はご自身の判断に基づいて行ってください。
    • 仲介手数料について仲介手数料

    アットホームは物件情報の適正化に努めております。 内容に誤りがある場合にはこちらへご連絡ください。

    【埼玉住まい情報】では、日本全国の物件から賃貸マンションや賃貸アパート・賃貸一戸建て等の賃貸住宅情報、新築マンション・分譲マンションや中古マンション等の売買マンション情報、新築一戸建てや中古一戸建てなどの戸建住宅、 土地など、総合的な不動産住宅情報検索サービスを提供致します。
    【埼玉住まい情報】から、選りすぐりの不動産物件を探してみましょう。

    【免責事項】
    このコーナーの運営はアットホーム株式会社(https://www.athome.co.jp/)が行っています。
    このコーナーに掲載している物件情報は、「アットホーム不動産情報ネットワーク」に加盟する不動産会社等(情報提供元)から提供されています。信頼性の高い情報提供が行えるよう、最大限の努力をしておりますが、その内容を保証するものではありません。 利用者のみなさまと各情報提供元との取引に起因する損害および情報が掲載されたことに起因する損害等については、株式会社イーシティ埼玉、およびアットホームは一切責任を負いません。
    各物件情報の内容や画像等はすべて現況を優先させていただきます。
    お取引等(お取引の準備、資金調達等を含みます)の際には、内容や契約条件等について、各情報提供元より十分な説明を受け、ご自身でご確認の上、判断してください。
    このコーナーへの物件情報のご掲載、その他不動産業務ソリューション等についての不動産会社様のお問合せはこちらからお願いいたします。

    物件画像: