東京都新宿区四谷4丁目(新宿御苑前駅)の賃貸:物件詳細
交通 所在地 |
駅徒歩 |
賃料 管理費等 |
敷金/保証金 礼金 |
間取り 面積 |
物件種目 築年月 |
|
東京メトロ丸ノ内線/新宿御苑前
東京都新宿区四谷4丁目
|
5分
|
19.7万円
10,000円
|
1ヶ月 / なし
なし
|
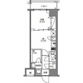
1DK
29.13m²
|
賃貸マンション
2023年8月(築2年3ヶ月)
|
二人入居可、24時間換気システム、保証人不要
|
|
間取図
|
外観
|
<
その他の画像
>
|
| 交通 | 東京メトロ丸ノ内線 新宿御苑前駅 徒歩5分 |
|---|
| その他の交通 | 東京メトロ丸ノ内線 四谷三丁目駅 徒歩9分 東京メトロ丸ノ内線 新宿三丁目駅 徒歩13分 |
| 所在地 |
東京都新宿区四谷4丁目
|
| 物件種目 |
賃貸マンション |
| 賃料 |
19.7万円 |
管理費等 |
10,000円 |
| 敷金 / 保証金 |
1ヶ月 / なし |
礼金 |
なし |
| 敷引 |
- |
保証金償却 |
- |
| その他一時金 |
なし、鍵交換代等:33,000円~ |
保険等 |
要 2年 22,000円 |
| 維持費等 |
口座振替サービス料:330円/月 |
| 間取り |
1DK(DK5.8、洋4.3) |
専有面積 |
29.13m² |
| 築年月 |
2023年8月(築2年3ヶ月)
|
階建 / 階 |
地上15階地下1階建 / 13階 |
| 建物構造 |
RC |
総戸数 |
- |
| 主要採光面 |
北 |
駐車場 |
- |
| バイク置き場 |
- |
駐輪場 |
- |
| 建物名・部屋番号 |
S-RESIDENCE新宿御苑 |
ペット |
-
|
| リフォーム履歴 |
- |
| リノベーション履歴 |
- |
| 備考 |
賃貸保証等:加入要(初回保証委託料総賃料30%年間保証委託料1万円)
管理形態/管理員の勤務形態:-/-
◆初期費用・web内見・入居日交渉等なんでもご相談ください◆
【お部屋探しはクレアスレント】★日常生活に便利なコンビニ・スーパーも近く生活環境良好★インターネットで紹介していない類似物件も多数ご案内!お客様の要望にお応えし、快適で素敵なお部屋をご紹介いたします!仕様・図面・写真等に相違があった場合は現況を優先します。
|
| エネルギー消費性能 |
- |
| 断熱性能 |
- |
| 目安光熱費 |
- |
| バス・トイレ |
バス・トイレ別、浴室乾燥機、洗面所独立、洗面所、洗面台、シャワー、温水洗浄便座、トイレ |
| キッチン |
システムキッチン、2口コンロ、ガスコンロ可 |
| セキュリティー |
モニター付オートロック、オートロック、モニター付インターホン、防犯カメラ |
| 収納 |
収納スペース、シューズインクローゼット、クローゼット |
| 設備・サービス |
室内洗濯機置場、洗濯機置場、都市ガス給湯、給湯、フローリング、都市ガス、エアコン、照明器具 |
| TV・通信 |
インターネット対応、インターネット使用料無料、CS、BS端子 |
| その他 |
宅配BOX、バルコニー、エレベーター |
| 契約期間 |
2年 |
現況 |
空家 |
| 条件等 |
- |
入居可能時期 |
即時 |
| 更新料 |
新賃料 1ヶ月 |
物件番号 |
1113836415 |
| 情報公開日 |
2025年10月23日 |
次回更新予定日 |
2025年11月6日 |
| ケータイ用バーコード |
- スマートフォンでこの物件を見る
- スマートフォンからもこの物件をご覧になれます。
|
※「-」と表示されている項目については、情報提供会社にご確認ください。
| 周辺施設 |
カフェ・ド・クリエ新宿5丁目店 |
| 距離 |
904m |
写真を見る |
| 周辺施設 |
カフェ・ド・クリエ曙橋店 |
| 距離 |
945m |
写真を見る |
| 周辺施設 |
ドミノ・ピザ 新宿五丁目店 |
| 距離 |
1013m |
写真を見る |
| 周辺施設 |
すき家 曙橋店 |
| 距離 |
941m |
写真を見る |
| 周辺施設 |
コープみらい ミニコープ富久店 |
| 距離 |
468m |
写真を見る |
| 周辺施設 |
ローソン 新宿御苑中央店 |
| 距離 |
467m |
写真を見る |
ここから簡単にお問い合わせをすることができます。
(SSLでの暗号化での送信を希望されるお客さまは
こちら
よりお問い合わせください)
お問い合わせを行う前に
「個人情報の取り扱いについて」を必ずお読みください。
「個人情報の取り扱いについて」に同意いただいた場合は「上記にご同意の上 確認画面へ進む」のボタンをクリックしてください。
個人情報の取り扱いについて
皆さまが送付された個人情報はアットホーム(株)のサーバを経由し、お問い合わせ先の不動産会社にメールまたはFAXにて転送されるためアットホーム(株)にも保管されます。アットホーム(株)で保管された個人情報の取り扱いについては、【こちら】をご覧ください。
また、本画面でご記入いただいた個人情報は、お問い合わせ先の不動産会社でも保管します。 お問い合わせ先の不動産会社が保管する個人情報の取り扱いについては、不動産会社に直接お問い合わせください。
国土交通大臣免許(1)第10473号 |
|---|
- 交通:
- JR山手線/新宿駅 徒歩3分
- 東京都新宿区西新宿1丁目22-1 スタンダードビル4F
- TEL:
- 03-6824-9402
- FAX:
- 03-3342-3400
取引態様:仲介  - 00100471
|
- スマートフォンで
この不動産会社を見る

|
- 提携サイト等より掲載されている物件情報につきましては、不動産会社詳細情報にリンクされていないものがあります。
- 物件に関するお問合せは、物件詳細ページの「情報提供会社」に表示されている不動産会社へ直接お願いいたします。
- 間取図は、現況を優先させていただきます。
- 映像は物件の一部を撮影したものです。物件の契約にあたっての最終判断はご自身の判断に基づいて行ってください。
- 仲介手数料について

アットホームは物件情報の適正化に努めております。
内容に誤りがある場合にはこちらへご連絡ください。