大阪府大阪市中央区松屋町(松屋町駅)の賃貸:物件詳細
交通 所在地 |
駅徒歩 |
賃料 管理費等 |
敷金/保証金 礼金 |
間取り 面積 |
物件種目 築年月 |
|
地下鉄長堀鶴見緑地線/松屋町
大阪府大阪市中央区松屋町
|
2分
|
15万円
26,000円
|
1ヶ月 / なし
1.5ヶ月
|
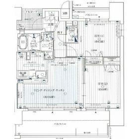
2LDK
55.24m²
|
賃貸マンション
2012年1月(築14年3ヶ月)
|
ペット相談、分譲タイプ、常時ゴミ出し可能、角部屋、振分、二人入居可、2面採光、IT重説対応物件、保証人不要
|
|
間取図
|
外観
|
<
その他の画像
>
|
| 交通 | 地下鉄長堀鶴見緑地線 松屋町駅 徒歩2分 |
|---|
| その他の交通 | 地下鉄堺筋線 長堀橋駅 徒歩6分 地下鉄谷町線 谷町六丁目駅 徒歩10分 |
| 所在地 |
大阪府大阪市中央区松屋町
|
| 物件種目 |
賃貸マンション |
| 賃料 |
15万円 |
管理費等 |
26,000円 |
| 敷金 / 保証金 |
1ヶ月 / なし |
礼金 |
1.5ヶ月 |
| 敷引 |
- |
保証金償却 |
- |
| その他一時金 |
契約事務手数料:11,000円、安心クラブ入会費:5,500円、室内清掃費用:84,700円、鍵交換代等:33,000円~ |
保険等 |
要 2年 24,000円 |
| 維持費等 |
安心クラブ:990円/月 |
クレジットカード決済 |
初期費用可 |
| 間取り |
2LDK(LDK13.4、洋6.5、洋6) |
専有面積 |
55.24m² |
| 築年月 |
2012年1月(築14年3ヶ月)
|
階建 / 階 |
14階建 / 13階 |
| 建物構造 |
RC |
総戸数 |
- |
| 主要採光面 |
西 |
駐車場 |
無 |
| バイク置き場 |
空無 |
駐輪場 |
有 |
| 建物名・部屋番号 |
エステムプラザ心斎橋EASTⅣブランディア 1305 |
ペット |
相談 |
| リフォーム履歴 |
- |
| リノベーション履歴 |
- |
| 備考 |
賃貸保証等:加入要(オリコフォレントインシュア 初回50% 月次保証料1.5%)
管理形態/管理員の勤務形態:-/巡回
IT重説対応物件、管理人巡回
心斎橋徒歩エリア♪築浅分譲マンション♪13階角部屋!
お引越し等でお悩みの際も是非ご相談ください。当店では大阪市内の物件はすべて取扱いしております。その他ご希望の物件の最新の空室状況もお調べ致します。お部屋探しはミニミニFC堺筋本町店で♪
|
| エネルギー消費性能 |
- |
| 断熱性能 |
- |
| 目安光熱費 |
- |
| バス・トイレ |
バス・トイレ別、浴室乾燥機、オートバス、追焚機能、シャワー付洗面化粧台、洗面所独立、洗面所、洗面台、温水洗浄便座、トイレ |
| キッチン |
カウンターキッチン、システムキッチン、3口以上コンロ、ガスコンロ可、グリル |
| セキュリティー |
モニター付オートロック、オートロック、モニター付インターホン、ディンプルキー、ダブルロックドア、防犯カメラ |
| 収納 |
収納スペース、クローゼット、シューズボックス |
| 設備・サービス |
室内洗濯機置場、洗濯機置場、全居室フローリング、フローリング、都市ガス、人感センサー付照明 |
| TV・通信 |
インターネット対応、光ファイバー |
| その他 |
宅配BOX、バイク置き場、二面バルコニー、バルコニー、駐輪場、エレベーター |
| 契約期間 |
1年 |
現況 |
空家 |
| 条件等 |
- |
入居可能時期 |
2026年4月中旬予定 |
| 更新料 |
49,500円 |
物件番号 |
1113898925 |
| 情報公開日 |
2026年3月26日 |
次回更新予定日 |
2026年4月9日 |
| ケータイ用バーコード |
- スマートフォンでこの物件を見る
- スマートフォンからもこの物件をご覧になれます。
|
※「-」と表示されている項目については、情報提供会社にご確認ください。
| 周辺施設 |
空堀くらし館ニューエール |
| 距離 |
172m |
写真を見る |
| 周辺施設 |
スーパーサンコー空堀店 |
| 距離 |
172m |
写真を見る |
| 周辺施設 |
ローソン松屋町駅前店 |
| 距離 |
280m |
写真を見る |
| 周辺施設 |
セリア 松屋町店 |
| 距離 |
358m |
写真を見る |
| 周辺施設 |
スギ薬局瓦屋町店 |
| 距離 |
435m |
写真を見る |
| 周辺施設 |
ほっかほか亭 島之内店 |
| 距離 |
449m |
写真を見る |
| 周辺施設 |
セリア松屋町店 |
| 距離 |
387m |
写真を見る |
ここから簡単にお問い合わせをすることができます。
(SSLでの暗号化での送信を希望されるお客さまは
こちら
よりお問い合わせください)
お問い合わせを行う前に
「個人情報の取り扱いについて」を必ずお読みください。
「個人情報の取り扱いについて」に同意いただいた場合は「上記にご同意の上 確認画面へ進む」のボタンをクリックしてください。
個人情報の取り扱いについて
皆さまが送付された個人情報はアットホーム(株)のサーバを経由し、お問い合わせ先の不動産会社にメールまたはFAXにて転送されるためアットホーム(株)にも保管されます。アットホーム(株)で保管された個人情報の取り扱いについては、【こちら】をご覧ください。
また、本画面でご記入いただいた個人情報は、お問い合わせ先の不動産会社でも保管します。 お問い合わせ先の不動産会社が保管する個人情報の取り扱いについては、不動産会社に直接お問い合わせください。
大阪府知事免許(3)第57949号 |
|---|
- 交通:
- 地下鉄中央線/堺筋本町駅 徒歩1分
- 大阪府大阪市中央区久太郎町1丁目9-17 フクダ不動産ビル201号室
- TEL:
- 06-4963-3002
- FAX:
- 06-4963-3012
- 所属団体:
- (公社)全日本不動産協会会員(公社)首都圏不動産公正取引協議会加盟
取引態様:仲介  - 50109176
|
- スマートフォンで
この不動産会社を見る

|
- 提携サイト等より掲載されている物件情報につきましては、不動産会社詳細情報にリンクされていないものがあります。
- 物件に関するお問合せは、物件詳細ページの「情報提供会社」に表示されている不動産会社へ直接お願いいたします。
- 間取図は、現況を優先させていただきます。
- 映像は物件の一部を撮影したものです。物件の契約にあたっての最終判断はご自身の判断に基づいて行ってください。
- 仲介手数料について

アットホームは物件情報の適正化に努めております。
内容に誤りがある場合にはこちらへご連絡ください。