福岡県福岡市東区香椎照葉3丁目(香椎花園前駅)の賃貸:物件詳細
交通 所在地 |
駅徒歩 |
賃料 管理費等 |
敷金/保証金 礼金 |
間取り 面積 |
物件種目 築年月 |
|
西鉄貝塚線/香椎花園前
福岡県福岡市東区香椎照葉3丁目
|
22分
|
18.5万円
5,000円
|
1ヶ月 / なし
なし
|
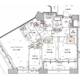
3LDK
86.81m²
|
賃貸マンション
2016年2月(築9年9ヶ月)
|
ペット相談、楽器相談、デザイナーズ、分譲タイプ、角部屋、高齢者相談、二人入居可、3面採光、24時間換気システム、バリアフリー、閑静な住宅街、外観タイル張り
|
|
間取図
|
外観
|
<
その他の画像
>
|
| 交通 | 西鉄貝塚線 香椎花園前駅 徒歩22分 |
|---|
| その他の交通 | JR鹿児島本線 香椎駅 徒歩30分 西鉄貝塚線 香椎宮前駅 徒歩29分 |
| 所在地 |
福岡県福岡市東区香椎照葉3丁目
|
| 物件種目 |
賃貸マンション |
| 賃料 |
18.5万円 |
管理費等 |
5,000円 |
| 敷金 / 保証金 |
1ヶ月 / なし |
礼金 |
なし |
| 敷引 |
- |
保証金償却 |
- |
| その他一時金 |
室内清掃費用:38,500円 |
保険等 |
要 2年 25,000円 |
| 維持費等 |
安心サポート:1,100円/月、町費:300円/月 |
クレジットカード決済 |
初期費用可 |
| 間取り |
3LDK(LDK15.7、洋6.2、洋5、洋5.5) |
専有面積 |
86.81m² |
| 築年月 |
2016年2月(築9年9ヶ月)
|
階建 / 階 |
45階建 / 3階 |
| 建物構造 |
RC |
総戸数 |
- |
| 主要採光面 |
|
駐車場 |
近有 8,800円/月 |
| バイク置き場 |
有 |
駐輪場 |
有 200円/月 |
| 建物名・部屋番号 |
アイタワー |
ペット |
小型犬可・ 猫可 |
| アピールポイント |
収納はシューズWIC・トランクルームなど豊富なので、広々と空間を利用することも可能です。セキュリティ面は、防犯カメラ・機械警備などを設置しているので安全面でも優れております。室内設備はCATV・追い焚き・BS・CSなどが揃っており、とても充実しています。共用部には敷地内ごみ置き場・エレベータなどが揃っております。設備条件が充実した月々18.5万円台のお部屋です。ゆったりとした暮らしを実現する、専有面積86.81平米のお部屋。清掃しやすくニーズの高い全居室フローリングのお住まいです。こちらの物件は閑静な住宅地にあります。こちらの物件は自走式駐車場がご利用いただけます。昼間は管理人さんがいるので防犯面は心配いりません。こだわり条件の一つ、礼金不要の得する物件となっております。 |
| リフォーム履歴 |
- |
| リノベーション履歴 |
- |
| 備考 |
賃貸保証等:加入要(初回保証料 100% 更新料12000円/年)
管理形態/管理員の勤務形態:-/日勤
外壁コンクリート、管理人日勤
ゆとりのある快適なお住まいをお探しの場合は当社の3LDKの物件をご検討ください。2駅利用可能なので、用途や行き先に応じて経路を選択できます。専有面積が86.81平米ありますので、広さは心配なし。常に新鮮な外気が入ってくるので快適な暮らしを送れます。駐輪場が併設されている物件です。他の住戸との接地面が少なく生活音が響きにくい角部屋になります。共用部には宅配ボックスが備え付けられているため、非対面で荷物を受け取れます。室内設備は洗面化粧台・浴室乾燥機・食器洗乾燥機などが揃っているので、快適に過ごしやすいお部屋になります。セキュリティ面は、TVインターホン・オートロックなど充実しているので安心して生活できます。収納はウォークインクロゼット・シューズボックスなど豊富なので、衣類や履き物の整理がしやすく便利です。築9年の物件。
|
| エネルギー消費性能 |
- |
| 断熱性能 |
- |
| 目安光熱費 |
- |
| バス・トイレ |
バス・トイレ別、浴室乾燥機、追焚機能、シャワー付洗面化粧台、洗面所独立、洗面所、洗面台、シャワー、温水洗浄便座、トイレ |
| キッチン |
カウンターキッチン、オープンキッチン、システムキッチン、食器洗浄乾燥機、浄水器、3口以上コンロ、ガスコンロ付、ガスコンロ可、グリル |
| セキュリティー |
モニター付オートロック、オートロック、モニター付インターホン、防犯カメラ |
| 収納 |
ウォークインクローゼット、収納スペース、トランクルーム、シューズインクローゼット、クローゼット、シューズボックス |
| 設備・サービス |
室内洗濯機置場、洗濯機置場、都市ガス給湯、給湯、出窓、全居室フローリング、フローリング、都市ガス |
| TV・通信 |
インターネット対応、ケーブルTV、CS、BS端子 |
| その他 |
宅配BOX、バイク置き場、ワイドバルコニー、バルコニー、駐輪場、エレベーター |
| 契約期間 |
2年 |
現況 |
居住中 |
| 条件等 |
- |
入居可能時期 |
相談 |
| 更新料 |
- |
物件番号 |
1114206712 |
| 情報公開日 |
2025年6月27日 |
次回更新予定日 |
2025年11月5日 |
| ケータイ用バーコード |
- スマートフォンでこの物件を見る
- スマートフォンからもこの物件をご覧になれます。
|
※「-」と表示されている項目については、情報提供会社にご確認ください。
| 周辺施設 |
アイランドシティコスモス保育園 |
| 距離 |
894m |
写真を見る |
| 周辺施設 |
かんな保育園 |
| 距離 |
1262m |
写真を見る |
| 周辺施設 |
アイランドシティ中央公園 |
| 距離 |
448m |
写真を見る |
| 周辺施設 |
香椎浜北公園 |
| 距離 |
656m |
写真を見る |
| 周辺施設 |
スーパーセンタートライアルアイランドシティ店 |
| 距離 |
956m |
写真を見る |
| 周辺施設 |
西鉄ストア 香椎花園店 |
| 距離 |
1704m |
写真を見る |
| 周辺施設 |
にしてつストア 香椎花園店 |
| 距離 |
1812m |
写真を見る |
| 周辺施設 |
イオンモール香椎浜 |
| 距離 |
1039m |
写真を見る |
ここから簡単にお問い合わせをすることができます。
(SSLでの暗号化での送信を希望されるお客さまは
こちら
よりお問い合わせください)
お問い合わせを行う前に
「個人情報の取り扱いについて」を必ずお読みください。
「個人情報の取り扱いについて」に同意いただいた場合は「上記にご同意の上 確認画面へ進む」のボタンをクリックしてください。
個人情報の取り扱いについて
皆さまが送付された個人情報はアットホーム(株)のサーバを経由し、お問い合わせ先の不動産会社にメールまたはFAXにて転送されるためアットホーム(株)にも保管されます。アットホーム(株)で保管された個人情報の取り扱いについては、【こちら】をご覧ください。
また、本画面でご記入いただいた個人情報は、お問い合わせ先の不動産会社でも保管します。 お問い合わせ先の不動産会社が保管する個人情報の取り扱いについては、不動産会社に直接お問い合わせください。
福岡県知事免許(2)第18562号 |
|---|
- 交通:
- JR鹿児島本線/博多駅 徒歩8分
- 福岡県福岡市博多区博多駅南1丁目14-6 クレベール博多1F
- TEL:
- 092-710-6161
- 所属団体:
- (公社)福岡県宅地建物取引業協会会員(一社)九州不動産公正取引協議会加盟
取引態様:仲介  - 80505955
|
- スマートフォンで
この不動産会社を見る

|
- 提携サイト等より掲載されている物件情報につきましては、不動産会社詳細情報にリンクされていないものがあります。
- 物件に関するお問合せは、物件詳細ページの「情報提供会社」に表示されている不動産会社へ直接お願いいたします。
- 間取図は、現況を優先させていただきます。
- 映像は物件の一部を撮影したものです。物件の契約にあたっての最終判断はご自身の判断に基づいて行ってください。
- 仲介手数料について

アットホームは物件情報の適正化に努めております。
内容に誤りがある場合にはこちらへご連絡ください。