東京都世田谷区用賀2丁目(用賀駅)の賃貸:物件詳細
交通 所在地 |
駅徒歩 |
賃料 管理費等 |
敷金/保証金 礼金 |
間取り 面積 |
物件種目 築年月 |
|
東急田園都市線/用賀
東京都世田谷区用賀2丁目
|
4分
|
11万円
10,000円
|
なし / なし
なし
|
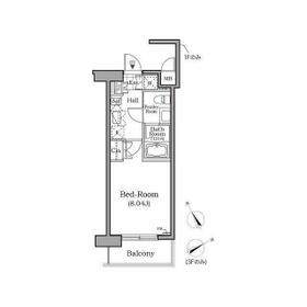
1K
25.06m²
|
賃貸マンション
2008年6月(築17年5ヶ月)
|
24時間換気システム
|
|
間取図
|
外観
|
<
その他の画像
>
|
| 交通 | 東急田園都市線 用賀駅 徒歩4分 |
|---|
| その他の交通 | 東急田園都市線 桜新町駅 徒歩18分 東急大井町線 上野毛駅 徒歩21分 |
| 所在地 |
東京都世田谷区用賀2丁目
|
| 物件種目 |
賃貸マンション |
| 賃料 |
11万円 |
管理費等 |
10,000円 |
| 敷金 / 保証金 |
なし / なし |
礼金 |
なし |
| 敷引 |
- |
保証金償却 |
- |
| その他一時金 |
なし、鍵交換代等:22,000円~ |
保険等 |
要 2年 19,000円 |
| 維持費等 |
インターネット使用料 税込み 月額:2,200円/月、入居者限定サービス2年 税込み:11,000円/月 |
| 間取り |
1K |
専有面積 |
25.06m² |
| 築年月 |
2008年6月(築17年5ヶ月)
|
階建 / 階 |
地上6階地下1階建 / 2階 |
| 建物構造 |
RC |
総戸数 |
- |
| 主要採光面 |
南西 |
駐車場 |
有 27,500円/月 |
| バイク置き場 |
- |
駐輪場 |
- |
| 建物名・部屋番号 |
レジディア用賀 209 |
ペット |
-
|
| アピールポイント |
こちらの物件を弊社にお問い合わせ頂いた方に限り仲介手数料を20%でお受付致します! |
| リフォーム履歴 |
- |
| リノベーション履歴 |
- |
| 備考 |
賃貸保証等:加入要(その他保証人代行会社名: 保証人代行内容:初回契約時:40%、更新時:10000円、月額:1000円 利用費用:(ヶ月))
管理形態/管理員の勤務形態:-/-
|
| エネルギー消費性能 |
- |
| 断熱性能 |
- |
| 目安光熱費 |
- |
| バス・トイレ |
浴室乾燥機、温水洗浄便座、トイレ |
| キッチン |
システムキッチン |
| セキュリティー |
モニター付インターホン、防犯カメラ |
| 収納 |
収納スペース |
| 設備・サービス |
給湯、フローリング |
| TV・通信 |
インターネット対応、ケーブルTV、CS、BS端子 |
| その他 |
宅配BOX、バルコニー、エレベーター |
| 契約期間 |
2年 |
現況 |
居住中 |
| 条件等 |
- |
入居可能時期 |
相談 |
| 更新料 |
旧賃料 1ヶ月 |
物件番号 |
1114388712 |
| 情報公開日 |
2025年9月13日 |
次回更新予定日 |
2025年10月28日 |
| ケータイ用バーコード |
- スマートフォンでこの物件を見る
- スマートフォンからもこの物件をご覧になれます。
|
※「-」と表示されている項目については、情報提供会社にご確認ください。
ここから簡単にお問い合わせをすることができます。
(SSLでの暗号化での送信を希望されるお客さまは
こちら
よりお問い合わせください)
お問い合わせを行う前に
「個人情報の取り扱いについて」を必ずお読みください。
「個人情報の取り扱いについて」に同意いただいた場合は「上記にご同意の上 確認画面へ進む」のボタンをクリックしてください。
個人情報の取り扱いについて
皆さまが送付された個人情報はアットホーム(株)のサーバを経由し、お問い合わせ先の不動産会社にメールまたはFAXにて転送されるためアットホーム(株)にも保管されます。アットホーム(株)で保管された個人情報の取り扱いについては、【こちら】をご覧ください。
また、本画面でご記入いただいた個人情報は、お問い合わせ先の不動産会社でも保管します。 お問い合わせ先の不動産会社が保管する個人情報の取り扱いについては、不動産会社に直接お問い合わせください。
国土交通大臣免許(10)第3440号 |
|---|
- 交通:
- JR山手線/渋谷駅 徒歩3分
- 東京都渋谷区渋谷2丁目22-11 渋谷フランセ奥野ビル3F
- TEL:
- 03-5469-8161
- FAX:
- 03-5469-8162
- 所属団体:
- (公社)東京都宅地建物取引業協会会員(一社)全国住宅産業協会会員(一社)全国賃貸不動産管理業協会会員(公社)首都圏不動産公正取引協議会加盟
取引態様:仲介  - 00313885
|
- スマートフォンで
この不動産会社を見る

|
- 提携サイト等より掲載されている物件情報につきましては、不動産会社詳細情報にリンクされていないものがあります。
- 物件に関するお問合せは、物件詳細ページの「情報提供会社」に表示されている不動産会社へ直接お願いいたします。
- 間取図は、現況を優先させていただきます。
- 映像は物件の一部を撮影したものです。物件の契約にあたっての最終判断はご自身の判断に基づいて行ってください。
- 仲介手数料について

アットホームは物件情報の適正化に努めております。
内容に誤りがある場合にはこちらへご連絡ください。