大阪府大阪市中央区松屋町(松屋町駅)の賃貸:物件詳細
交通 所在地 |
駅徒歩 |
賃料 管理費等 |
敷金/保証金 礼金 |
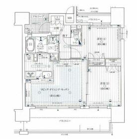
間取り 面積 |
物件種目 築年月 |
|
地下鉄長堀鶴見緑地線/松屋町
大阪府大阪市中央区松屋町
|
2分
|
15万円
26,000円
|
1ヶ月 / なし
22.5万円
|
2LDK
55.24m²
|
賃貸マンション
2012年1月(築14年3ヶ月)
|
ペット相談、デザイナーズ、分譲タイプ、常時ゴミ出し可能、高齢者相談、二人入居可、24時間セキュリティー、24時間換気システム、バリアフリー、閑静な住宅街、IT重説対応物件
|
|
間取図
|
外観
|
<
その他の画像
>
|
| 交通 | 地下鉄長堀鶴見緑地線 松屋町駅 徒歩2分 |
|---|
| その他の交通 | 地下鉄谷町線 谷町六丁目駅 徒歩10分 地下鉄千日前線 日本橋駅 徒歩15分 |
| 所在地 |
大阪府大阪市中央区松屋町
|
| 物件種目 |
賃貸マンション |
| 賃料 |
15万円 |
管理費等 |
26,000円 |
| 敷金 / 保証金 |
1ヶ月 / なし |
礼金 |
22.5万円 |
| 敷引 |
- |
保証金償却 |
- |
| その他一時金 |
【安心クラブ】 入会金:5,500円、鍵交換代等:33,000円~ |
保険等 |
要 2年 24,000円 |
| 維持費等 |
【安心クラブ】:990円/月 |
| 間取り |
2LDK |
専有面積 |
55.24m² |
| 築年月 |
2012年1月(築14年3ヶ月)
|
階建 / 階 |
14階建 / 13階 |
| 建物構造 |
RC |
総戸数 |
- |
| 主要採光面 |
西 |
駐車場 |
近有 27,500円/月 |
| バイク置き場 |
- |
駐輪場 |
- |
| 建物名・部屋番号 |
エステムプラザ心斎橋EASTIVブランディア |
ペット |
小型犬可・ 猫可 |
| アピールポイント |
共用部には宅配ボックス・ゴミ出し24時間OKなどが揃っております。セキュリティ面は、TVインターホン・オートロックなどを設置しているので安全面でも優れております。室内設備は浴室乾燥機・洗面所独立などが揃っており、とても充実しています。収納はシューズボックス・クロゼット・全居室収納など豊富なので、広々と空間を利用することも可能です。通風良好でさわやかな暮らしを送れる物件となっております。入浴時間がバラバラな家族には、追い焚き機能付のお風呂が役立ちます。広々したリビングを備える2LDKの間取りです。徒歩2分で駅にアクセス可能な、魅力的な駅近物件です。インターネットをご利用いただけます。地上波の番組だけでは物足りない方向けのBS・CS対応の物件。ペット好きのお客様には嬉しい、ペット相談可能な物件です。 |
| リフォーム履歴 |
- |
| リノベーション履歴 |
- |
| 備考 |
賃貸保証等:加入要(エステム保証 初回 総賃料50% 月額 1.5%セーフティ 初回 総賃料 100% 月額保証料 1,000円 引落し手数料 330円(税込))
管理形態/管理員の勤務形態:-/巡回
IT重説対応物件、外壁コンクリート、管理人巡回
物件のお問い合わせはSumoSumoまで♪♪
収納はクロゼット・シューズボックス・全居室収納など豊富なので、衣類や履き物の整理がしやすく便利です。共用部には宅配ボックス・ゴミ出し24時間OKなどが揃っており、とても充実しています。室内設備は洗面化粧台・浴室乾燥機などが揃っており、とても充実しています。セキュリティ面は、オートロック・TVインターホンなど充実しているので安心して生活できます。インターネット回線がある物件です。お風呂には追い焚き機能が付いています。防犯対策もバッチリなマンションタイプの物件です。快適な生活環境を提供する、エアコン付き物件となっています。駅まで歩いてアクセスできる、徒歩2分の距離に立地する物件です。入居の希望日をおつたえいただければ、誠意対応させていただきます。システムキッチンはシンクやコンロ、作業台などが一体化しているので、掃除がしやすい構造になっています。
|
| エネルギー消費性能 |
- |
| 断熱性能 |
- |
| 目安光熱費 |
- |
| バス・トイレ |
バス・トイレ別、浴室乾燥機、追焚機能、高温差湯式、シャワー付洗面化粧台、洗面所独立、洗面所、洗面台、シャワー、温水洗浄便座、トイレ |
| キッチン |
カウンターキッチン、システムキッチン、独立型キッチン、2口コンロ、ガスコンロ可、グリル |
| セキュリティー |
モニター付オートロック、オートロック、モニター付インターホン、防犯カメラ |
| 収納 |
全居室収納、収納スペース、クローゼット、シューズボックス |
| 設備・サービス |
室内洗濯機置場、洗濯機置場、都市ガス給湯、給湯、フローリング、都市ガス、エアコン、冷房 |
| TV・通信 |
インターネット対応、光ファイバー、CATVインターネット、ケーブルTV、CS、BS端子 |
| その他 |
宅配BOX、バルコニー、エレベーター |
| 契約期間 |
1年 |
現況 |
居住中 |
| 条件等 |
- |
入居可能時期 |
相談 |
| 更新料 |
- |
物件番号 |
1115233425 |
| 情報公開日 |
2026年3月27日 |
次回更新予定日 |
2026年4月10日 |
| ケータイ用バーコード |
- スマートフォンでこの物件を見る
- スマートフォンからもこの物件をご覧になれます。
|
※「-」と表示されている項目については、情報提供会社にご確認ください。
| 周辺施設 |
ライフ空堀店 |
| 距離 |
307m |
写真を見る |
| 周辺施設 |
スーパー玉出 周防町店 |
| 距離 |
450m |
写真を見る |
| 周辺施設 |
ドン・キホーテ法円坂店 |
| 距離 |
1187m |
写真を見る |
| 周辺施設 |
ローソン 松屋町駅前店 |
| 距離 |
154m |
写真を見る |
| 周辺施設 |
スギ薬局 瓦屋町店 |
| 距離 |
447m |
写真を見る |
| 周辺施設 |
大阪末吉橋郵便局 |
| 距離 |
233m |
写真を見る |
ここから簡単にお問い合わせをすることができます。
(SSLでの暗号化での送信を希望されるお客さまは
こちら
よりお問い合わせください)
お問い合わせを行う前に
「個人情報の取り扱いについて」を必ずお読みください。
「個人情報の取り扱いについて」に同意いただいた場合は「上記にご同意の上 確認画面へ進む」のボタンをクリックしてください。
個人情報の取り扱いについて
皆さまが送付された個人情報はアットホーム(株)のサーバを経由し、お問い合わせ先の不動産会社にメールまたはFAXにて転送されるためアットホーム(株)にも保管されます。アットホーム(株)で保管された個人情報の取り扱いについては、【こちら】をご覧ください。
また、本画面でご記入いただいた個人情報は、お問い合わせ先の不動産会社でも保管します。 お問い合わせ先の不動産会社が保管する個人情報の取り扱いについては、不動産会社に直接お問い合わせください。
大阪府知事免許(1)第62697号 |
|---|
- 交通:
- 地下鉄御堂筋線/心斎橋駅 徒歩3分
- 大阪府大阪市中央区南船場3丁目3-23 中和船場ビル102号
- TEL:
- 06-4400-6315
- FAX:
- 06-6258-3116
- 所属団体:
- (公社)全日本不動産協会会員(公社)近畿地区不動産公正取引協議会加盟
取引態様:仲介  - 50105934
|
- スマートフォンで
この不動産会社を見る

|
- 提携サイト等より掲載されている物件情報につきましては、不動産会社詳細情報にリンクされていないものがあります。
- 物件に関するお問合せは、物件詳細ページの「情報提供会社」に表示されている不動産会社へ直接お願いいたします。
- 間取図は、現況を優先させていただきます。
- 映像は物件の一部を撮影したものです。物件の契約にあたっての最終判断はご自身の判断に基づいて行ってください。
- 仲介手数料について

アットホームは物件情報の適正化に努めております。
内容に誤りがある場合にはこちらへご連絡ください。