愛知県名古屋市中区栄5丁目(矢場町駅)の賃貸:物件詳細
交通 所在地 |
駅徒歩 |
賃料 管理費等 |
敷金/保証金 礼金 |
間取り 面積 |
物件種目 築年月 |
|
名古屋市名城線/矢場町
愛知県名古屋市中区栄5丁目
|
9分
|
8.31万円
13,910円
|
なし / なし
なし
|
1LDK
35.52m²
|
賃貸マンション
2015年3月(築11年2ヶ月)
|
24時間換気システム
|
|
間取図
|
外観
|
<
その他の画像
>
|
| 交通 | 名古屋市名城線 矢場町駅 徒歩9分 |
|---|
| その他の交通 | JR中央線 鶴舞駅 徒歩12分 名古屋市鶴舞線 鶴舞駅 徒歩12分 |
| 所在地 |
愛知県名古屋市中区栄5丁目
|
| 物件種目 |
賃貸マンション |
| 賃料 |
8.31万円 |
管理費等 |
13,910円 |
| 敷金 / 保証金 |
なし / なし |
礼金 |
なし |
| 敷引 |
- |
保証金償却 |
- |
| その他一時金 |
プレサポ24:1,320円、鍵交換代等:29,700円~ |
保険等 |
要 1年 |
| 維持費等 |
- |
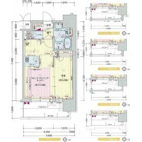
| 間取り |
1LDK(LDK10、洋5) |
専有面積 |
35.52m² |
| 築年月 |
2015年3月(築11年2ヶ月)
|
階建 / 階 |
13階建 / 3階 |
| 建物構造 |
RC |
総戸数 |
- |
| 主要採光面 |
東 |
駐車場 |
- |
| バイク置き場 |
- |
駐輪場 |
- |
| 建物名・部屋番号 |
プレサンス栄フレイヤ 302 |
ペット |
-
|
| アピールポイント |
室内設備はエアコン・追い焚き・床暖房など豊富に揃っており、過ごしやすいお部屋になっております。是非ご覧ください13階建ての高層建築。現在空き室のこのお部屋、案内も入居もすぐに行うことができます。バルコニーをご活用いただけます。お部屋の広さ35.52㎡。BSアンテナ設置済みなので、工事費要らずでBS加入できます。家賃を10万円以下に抑えることができます。敷金不要なので、初期費用削減につながります。 |
| リフォーム履歴 |
- |
| リノベーション履歴 |
- |
| 備考 |
賃貸保証等:加入要(株式会社プレサンスギャランティギャランティ 初回50% 月1.5%・セーフティー 初回50% 年10)
管理形態/管理員の勤務形態:-/-
不在時でも荷物を受け取ることができるため、時間調整の手間が省ける宅配ボックスが付いております。セキュリティ面は、TVインターホン・オートロックなど充実しているので、防犯対策もばっちりです。室内設備は浴室乾燥機・洗面化粧台など豊富に揃っており、過ごしやすいお部屋になっております。床暖房付きのマンションです。シューズボックス付きの、収納の多い玄関となっています。多くの方にご好評をいただいている、清潔感のある賃貸物件です。住み心地にこだわるならリビングやダイニングのある1LDKはイチオシです。暑い夏、寒い冬には必須のエアコンが付いています。このマンションはバルコニー付きで、用途に合わせて利用できます。地上13階建てのマンションをご紹介。
|
| エネルギー消費性能 |
- |
| 断熱性能 |
- |
| 目安光熱費 |
- |
| バス・トイレ |
浴室乾燥機、追焚機能、シャワー付洗面化粧台、シャワー、温水洗浄便座、トイレ |
| キッチン |
- |
| セキュリティー |
モニター付オートロック、オートロック、モニター付インターホン、防犯カメラ |
| 収納 |
収納スペース、シューズボックス |
| 設備・サービス |
床暖房、給湯、エアコン、暖房 |
| TV・通信 |
BS端子 |
| その他 |
宅配BOX、バルコニー、エレベーター |
| 契約期間 |
1年 |
現況 |
空家 |
| 条件等 |
- |
入居可能時期 |
即時 |
| 更新料 |
11,000円 |
物件番号 |
1115342425 |
| 情報公開日 |
2026年3月29日 |
次回更新予定日 |
2026年4月12日 |
| ケータイ用バーコード |
- スマートフォンでこの物件を見る
- スマートフォンからもこの物件をご覧になれます。
|
※「-」と表示されている項目については、情報提供会社にご確認ください。
| 周辺施設 |
名古屋東陽町郵便局 |
| 距離 |
62m |
写真を見る |
| 周辺施設 |
ファミリーマート 新栄一丁目店 |
| 距離 |
560m |
写真を見る |
| 周辺施設 |
セブンイレブン 名古屋新栄1瓦町店 |
| 距離 |
441m |
写真を見る |
| 周辺施設 |
スギ薬局 東新町店 |
| 距離 |
664m |
写真を見る |
| 周辺施設 |
東海労働金庫 本店新栄ローンセンター |
| 距離 |
902m |
写真を見る |
| 周辺施設 |
スギ薬局 東新町店 |
| 距離 |
664m |
写真を見る |
ここから簡単にお問い合わせをすることができます。
(SSLでの暗号化での送信を希望されるお客さまは
こちら
よりお問い合わせください)
お問い合わせを行う前に
「個人情報の取り扱いについて」を必ずお読みください。
「個人情報の取り扱いについて」に同意いただいた場合は「上記にご同意の上 確認画面へ進む」のボタンをクリックしてください。
個人情報の取り扱いについて
皆さまが送付された個人情報はアットホーム(株)のサーバを経由し、お問い合わせ先の不動産会社にメールまたはFAXにて転送されるためアットホーム(株)にも保管されます。アットホーム(株)で保管された個人情報の取り扱いについては、【こちら】をご覧ください。
また、本画面でご記入いただいた個人情報は、お問い合わせ先の不動産会社でも保管します。 お問い合わせ先の不動産会社が保管する個人情報の取り扱いについては、不動産会社に直接お問い合わせください。
愛知県知事免許(1)第26269号 |
|---|
- 交通:
- 名古屋市東山線/名古屋駅 徒歩3分
- 愛知県名古屋市中村区名駅4丁目24-16 リージャス広小路ガーデンアベニュービジネスセンター3F・4F
- TEL:
- 052-856-9572
- 所属団体:
- (公社)愛知県宅地建物取引業協会会員東海不動産公正取引協議会加盟
取引態様:仲介  - 40412725
|
- スマートフォンで
この不動産会社を見る

|
- 提携サイト等より掲載されている物件情報につきましては、不動産会社詳細情報にリンクされていないものがあります。
- 物件に関するお問合せは、物件詳細ページの「情報提供会社」に表示されている不動産会社へ直接お願いいたします。
- 間取図は、現況を優先させていただきます。
- 映像は物件の一部を撮影したものです。物件の契約にあたっての最終判断はご自身の判断に基づいて行ってください。
- 仲介手数料について

アットホームは物件情報の適正化に努めております。
内容に誤りがある場合にはこちらへご連絡ください。