東京都世田谷区上馬3丁目(駒沢大学駅)の賃貸:物件詳細
交通 所在地 |
駅徒歩 |
賃料 管理費等 |
敷金/保証金 礼金 |
間取り 面積 |
物件種目 築年月 |
|
東急田園都市線/駒沢大学
東京都世田谷区上馬3丁目
|
4分
|
27万円
15,000円
|
なし / なし
なし
|
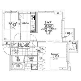
2LDK
51.12m²
|
賃貸マンション
2023年9月(築2年6ヶ月)
|
角部屋、振分、二人入居可、2面採光、24時間換気システム、閑静な住宅街、外観タイル張り、IT重説対応物件
|
|
間取図
|
外観
|
その他の画像
|
| 交通 | 東急田園都市線 駒沢大学駅 徒歩4分 |
|---|
| その他の交通 | 東急田園都市線 三軒茶屋駅 徒歩17分 東急世田谷線 西太子堂駅 徒歩22分 |
| 所在地 |
東京都世田谷区上馬3丁目
|
| 物件種目 |
賃貸マンション |
| 賃料 |
27万円 |
管理費等 |
15,000円 |
| 敷金 / 保証金 |
なし / なし |
礼金 |
なし |
| 敷引 |
- |
保証金償却 |
- |
| その他一時金 |
なし |
保険等 |
要 |
| 維持費等 |
- |
| 間取り |
2LDK |
専有面積 |
51.12m² |
| 築年月 |
2023年9月(築2年6ヶ月)
|
階建 / 階 |
4階建 / 3階 |
| 建物構造 |
RC |
総戸数 |
- |
| 主要採光面 |
東 |
駐車場 |
有 30,000円/月 |
| バイク置き場 |
- |
駐輪場 |
有 |
| 建物名・部屋番号 |
プライマル駒沢大学 |
ペット |
-
|
| リフォーム履歴 |
- |
| リノベーション履歴 |
- |
| 備考 |
管理形態/管理員の勤務形態:-/-
IT重説対応物件
保証会社利用必須・初回:賃料等の50%(月額:1000円)/鍵交換費:27500円/室内清掃費:77000円/エアコン清掃費:借主負担/入居サポート:22000円/駒沢小学校・駒沢中学校学区域/東京の高級賃貸・ファミリー物件はモノムスへ/お問合せは03-6805-2123まで/転勤・審査・交渉等お任せ下さい/他にも気になる物件がございましたら一括でご案内致します
☆ファミリータイプ専門の不動産会社モノムス☆専任のスタッフが最後まで担当 入居後も安心して生活できるよう継続してサポート 当日内見もご相談ください お急ぎの方は03-6805-2123までお気軽に♪
|
| エネルギー消費性能 |
- |
| 断熱性能 |
- |
| 目安光熱費 |
- |
| バス・トイレ |
バス・トイレ別、浴室暖房、浴室乾燥機、追焚機能、洗面所独立、洗面台、シャワー、温水洗浄便座、トイレ |
| キッチン |
カウンターキッチン、オープンキッチン、システムキッチン、3口以上コンロ、ガスコンロ付 |
| セキュリティー |
モニター付オートロック、オートロック、モニター付インターホン、ディンプルキー、防犯カメラ |
| 収納 |
収納スペース、クローゼット、シューズボックス |
| 設備・サービス |
室内洗濯機置場、洗濯機置場、給湯、全居室フローリング、フローリング、都市ガス、エアコン、暖房、冷房 |
| TV・通信 |
インターネット使用料無料、CS、BS端子 |
| その他 |
宅配BOX、バルコニー、駐輪場 |
| 契約期間 |
2年 |
現況 |
空家 |
| 条件等 |
- |
入居可能時期 |
即時 |
| 更新料 |
新賃料 1ヶ月 |
物件番号 |
1115506817 |
| 情報公開日 |
2026年1月30日 |
次回更新予定日 |
2026年2月17日 |
| ケータイ用バーコード |
- スマートフォンでこの物件を見る
- スマートフォンからもこの物件をご覧になれます。
|
※「-」と表示されている項目については、情報提供会社にご確認ください。
| 周辺施設 |
世田谷区立駒沢小学校 |
| 距離 |
802m |
写真を見る |
| 周辺施設 |
世田谷区立駒沢中学校 |
| 距離 |
1083m |
写真を見る |
| 周辺施設 |
マルエツ 真中店 |
| 距離 |
333m |
写真を見る |
| 周辺施設 |
セイジョー 駒沢大学駅前店 |
| 距離 |
394m |
写真を見る |
| 周辺施設 |
ファミリーマート 駒沢大学駅前店 |
| 距離 |
323m |
写真を見る |
ここから簡単にお問い合わせをすることができます。
(SSLでの暗号化での送信を希望されるお客さまは
こちら
よりお問い合わせください)
お問い合わせを行う前に
「個人情報の取り扱いについて」を必ずお読みください。
「個人情報の取り扱いについて」に同意いただいた場合は「上記にご同意の上 確認画面へ進む」のボタンをクリックしてください。
個人情報の取り扱いについて
皆さまが送付された個人情報はアットホーム(株)のサーバを経由し、お問い合わせ先の不動産会社にメールまたはFAXにて転送されるためアットホーム(株)にも保管されます。アットホーム(株)で保管された個人情報の取り扱いについては、【こちら】をご覧ください。
また、本画面でご記入いただいた個人情報は、お問い合わせ先の不動産会社でも保管します。 お問い合わせ先の不動産会社が保管する個人情報の取り扱いについては、不動産会社に直接お問い合わせください。
東京都知事免許(1)第106384号 |
|---|
- 交通:
- 東急田園都市線/駒沢大学駅 徒歩1分
- 東京都世田谷区駒沢1丁目5-16
- TEL:
- 03-6805-2123
- 所属団体:
- (公社)東京都宅地建物取引業協会会員(公社)首都圏不動産公正取引協議会加盟
取引態様:仲介  - 00270703
|
- スマートフォンで
この不動産会社を見る

|
- 提携サイト等より掲載されている物件情報につきましては、不動産会社詳細情報にリンクされていないものがあります。
- 物件に関するお問合せは、物件詳細ページの「情報提供会社」に表示されている不動産会社へ直接お願いいたします。
- 間取図は、現況を優先させていただきます。
- 映像は物件の一部を撮影したものです。物件の契約にあたっての最終判断はご自身の判断に基づいて行ってください。
- 仲介手数料について

アットホームは物件情報の適正化に努めております。
内容に誤りがある場合にはこちらへご連絡ください。