神奈川県相模原市南区北里2丁目(原当麻駅)の賃貸:物件詳細
交通 所在地 |
駅徒歩 |
賃料 管理費等 |
敷金/保証金 礼金 |
間取り 面積 |
物件種目 築年月 |
|
JR相模線/原当麻
神奈川県相模原市南区北里2丁目
|
37分
|
6万円
4,000円
|
なし / なし
なし
|
ワンルーム
21.88m²
|
賃貸アパート
2024年12月(築1年1ヶ月)
|
角部屋、最上階、24時間セキュリティー、24時間換気システム、閑静な住宅街、外観タイル張り、保証人不要
|
|
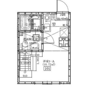
間取図
|
外観
|
<
その他の画像
>
|
| 交通 | JR相模線 原当麻駅 徒歩37分 |
|---|
| その他の交通 | JR相模線 下溝駅 徒歩46分 JR横浜線 古淵駅 徒歩48分 |
| 所在地 |
神奈川県相模原市南区北里2丁目
|
| 物件種目 |
賃貸アパート |
| 賃料 |
6万円 |
管理費等 |
4,000円 |
| 敷金 / 保証金 |
なし / なし |
礼金 |
なし |
| 敷引 |
- |
保証金償却 |
- |
| その他一時金 |
24時間サポート:19,800円、鍵交換代等:29,700円~ |
保険等 |
要 |
| 維持費等 |
- |
| 間取り |
ワンルーム(洋室6.5) |
専有面積 |
21.88m² |
| 築年月 |
2024年12月(築1年1ヶ月)
|
階建 / 階 |
2階建 / 2階 |
| 建物構造 |
木造 |
総戸数 |
- |
| 主要採光面 |
東 |
駐車場 |
近有 10,000円/月 |
| バイク置き場 |
- |
駐輪場 |
有 無料 |
| 建物名・部屋番号 |
オムニア北里 |
ペット |
-
|
| アピールポイント |
初期費用の分割決済相談可。
お問い合わせはお電話だとご案内もスムーズです。
弊社管理物件、掲載物件以外にもお客様のご要望、ご条件に合うほぼすべての物件をご提案、ご紹介させていただきます。また空き予定、未完成のお部屋でも同施工会社の類似物件の見学や周辺環境の確認などもお手伝いさせていただきます。
お気軽に~素敵なお部屋の最寄り駅~賃貸ステーションまでお問い合わせ下さいませ
|
| リフォーム履歴 |
- |
| リノベーション履歴 |
- |
| 備考 |
賃貸保証等:加入要(初回:総賃料の50% 月額:総賃料の1.5%)
管理形態/管理員の勤務形態:-/-
単身者限定
北里大学生の皆様には好立地の物件★近隣にはコンビニもあり住環境も良好★充実した室内設備★浴室乾燥機★独立洗面台★ロフト★ネット使用料無料★温水洗浄便座★モニター付きインターホン★
お部屋探しは賃貸ステーション相模大野店へ
|
| エネルギー消費性能 |
- |
| 断熱性能 |
- |
| 目安光熱費 |
- |
| バス・トイレ |
バス・トイレ別、浴室暖房、浴室乾燥機、シャワー付洗面化粧台、洗面所独立、洗面台、シャワー、温水洗浄便座、トイレ |
| キッチン |
オープンキッチン、システムキッチン、IHクッキングヒーター |
| セキュリティー |
モニター付インターホン、火災警報器(報知機) |
| 収納 |
全居室収納、収納スペース |
| 設備・サービス |
全居室エアコン、室内洗濯機置場、ロフト、給湯、全居室フローリング、フローリング、クッションフロア、エアコン |
| TV・通信 |
インターネット対応、インターネット使用料無料、ケーブルTV、CS、BS端子 |
| その他 |
駐輪場 |
| 契約期間 |
2年 |
現況 |
居住中 |
| 条件等 |
- |
入居可能時期 |
2026年3月中旬予定 |
| 更新料 |
新賃料 1ヶ月 |
物件番号 |
1115736420 |
| 情報公開日 |
2025年12月12日 |
次回更新予定日 |
2026年1月3日 |
| ケータイ用バーコード |
- スマートフォンでこの物件を見る
- スマートフォンからもこの物件をご覧になれます。
|
※「-」と表示されている項目については、情報提供会社にご確認ください。
| 周辺施設 |
ローソン北里IPE店 |
| 距離 |
794m |
写真を見る |
| 周辺施設 |
ファミリーマート北里大学学生ホール店 |
| 距離 |
1015m |
写真を見る |
| 周辺施設 |
ファミリーマート麻溝台四丁目店 |
| 距離 |
1650m |
写真を見る |
| 周辺施設 |
学校法人北里研究所北里大学病院 |
| 距離 |
651m |
写真を見る |
| 周辺施設 |
相模原北里郵便局 |
| 距離 |
277m |
写真を見る |
ここから簡単にお問い合わせをすることができます。
(SSLでの暗号化での送信を希望されるお客さまは
こちら
よりお問い合わせください)
お問い合わせを行う前に
「個人情報の取り扱いについて」を必ずお読みください。
「個人情報の取り扱いについて」に同意いただいた場合は「上記にご同意の上 確認画面へ進む」のボタンをクリックしてください。
個人情報の取り扱いについて
皆さまが送付された個人情報はアットホーム(株)のサーバを経由し、お問い合わせ先の不動産会社にメールまたはFAXにて転送されるためアットホーム(株)にも保管されます。アットホーム(株)で保管された個人情報の取り扱いについては、【こちら】をご覧ください。
また、本画面でご記入いただいた個人情報は、お問い合わせ先の不動産会社でも保管します。 お問い合わせ先の不動産会社が保管する個人情報の取り扱いについては、不動産会社に直接お問い合わせください。
国土交通大臣免許(3)第8686号 |
|---|
- 交通:
- 小田急小田原線/相模大野駅 徒歩2分
- 神奈川県相模原市南区相模大野3丁目3-1 bono相模大野南棟B106号室
- TEL:
- 042-701-8230
- FAX:
- 042-701-8231
- 所属団体:
- (公社)全日本不動産協会会員(公社)首都圏不動産公正取引協議会加盟
取引態様:仲介  - 00264987
|
- スマートフォンで
この不動産会社を見る

|
- 提携サイト等より掲載されている物件情報につきましては、不動産会社詳細情報にリンクされていないものがあります。
- 物件に関するお問合せは、物件詳細ページの「情報提供会社」に表示されている不動産会社へ直接お願いいたします。
- 間取図は、現況を優先させていただきます。
- 映像は物件の一部を撮影したものです。物件の契約にあたっての最終判断はご自身の判断に基づいて行ってください。
- 仲介手数料について

アットホームは物件情報の適正化に努めております。
内容に誤りがある場合にはこちらへご連絡ください。