神奈川県相模原市中央区清新5丁目(南橋本駅)の賃貸:物件詳細
交通 所在地 |
駅徒歩 |
賃料 管理費等 |
敷金/保証金 礼金 |
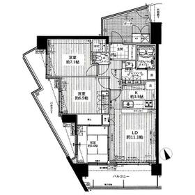
間取り 面積 |
物件種目 築年月 |
|
JR相模線/南橋本
神奈川県相模原市中央区清新5丁目
|
5分
|
13.9万円
10,000円
|
13.9万円 / なし
13.9万円
|
3LDK
73.65m²
|
賃貸マンション
2007年9月(築18年6ヶ月)
|
分譲タイプ、角部屋、外観タイル張り
|
|
間取図
|
外観
|
その他の画像
|
| 交通 | JR相模線 南橋本駅 徒歩5分 |
|---|
| その他の交通 | JR横浜線 相模原駅 徒歩23分 [バス利用可] バス 3分 清新小学校前 停歩6分 |
| 所在地 |
神奈川県相模原市中央区清新5丁目
|
| 物件種目 |
賃貸マンション |
| 賃料 |
13.9万円 |
管理費等 |
10,000円 |
| 敷金 / 保証金 |
13.9万円 / なし |
礼金 |
13.9万円 |
| 敷引 |
- |
保証金償却 |
- |
| その他一時金 |
カギ交換代:22,000円 |
保険等 |
要 850円 |
| 維持費等 |
- |
| 間取り |
3LDK(LD11.1 K3.5 洋6.5 洋7.1 和5) |
専有面積 |
73.65m² |
| 築年月 |
2007年9月(築18年6ヶ月)
|
階建 / 階 |
7階建 / 6階 |
| 建物構造 |
RC |
総戸数 |
39戸 |
| 主要採光面 |
南西 |
駐車場 |
空無 |
| バイク置き場 |
- |
駐輪場 |
- |
| 建物名・部屋番号 |
サーパス南橋本 603 |
ペット |
-
|
| リフォーム履歴 |
- |
| リノベーション履歴 |
- |
| 備考 |
賃貸保証等:加入要(㈱オリコフォレントインシュア 初回賃料等総額の50% 更新料年1万円)
管理形態/管理員の勤務形態:-/-
バルコニー:25.95m²
「南橋本駅」徒歩5分の分譲マンション。南西向き角部屋の明るいお部屋です。
☆オール電化☆☆宅配ボックス☆
|
| エネルギー消費性能 |
- |
| 断熱性能 |
- |
| 目安光熱費 |
- |
| バス・トイレ |
バス・トイレ別、浴室乾燥機、追焚機能、洗面所、温水洗浄便座 |
| キッチン |
カウンターキッチン、システムキッチン、IHクッキングヒーター |
| セキュリティー |
オートロック、モニター付インターホン |
| 収納 |
収納スペース、シューズボックス |
| 設備・サービス |
洗濯機置場、給湯、フローリング、エアコン |
| TV・通信 |
- |
| その他 |
宅配BOX、バルコニー、エレベーター |
| 契約期間 |
2年 |
現況 |
空家 |
| 条件等 |
- |
入居可能時期 |
即時 |
| 仲介手数料 |
15.29万円 |
|
|
| 更新料 |
- |
物件番号 |
1115862518 |
| 情報公開日 |
2025年12月19日 |
次回更新予定日 |
2026年2月6日 |
| ケータイ用バーコード |
- スマートフォンでこの物件を見る
- スマートフォンからもこの物件をご覧になれます。
|
※「-」と表示されている項目については、情報提供会社にご確認ください。
ここから簡単にお問い合わせをすることができます。
(SSLでの暗号化での送信を希望されるお客さまは
こちら
よりお問い合わせください)
お問い合わせを行う前に
「個人情報の取り扱いについて」を必ずお読みください。
「個人情報の取り扱いについて」に同意いただいた場合は「上記にご同意の上 確認画面へ進む」のボタンをクリックしてください。
個人情報の取り扱いについて
皆さまが送付された個人情報はアットホーム(株)のサーバを経由し、お問い合わせ先の不動産会社にメールまたはFAXにて転送されるためアットホーム(株)にも保管されます。アットホーム(株)で保管された個人情報の取り扱いについては、【こちら】をご覧ください。
また、本画面でご記入いただいた個人情報は、お問い合わせ先の不動産会社でも保管します。 お問い合わせ先の不動産会社が保管する個人情報の取り扱いについては、不動産会社に直接お問い合わせください。
東京都知事免許(7)第71467号 |
|---|
- 交通:
- JR総武線/大久保駅 徒歩6分
- 東京都新宿区西新宿7丁目22-35 西新宿三晃ビル3F
- TEL:
- 03-3367-6133
- FAX:
- 03-3367-6233
- 所属団体:
- (公社)全日本不動産協会会員(公社)首都圏不動産公正取引協議会加盟
取引態様:仲介  - 00311616
|
- スマートフォンで
この不動産会社を見る

|
- 提携サイト等より掲載されている物件情報につきましては、不動産会社詳細情報にリンクされていないものがあります。
- 物件に関するお問合せは、物件詳細ページの「情報提供会社」に表示されている不動産会社へ直接お願いいたします。
- 間取図は、現況を優先させていただきます。
- 映像は物件の一部を撮影したものです。物件の契約にあたっての最終判断はご自身の判断に基づいて行ってください。
- 仲介手数料について

アットホームは物件情報の適正化に努めております。
内容に誤りがある場合にはこちらへご連絡ください。