東京都世田谷区等々力8丁目(等々力駅)の賃貸:物件詳細
交通 所在地 |
駅徒歩 |
賃料 管理費等 |
敷金/保証金 礼金 |
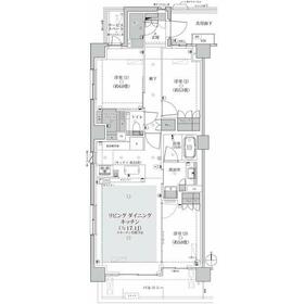
間取り 面積 |
物件種目 築年月 |
|
東急大井町線/等々力
東京都世田谷区等々力8丁目
|
16分
|
28.5万円
10,000円
|
1ヶ月 / なし
なし
|
3LDK
78.79m²
|
賃貸マンション
2021年7月(築4年9ヶ月)
|
分譲タイプ、南向き
|
|
間取図
|
外観
|
<
その他の画像
>
|
| 交通 | 東急大井町線 等々力駅 徒歩16分 |
| 所在地 |
東京都世田谷区等々力8丁目
|
| 物件種目 |
賃貸マンション |
| 賃料 |
28.5万円 |
管理費等 |
10,000円 |
| 敷金 / 保証金 |
1ヶ月 / なし |
礼金 |
なし |
| 敷引 |
- |
保証金償却 |
- |
| その他一時金 |
室内清掃費用:147,337円、鍵交換代等:33,000円~ |
保険等 |
要 |
| 維持費等 |
口座振替事務手数料:220円/月 |
| 間取り |
3LDK |
専有面積 |
78.79m² |
| 築年月 |
2021年7月(築4年9ヶ月)
|
階建 / 階 |
7階建 / 1階 |
| 建物構造 |
RC |
総戸数 |
- |
| 主要採光面 |
南 |
駐車場 |
無 |
| バイク置き場 |
- |
駐輪場 |
- |
| 建物名・部屋番号 |
|
ペット |
-
|
| リフォーム履歴 |
- |
| リノベーション履歴 |
- |
| 備考 |
賃貸保証等:加入要(初回保証委託料(最低15,000円):月額賃料等の50%、 2年目以降:10,000円/年)
管理形態/管理員の勤務形態:-/巡回
バルコニー:8m²
管理人巡回
歩いて292mの場所に、サミットストア 深沢坂上店があります。共用部には宅配ボックスが備え付けられているため、外出が多い方でも荷物を受け取ることができます。2021年築の物件です。世田谷区の東急大井町線等々力周辺でこれからお住まいをお求めになるなら、03-6228-5878からクレディフォルムまでご連絡下さい。
日々の暮らしに便利なサミットストア 深沢坂上店(スーパー)まで292mです。室内設備は浴室乾燥機・洗面所独立など大変充実しております。礼金不要のマンションです。こだわりのある住まいを探している方、当社にお任せしませんか?豊富な賃貸情報と地域情報をご提供しておりますので、ご安心していただけます。ご要望やご不明な点など、お気軽にご連絡下さい。
|
| エネルギー消費性能 |
- |
| 断熱性能 |
- |
| 目安光熱費 |
- |
| バス・トイレ |
バス・トイレ別、浴室乾燥機、追焚機能、洗面所独立、洗面所、トイレ |
| キッチン |
システムキッチン、グリル |
| セキュリティー |
オートロック |
| 収納 |
ウォークインクローゼット、収納スペース、クローゼット |
| 設備・サービス |
床暖房、室内洗濯機置場、洗濯機置場、フローリング、エアコン、暖房 |
| TV・通信 |
- |
| その他 |
宅配BOX、バルコニー、エレベーター |
| 契約期間 |
2年 |
現況 |
空家 |
| 条件等 |
- |
入居可能時期 |
即時 |
| 更新料 |
新賃料 1ヶ月 |
物件番号 |
1115909325 |
| 情報公開日 |
2026年3月28日 |
次回更新予定日 |
2026年4月12日 |
| ケータイ用バーコード |
- スマートフォンでこの物件を見る
- スマートフォンからもこの物件をご覧になれます。
|
※「-」と表示されている項目については、情報提供会社にご確認ください。
ここから簡単にお問い合わせをすることができます。
(SSLでの暗号化での送信を希望されるお客さまは
こちら
よりお問い合わせください)
お問い合わせを行う前に
「個人情報の取り扱いについて」を必ずお読みください。
「個人情報の取り扱いについて」に同意いただいた場合は「上記にご同意の上 確認画面へ進む」のボタンをクリックしてください。
個人情報の取り扱いについて
皆さまが送付された個人情報はアットホーム(株)のサーバを経由し、お問い合わせ先の不動産会社にメールまたはFAXにて転送されるためアットホーム(株)にも保管されます。アットホーム(株)で保管された個人情報の取り扱いについては、【こちら】をご覧ください。
また、本画面でご記入いただいた個人情報は、お問い合わせ先の不動産会社でも保管します。 お問い合わせ先の不動産会社が保管する個人情報の取り扱いについては、不動産会社に直接お問い合わせください。
東京都知事免許(4)第90149号 |
|---|
- 交通:
- 東京メトロ銀座線/銀座駅 徒歩2分
- 東京都中央区銀座6丁目12-15 いちご銀座612ビル4F
- TEL:
- 03-6228-5878
- FAX:
- 03-3573-3444
- 所属団体:
- (公社)東京都宅地建物取引業協会会員(公社)首都圏不動産公正取引協議会加盟
取引態様:仲介  - 00611602
|
- スマートフォンで
この不動産会社を見る

|
- 提携サイト等より掲載されている物件情報につきましては、不動産会社詳細情報にリンクされていないものがあります。
- 物件に関するお問合せは、物件詳細ページの「情報提供会社」に表示されている不動産会社へ直接お願いいたします。
- 間取図は、現況を優先させていただきます。
- 映像は物件の一部を撮影したものです。物件の契約にあたっての最終判断はご自身の判断に基づいて行ってください。
- 仲介手数料について

アットホームは物件情報の適正化に努めております。
内容に誤りがある場合にはこちらへご連絡ください。