東京都墨田区横川2丁目(錦糸町駅)の賃貸:物件詳細
交通 所在地 |
駅徒歩 |
賃料 管理費等 |
敷金/保証金 礼金 |
間取り 面積 |
物件種目 築年月 |
|
東京メトロ半蔵門線/錦糸町
東京都墨田区横川2丁目
|
9分
|
10.9万円
10,000円
|
なし / なし
1ヶ月
|
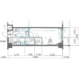
1K
25.52m²
|
賃貸マンション
2013年8月(築12年7ヶ月)
|
分譲タイプ、常時ゴミ出し可能、24時間換気システム、閑静な住宅街、外観タイル張り、IT重説対応物件、保証人不要
|
|
間取図
|
外観
|
<
その他の画像
>
|
| 交通 | 東京メトロ半蔵門線 錦糸町駅 徒歩9分 |
|---|
| その他の交通 | JR総武線 錦糸町駅 徒歩10分 都営浅草線 押上駅 徒歩15分 |
| 所在地 |
東京都墨田区横川2丁目
|
| 物件種目 |
賃貸マンション |
| 賃料 |
10.9万円 |
管理費等 |
10,000円 |
| 敷金 / 保証金 |
なし / なし |
礼金 |
1ヶ月 |
| 敷引 |
- |
保証金償却 |
- |
| その他一時金 |
室内消毒代(税込):16,500円、契約事務手数料(税込):5,500円、鍵交換(税込):38,500円 |
保険等 |
要 |
| 維持費等 |
火災保険付き24hサポート代(税込):2,200円/月 |
クレジットカード決済 |
初期費用可 |
| 間取り |
1K(洋室8畳/K2畳) |
専有面積 |
25.52m² |
| 築年月 |
2013年8月(築12年7ヶ月)
|
階建 / 階 |
7階建 / 2階 |
| 建物構造 |
RC |
総戸数 |
- |
| 主要採光面 |
東 |
駐車場 |
- |
| バイク置き場 |
- |
駐輪場 |
- |
| 建物名・部屋番号 |
ステージファースト錦糸町アジールコート 205 |
ペット |
-
|
| アピールポイント |
リモート対応可能。物件詳細、周辺環境などはお気軽にお問合せ下さい。初期費用分クレジットカード払い対応可能 |
| リフォーム履歴 |
- |
| リノベーション履歴 |
- |
| 備考 |
賃貸保証等:加入要(初回:総賃料の80%~ 月額:1%~ 決済サービス料:550円/月(税込))
管理形態/管理員の勤務形態:-/巡回
IT重説対応物件、管理人巡回
短期解約違約金あり 指定の引越業者・電力業者あり
|
| エネルギー消費性能 |
- |
| 断熱性能 |
- |
| 目安光熱費 |
- |
| バス・トイレ |
バス・トイレ別、浴室暖房、浴室乾燥機、洗面所独立、洗面台、シャワー、温水洗浄便座、トイレ |
| キッチン |
システムキッチン、2口コンロ、ガスコンロ付 |
| セキュリティー |
モニター付オートロック、オートロック、モニター付インターホン、防犯カメラ、火災警報器(報知機) |
| 収納 |
ウォークインクローゼット、収納スペース、シューズボックス |
| 設備・サービス |
室内洗濯機置場、洗濯機置場、給湯、フローリング、都市ガス、エアコン、暖房、冷房、照明器具 |
| TV・通信 |
インターネット対応、インターネット使用料無料、CS、BS端子 |
| その他 |
宅配BOX、バルコニー、エレベーター |
| 契約期間 |
2年 |
現況 |
居住中 |
| 条件等 |
- |
入居可能時期 |
相談 |
| 仲介手数料 |
1.1ヶ月 |
|
|
| 更新料 |
- |
物件番号 |
1115961717 |
| 情報公開日 |
2026年1月31日 |
次回更新予定日 |
2026年2月14日 |
| ケータイ用バーコード |
- スマートフォンでこの物件を見る
- スマートフォンからもこの物件をご覧になれます。
|
※「-」と表示されている項目については、情報提供会社にご確認ください。
| 周辺施設 |
オリナス錦糸町 |
| 距離 |
582m |
写真を見る |
| 周辺施設 |
ドン・キホーテ 錦糸町北口店 |
| 距離 |
640m |
写真を見る |
| 周辺施設 |
アルカキット錦糸町 |
| 距離 |
718m |
写真を見る |
| 周辺施設 |
ファミリーマート 墨田亀沢四丁目店 |
| 距離 |
999m |
写真を見る |
| 周辺施設 |
三徳 石原店 |
| 距離 |
963m |
写真を見る |
| 周辺施設 |
錦糸町PARCO |
| 距離 |
1075m |
写真を見る |
| 周辺施設 |
Shake Tree Burger & Bar |
| 距離 |
1289m |
写真を見る |
ここから簡単にお問い合わせをすることができます。
(SSLでの暗号化での送信を希望されるお客さまは
こちら
よりお問い合わせください)
お問い合わせを行う前に
「個人情報の取り扱いについて」を必ずお読みください。
「個人情報の取り扱いについて」に同意いただいた場合は「上記にご同意の上 確認画面へ進む」のボタンをクリックしてください。
個人情報の取り扱いについて
皆さまが送付された個人情報はアットホーム(株)のサーバを経由し、お問い合わせ先の不動産会社にメールまたはFAXにて転送されるためアットホーム(株)にも保管されます。アットホーム(株)で保管された個人情報の取り扱いについては、【こちら】をご覧ください。
また、本画面でご記入いただいた個人情報は、お問い合わせ先の不動産会社でも保管します。 お問い合わせ先の不動産会社が保管する個人情報の取り扱いについては、不動産会社に直接お問い合わせください。
東京都知事免許(1)第109136号 |
|---|
- 交通:
- 都営大江戸線/両国駅 徒歩1分
- 東京都墨田区亀沢1丁目7-8 上野ビル5F
- TEL:
- 03-6240-4200
- FAX:
- 03-6240-4210
- 所属団体:
- (公社)全日本不動産協会会員(公社)首都圏不動産公正取引協議会加盟
取引態様:仲介  - 00274602
|
- スマートフォンで
この不動産会社を見る

|
- 提携サイト等より掲載されている物件情報につきましては、不動産会社詳細情報にリンクされていないものがあります。
- 物件に関するお問合せは、物件詳細ページの「情報提供会社」に表示されている不動産会社へ直接お願いいたします。
- 間取図は、現況を優先させていただきます。
- 映像は物件の一部を撮影したものです。物件の契約にあたっての最終判断はご自身の判断に基づいて行ってください。
- 仲介手数料について

アットホームは物件情報の適正化に努めております。
内容に誤りがある場合にはこちらへご連絡ください。