埼玉県川口市西川口1丁目(西川口駅)の賃貸:物件詳細
交通 所在地 |
駅徒歩 |
賃料 管理費等 |
敷金/保証金 礼金 |
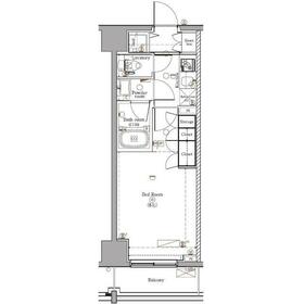
間取り 面積 |
物件種目 築年月 |
|
JR京浜東北線/西川口
埼玉県川口市西川口1丁目
|
4分
|
7.9万円
10,000円
|
なし / なし
なし
|
1K
25.38m²
|
賃貸マンション
2020年2月(築5年11ヶ月)
|
ペット相談、分譲タイプ、外観タイル張り
|
|
間取図
|
外観
|
その他の画像
|
|
|
| 交通 | JR京浜東北線 西川口駅 徒歩4分 |
|---|
| その他の交通 | JR京浜東北線 蕨駅 徒歩23分 JR京浜東北線 川口駅 徒歩30分 |
| 所在地 |
埼玉県川口市西川口1丁目
|
| 物件種目 |
賃貸マンション |
| 賃料 |
7.9万円 |
管理費等 |
10,000円 |
| 敷金 / 保証金 |
なし / なし |
礼金 |
なし |
| 敷引 |
- |
保証金償却 |
- |
| その他一時金 |
事務手数料:11,000円 |
保険等 |
要 |
| 維持費等 |
- |
クレジットカード決済 |
初期費用可 |
| 間取り |
1K(洋室8.1) |
専有面積 |
25.38m² |
| 築年月 |
2020年2月(築5年11ヶ月)
|
階建 / 階 |
11階建 / 7階 |
| 建物構造 |
RC |
総戸数 |
- |
| 主要採光面 |
南西 |
駐車場 |
近有 11,000円/月 |
| バイク置き場 |
- |
駐輪場 |
- |
| 建物名・部屋番号 |
ディップス西川口 |
ペット |
相談 |
| アピールポイント |
☆当店の強みをお伝えします☆
①クレジットカードの初期費用分割払いを、喜んでお受けいたします(クレジットカード以外もOK)
②他社様がネットに掲載されている物件は、全てお調べし、【好条件】でご紹介いたします
他社様で「お申込み」された物件でも、【好条件】でご紹介できる場合がございます
③「審査が不安…」「保証人がいない…」「値段交渉をして欲しい…」などなど、
どのようなご条件でも、遠慮なくご相談いただけます
④ご検討されている「エリア」「沿線」が「広範囲」「複数」でも、一度で漏れなくお探しいただけます
ポータルサイトや他社サイトで気になるお部屋がございましたらお気軽にご相談ください
お客様のご来店を心よりお待ちしております |
| リフォーム履歴 |
- |
| リノベーション履歴 |
- |
| 備考 |
賃貸保証等:加入要(賃料等の50%、事務手数料:11000円)
管理形態/管理員の勤務形態:-/-
外壁コンクリート
保険等加入 加入要 / 2年間 20000円 安心サポート1100円月額/鍵交換代借主負担/室内清掃費用借主負担
|
| エネルギー消費性能 |
- |
| 断熱性能 |
- |
| 目安光熱費 |
- |
| バス・トイレ |
バス・トイレ別、浴室乾燥機、洗面所独立、洗面台、シャワー、温水洗浄便座、トイレ |
| キッチン |
システムキッチン、2口コンロ、ガスコンロ付 |
| セキュリティー |
モニター付オートロック、オートロック、防犯カメラ |
| 収納 |
- |
| 設備・サービス |
室内洗濯機置場、給湯、フローリング、都市ガス、エアコン |
| TV・通信 |
インターネット対応、光ファイバー |
| その他 |
宅配BOX、エレベーター |
| 契約期間 |
2年 |
現況 |
居住中 |
| 条件等 |
- |
入居可能時期 |
2026年3月上旬予定 |
| 更新料 |
- |
物件番号 |
1115993820 |
| 情報公開日 |
2025年12月16日 |
次回更新予定日 |
2025年12月30日 |
| ケータイ用バーコード |
- スマートフォンでこの物件を見る
- スマートフォンからもこの物件をご覧になれます。
|
※「-」と表示されている項目については、情報提供会社にご確認ください。
| 周辺施設 |
まいばすけっと 西川口駅西口店 |
| 距離 |
224m |
写真を見る |
| 周辺施設 |
ファミリーマート 西川口一丁目店 |
| 距離 |
101m |
写真を見る |
| 周辺施設 |
テン・ドラッグ西川口店 |
| 距離 |
120m |
写真を見る |
| 周辺施設 |
コーナンPRO WORK&TOOLドイト西川口店 |
| 距離 |
824m |
写真を見る |
| 周辺施設 |
CoCo壱番屋 JR西川口駅西口店 |
| 距離 |
103m |
写真を見る |
| 周辺施設 |
川口総合病院 |
| 距離 |
877m |
写真を見る |
| 周辺施設 |
なごみペインクリニック |
| 距離 |
343m |
写真を見る |
ここから簡単にお問い合わせをすることができます。
(SSLでの暗号化での送信を希望されるお客さまは
こちら
よりお問い合わせください)
お問い合わせを行う前に
「個人情報の取り扱いについて」を必ずお読みください。
「個人情報の取り扱いについて」に同意いただいた場合は「上記にご同意の上 確認画面へ進む」のボタンをクリックしてください。
個人情報の取り扱いについて
皆さまが送付された個人情報はアットホーム(株)のサーバを経由し、お問い合わせ先の不動産会社にメールまたはFAXにて転送されるためアットホーム(株)にも保管されます。アットホーム(株)で保管された個人情報の取り扱いについては、【こちら】をご覧ください。
また、本画面でご記入いただいた個人情報は、お問い合わせ先の不動産会社でも保管します。 お問い合わせ先の不動産会社が保管する個人情報の取り扱いについては、不動産会社に直接お問い合わせください。
国土交通大臣免許(1)第10782号 |
|---|
- 交通:
- JR埼京線/赤羽駅 徒歩1分
- 東京都北区赤羽南1丁目6-5 鈴木ビル 2階
- TEL:
- 03-5249-4441
- FAX:
- 03-5249-4401
- 所属団体:
- (公社)全日本不動産協会会員(公社)首都圏不動産公正取引協議会加盟
取引態様:仲介  - 00786324
|
- スマートフォンで
この不動産会社を見る

|
- 提携サイト等より掲載されている物件情報につきましては、不動産会社詳細情報にリンクされていないものがあります。
- 物件に関するお問合せは、物件詳細ページの「情報提供会社」に表示されている不動産会社へ直接お願いいたします。
- 間取図は、現況を優先させていただきます。
- 映像は物件の一部を撮影したものです。物件の契約にあたっての最終判断はご自身の判断に基づいて行ってください。
- 仲介手数料について

アットホームは物件情報の適正化に努めております。
内容に誤りがある場合にはこちらへご連絡ください。