東京都板橋区大谷口上町(中板橋駅)の賃貸:物件詳細
交通 所在地 |
駅徒歩 |
賃料 管理費等 |
敷金/保証金 礼金 |
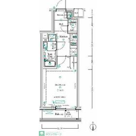
間取り 面積 |
物件種目 築年月 |
|
東武東上線/中板橋
東京都板橋区大谷口上町
|
9分
|
10.35万円
10,000円
|
なし / なし
なし
|
1K
25.92m²
|
賃貸マンション
2025年4月(築1年)
|
ペット相談、常時ゴミ出し可能、南向き、24時間セキュリティー、24時間換気システム
|
|
間取図
間取図
|
外観
|
<
その他の画像
>
|
| 交通 | 東武東上線 中板橋駅 徒歩9分 |
|---|
| その他の交通 | 東武東上線 大山駅 徒歩10分 東武東上線 ときわ台駅 徒歩18分 |
| 所在地 |
東京都板橋区大谷口上町
|
| 物件種目 |
賃貸マンション |
| 賃料 |
10.35万円 |
管理費等 |
10,000円 |
| 敷金 / 保証金 |
なし / なし |
礼金 |
なし |
| 敷引 |
- |
保証金償却 |
- |
| その他一時金 |
なし |
保険等 |
不要 |
| 維持費等 |
- |
| 間取り |
1K |
専有面積 |
25.92m² |
| 築年月 |
2025年4月(築1年)
|
階建 / 階 |
4階建 / 3階 |
| 建物構造 |
RC |
総戸数 |
24戸 |
| 主要採光面 |
南 |
駐車場 |
無 |
| バイク置き場 |
無 |
駐輪場 |
有 |
| 建物名・部屋番号 |
|
ペット |
相談 |
| アピールポイント |
インターネット上の物件はほぼ全てご紹介可能。まとめてご紹介致します。お気軽にお問合せください。お部屋探しは情報量地域ナンバー1のタウンハウジングまで。 |
| リフォーム履歴 |
- |
| リノベーション履歴 |
- |
| 備考 |
賃貸保証等:加入要(賃貸保証料:0.50ヶ月 要保証会社加入備考:入力なし)
管理形態/管理員の勤務形態:-/-
板橋区・練馬区・和光市・朝霞市を中心に数多くのお部屋を取り扱いしてます!ご紹介できるお部屋の情報量に自信あり!クレジットカード決済が可能なお部屋もお取り扱いあります!お家賃の減額や契約の開始時期など全力で交渉致します!お部屋探しは、首都圏直営140店舗以上のタウンハウジング東京成増店へ!まずはお気軽にお電話下さい!安心してお部屋をお探しできるよう親切・丁寧にご紹介する事を心掛けております!
|
| エネルギー消費性能 |
- |
| 断熱性能 |
- |
| 目安光熱費 |
- |
| バス・トイレ |
バス・トイレ別、浴室乾燥機、洗面台、温水洗浄便座、トイレ |
| キッチン |
システムキッチン、2口コンロ |
| セキュリティー |
オートロック、モニター付インターホン、ダブルロックドア、防犯カメラ |
| 収納 |
収納スペース、シューズインクローゼット、クローゼット |
| 設備・サービス |
室内洗濯機置場、都市ガス給湯、都市ガス、エアコン |
| TV・通信 |
インターネット対応、インターネット使用料無料 |
| その他 |
宅配BOX、バルコニー、駐輪場 |
| 契約期間 |
2年 |
現況 |
居住中 |
| 条件等 |
- |
入居可能時期 |
2026年4月中旬予定 |
| 更新料 |
11,000円 |
物件番号 |
1116248423 |
| 情報公開日 |
2026年3月15日 |
次回更新予定日 |
2026年3月29日 |
| ケータイ用バーコード |
- スマートフォンでこの物件を見る
- スマートフォンからもこの物件をご覧になれます。
|
※「-」と表示されている項目については、情報提供会社にご確認ください。
| 周辺施設 |
ドン・キホーテ北池袋店 |
| 距離 |
1830m |
写真を見る |
| 周辺施設 |
サミットストア板橋弥生町店 |
| 距離 |
340m |
写真を見る |
| 周辺施設 |
セブンイレブン板橋大谷口上町店 |
| 距離 |
250m |
写真を見る |
| 周辺施設 |
ミヤモトドラッグ中板橋店 |
| 距離 |
730m |
写真を見る |
| 周辺施設 |
ケーヨーデイツー東十条店 |
| 距離 |
4250m |
写真を見る |
| 周辺施設 |
ファミリーマート大谷口上町店 |
| 距離 |
260m |
写真を見る |
| 周辺施設 |
谷中銀座商店街 |
| 距離 |
7480m |
写真を見る |
| 周辺施設 |
マツモトキヨシ大山店 |
| 距離 |
760m |
写真を見る |
ここから簡単にお問い合わせをすることができます。
(SSLでの暗号化での送信を希望されるお客さまは
こちら
よりお問い合わせください)
お問い合わせを行う前に
「個人情報の取り扱いについて」を必ずお読みください。
「個人情報の取り扱いについて」に同意いただいた場合は「上記にご同意の上 確認画面へ進む」のボタンをクリックしてください。
個人情報の取り扱いについて
皆さまが送付された個人情報はアットホーム(株)のサーバを経由し、お問い合わせ先の不動産会社にメールまたはFAXにて転送されるためアットホーム(株)にも保管されます。アットホーム(株)で保管された個人情報の取り扱いについては、【こちら】をご覧ください。
また、本画面でご記入いただいた個人情報は、お問い合わせ先の不動産会社でも保管します。 お問い合わせ先の不動産会社が保管する個人情報の取り扱いについては、不動産会社に直接お問い合わせください。
国土交通大臣免許(1)第9926号 |
|---|
- 交通:
- 東武東上線/成増駅 徒歩1分
- 東京都板橋区成増2丁目17-36 1F101号室
- TEL:
- 03-5997-3555
- FAX:
- 03-5997-3556
- 所属団体:
- 所属団体未加入会員
取引態様:仲介  - 00268378
|
- スマートフォンで
この不動産会社を見る

|
- 提携サイト等より掲載されている物件情報につきましては、不動産会社詳細情報にリンクされていないものがあります。
- 物件に関するお問合せは、物件詳細ページの「情報提供会社」に表示されている不動産会社へ直接お願いいたします。
- 間取図は、現況を優先させていただきます。
- 映像は物件の一部を撮影したものです。物件の契約にあたっての最終判断はご自身の判断に基づいて行ってください。
- 仲介手数料について

アットホームは物件情報の適正化に努めております。
内容に誤りがある場合にはこちらへご連絡ください。