大阪府大阪市中央区東心斎橋1丁目(長堀橋駅)の賃貸:物件詳細
交通 所在地 |
駅徒歩 |
賃料 管理費等 |
敷金/保証金 礼金 |
間取り 面積 |
物件種目 築年月 |
|
地下鉄堺筋線/長堀橋
大阪府大阪市中央区東心斎橋1丁目
|
1分
|
24万円
35,000円
|
15万円 / なし
2ヶ月
|
1LDK
55.20m²
|
賃貸マンション
2016年2月(築9年9ヶ月)
|
分譲タイプ、常時ゴミ出し可能、高齢者相談、二人入居可、24時間セキュリティー、免震構造、2面採光、24時間換気システム、閑静な住宅街、IT重説対応物件
|
|
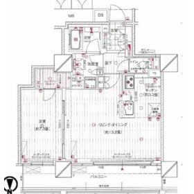
間取図
間取図
|
外観
|
<
その他の画像
>
|
| 交通 | 地下鉄堺筋線 長堀橋駅 徒歩1分 |
|---|
| その他の交通 | 地下鉄御堂筋線 心斎橋駅 徒歩7分 地下鉄長堀鶴見緑地線 松屋町駅 徒歩7分 |
| 所在地 |
大阪府大阪市中央区東心斎橋1丁目
|
| 物件種目 |
賃貸マンション |
| 賃料 |
24万円 |
管理費等 |
35,000円 |
| 敷金 / 保証金 |
15万円 / なし |
礼金 |
2ヶ月 |
| 敷引 |
- |
保証金償却 |
- |
| その他一時金 |
室内清掃費用:55,000円 |
保険等 |
要 2年 20,000円 |
| 維持費等 |
- |
| 間取り |
1LDK(LDK16.5、洋7) |
専有面積 |
55.20m² |
| 築年月 |
2016年2月(築9年9ヶ月)
|
階建 / 階 |
36階建 / 30階 |
| 建物構造 |
RC |
総戸数 |
- |
| 主要採光面 |
北 |
駐車場 |
有 27,500円/月 |
| バイク置き場 |
- |
駐輪場 |
有 |
| 建物名・部屋番号 |
ブランズタワー・ウェリス心斎橋NORTH |
ペット |
-
|
| アピールポイント |
家から191mのところに大阪南郵便局があります。室内設備は浴室乾燥機・洗面化粧台などが揃っているので、快適に過ごしやすいお部屋になります。共用部には宅配ボックス・ゴミ出し24時間OKなどが備わっておりとても充実しています。収納はクロゼット・シューズボックスなど豊富なので、衣類や履き物の整理がしやすく便利です。セキュリティ面は、オートロック・TVインターホンなど充実しているので安心して生活できます。こちらの物件は閑静な住宅地にあります。空いている駐車場があるので、近くに車を駐車できます。お手入れが簡単なフローリング設置で、お掃除もラクラク。夏場は特に涼しい通風良好な環境の良い快適空間をどうぞ。平成28年築の物件です。防犯カメラが付いているので、犯罪の抑止や不法投棄などによる入居者同士のトラブルも防止できます。 |
| リフォーム履歴 |
- |
| リノベーション履歴 |
- |
| 備考 |
賃貸保証等:加入要(全保連 初回50%・更新時10,000円/年初回50%・更新時10,000円/年)
管理形態/管理員の勤務形態:-/日勤
IT重説対応物件、外壁コンクリート、管理人日勤
物件のお問い合わせはSumoSumoまで♪♪
SumoSumoのオススメ物件です♪室内を見て頂ければきっと気に入って頂けると思います♪♪
|
| エネルギー消費性能 |
- |
| 断熱性能 |
- |
| 目安光熱費 |
- |
| バス・トイレ |
バス・トイレ別、浴室乾燥機、追焚機能、高温差湯式、シャワー付洗面化粧台、洗面所独立、洗面所、洗面台、シャワー、温水洗浄便座、トイレ |
| キッチン |
カウンターキッチン、システムキッチン、ディスポーザー、3口以上コンロ、ガスコンロ可、グリル |
| セキュリティー |
モニター付オートロック、オートロック、モニター付インターホン、防犯カメラ |
| 収納 |
ウォークインクローゼット、収納スペース、クローゼット、シューズボックス |
| 設備・サービス |
床暖房、室内洗濯機置場、洗濯機置場、都市ガス給湯、給湯、フローリング、都市ガス、エアコン、暖房、冷房、人感センサー付照明、照明器具 |
| TV・通信 |
インターネット対応、光ファイバー、CATVインターネット、ケーブルTV、CS、BS端子 |
| その他 |
宅配BOX、エレベーター2基以上、バルコニー、駐輪場、エレベーター |
| 契約期間 |
2年 |
現況 |
空家 |
| 条件等 |
- |
入居可能時期 |
即時 |
| 更新料 |
- |
物件番号 |
1116515115 |
| 情報公開日 |
2025年9月20日 |
次回更新予定日 |
2025年11月4日 |
| ケータイ用バーコード |
- スマートフォンでこの物件を見る
- スマートフォンからもこの物件をご覧になれます。
|
※「-」と表示されている項目については、情報提供会社にご確認ください。
| 周辺施設 |
MISUGIYA(ミスギヤ) クリスタ長堀店 |
| 距離 |
465m |
写真を見る |
| 周辺施設 |
スーパー玉出 周防町店 |
| 距離 |
592m |
写真を見る |
| 周辺施設 |
セブンイレブン 大阪長堀心斎橋店 |
| 距離 |
80m |
写真を見る |
| 周辺施設 |
ローソン 東心斎橋一丁目店 |
| 距離 |
115m |
写真を見る |
| 周辺施設 |
KoKuMiN クリスタ長堀店 |
| 距離 |
201m |
写真を見る |
| 周辺施設 |
大阪南郵便局 |
| 距離 |
191m |
写真を見る |
ここから簡単にお問い合わせをすることができます。
(SSLでの暗号化での送信を希望されるお客さまは
こちら
よりお問い合わせください)
お問い合わせを行う前に
「個人情報の取り扱いについて」を必ずお読みください。
「個人情報の取り扱いについて」に同意いただいた場合は「上記にご同意の上 確認画面へ進む」のボタンをクリックしてください。
個人情報の取り扱いについて
皆さまが送付された個人情報はアットホーム(株)のサーバを経由し、お問い合わせ先の不動産会社にメールまたはFAXにて転送されるためアットホーム(株)にも保管されます。アットホーム(株)で保管された個人情報の取り扱いについては、【こちら】をご覧ください。
また、本画面でご記入いただいた個人情報は、お問い合わせ先の不動産会社でも保管します。 お問い合わせ先の不動産会社が保管する個人情報の取り扱いについては、不動産会社に直接お問い合わせください。
大阪府知事免許(1)第62697号 |
|---|
- 交通:
- 地下鉄御堂筋線/心斎橋駅 徒歩3分
- 大阪府大阪市中央区南船場3丁目3-23 中和船場ビル102号
- TEL:
- 06-4400-6315
- FAX:
- 06-6258-3116
- 所属団体:
- (公社)全日本不動産協会会員(公社)近畿地区不動産公正取引協議会加盟
取引態様:仲介  - 50105934
|
- スマートフォンで
この不動産会社を見る

|
- 提携サイト等より掲載されている物件情報につきましては、不動産会社詳細情報にリンクされていないものがあります。
- 物件に関するお問合せは、物件詳細ページの「情報提供会社」に表示されている不動産会社へ直接お願いいたします。
- 間取図は、現況を優先させていただきます。
- 映像は物件の一部を撮影したものです。物件の契約にあたっての最終判断はご自身の判断に基づいて行ってください。
- 仲介手数料について

アットホームは物件情報の適正化に努めております。
内容に誤りがある場合にはこちらへご連絡ください。