東京都新宿区新宿6丁目(東新宿駅)の賃貸:物件詳細
交通 所在地 |
駅徒歩 |
賃料 管理費等 |
敷金/保証金 礼金 |
間取り 面積 |
物件種目 築年月 |
|
都営大江戸線/東新宿
東京都新宿区新宿6丁目
|
4分
|
15万円
10,000円
|
なし / なし
1ヶ月
|
1K
25.57m²
|
賃貸マンション
2018年2月(築8年3ヶ月)
|
分譲タイプ、常時ゴミ出し可能、二人入居可、24時間換気システム
|
|
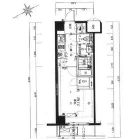
間取図
間取図
|
外観
|
その他の画像
|
| 交通 | 都営大江戸線 東新宿駅 徒歩4分 |
|---|
| その他の交通 | 都営新宿線 新宿三丁目駅 徒歩7分 都営大江戸線 若松河田駅 徒歩9分 |
| 所在地 |
東京都新宿区新宿6丁目
|
| 物件種目 |
賃貸マンション |
| 賃料 |
15万円 |
管理費等 |
10,000円 |
| 敷金 / 保証金 |
なし / なし |
礼金 |
1ヶ月 |
| 敷引 |
- |
保証金償却 |
- |
| その他一時金 |
契約事務手数料:11,000円、24H生活サポート:19,800円、ハウスクリーニング:59,400円、鍵交換代:27,500円 |
保険等 |
要 2年 20,000円 |
| 維持費等 |
- |
| 間取り |
1K(洋7.3) |
専有面積 |
25.57m² |
| 築年月 |
2018年2月(築8年3ヶ月)
|
階建 / 階 |
7階建 / 2階 |
| 建物構造 |
RC |
総戸数 |
- |
| 主要採光面 |
北西 |
駐車場 |
無 |
| バイク置き場 |
有 |
駐輪場 |
有 |
| 建物名・部屋番号 |
ハーモニーレジデンス新宿イースト 208 |
ペット |
-
|
| リフォーム履歴 |
- |
| リノベーション履歴 |
- |
| 備考 |
賃貸保証等:加入要(その他 ※初回契約時:100%、月額:1.5%)
管理形態/管理員の勤務形態:-/-
・原則契約時にルームクリーニング代59,400円税込、退去時支払い相談可能・解約予告2ヶ月前
|
| エネルギー消費性能 |
- |
| 断熱性能 |
- |
| 目安光熱費 |
- |
| バス・トイレ |
バス・トイレ別、浴室乾燥機、洗面所独立、洗面所、温水洗浄便座 |
| キッチン |
システムキッチン、ガスコンロ付 |
| セキュリティー |
モニター付オートロック、オートロック、モニター付インターホン、防犯カメラ |
| 収納 |
全居室収納、ウォークインクローゼット、クローゼット、シューズボックス |
| 設備・サービス |
室内洗濯機置場、フローリング、プロパンガス、エアコン |
| TV・通信 |
光ファイバー、ケーブルTV、CS、BS端子 |
| その他 |
宅配BOX、バイク置き場、バルコニー、駐輪場、エレベーター |
| 契約期間 |
2年 |
現況 |
居住中 |
| 条件等 |
- |
入居可能時期 |
相談 |
| 仲介手数料 |
1.1ヶ月 |
|
|
| 更新料 |
新賃料 1.5ヶ月 |
物件番号 |
1116586019 |
| 情報公開日 |
2026年4月7日 |
次回更新予定日 |
2026年4月21日 |
| ケータイ用バーコード |
- スマートフォンでこの物件を見る
- スマートフォンからもこの物件をご覧になれます。
|
※「-」と表示されている項目については、情報提供会社にご確認ください。
| 周辺施設 |
マルエツ新宿六丁目店 |
| 距離 |
265m |
写真を見る |
| 周辺施設 |
業務スーパー東新宿店 |
| 距離 |
394m |
写真を見る |
| 周辺施設 |
まいばすけっと東新宿駅南店 |
| 距離 |
455m |
写真を見る |
| 周辺施設 |
ローソンストア100新宿文化センター前店 |
| 距離 |
140m |
| 周辺施設 |
ローソン新宿イーストサイドスクエア店 |
| 距離 |
208m |
| 周辺施設 |
どらっぐぱぱす新宿イーストサイドスクエア店 |
| 距離 |
207m |
| 周辺施設 |
龍生堂薬局新宿明治通り店 |
| 距離 |
445m |
ここから簡単にお問い合わせをすることができます。
(SSLでの暗号化での送信を希望されるお客さまは
こちら
よりお問い合わせください)
お問い合わせを行う前に
「個人情報の取り扱いについて」を必ずお読みください。
「個人情報の取り扱いについて」に同意いただいた場合は「上記にご同意の上 確認画面へ進む」のボタンをクリックしてください。
個人情報の取り扱いについて
皆さまが送付された個人情報はアットホーム(株)のサーバを経由し、お問い合わせ先の不動産会社にメールまたはFAXにて転送されるためアットホーム(株)にも保管されます。アットホーム(株)で保管された個人情報の取り扱いについては、【こちら】をご覧ください。
また、本画面でご記入いただいた個人情報は、お問い合わせ先の不動産会社でも保管します。 お問い合わせ先の不動産会社が保管する個人情報の取り扱いについては、不動産会社に直接お問い合わせください。
国土交通大臣免許(6)第5521号 |
|---|
- 交通:
- 都営新宿線/曙橋駅 徒歩1分
- 東京都新宿区住吉町2-14 四谷曙橋ビル1階
- TEL:
- 03-5919-0088
- FAX:
- 03-5919-0070
- 所属団体:
- (一社)不動産協会会員(公社)首都圏不動産公正取引協議会加盟
取引態様:仲介  - 00230798
|
- スマートフォンで
この不動産会社を見る

|
- 提携サイト等より掲載されている物件情報につきましては、不動産会社詳細情報にリンクされていないものがあります。
- 物件に関するお問合せは、物件詳細ページの「情報提供会社」に表示されている不動産会社へ直接お願いいたします。
- 間取図は、現況を優先させていただきます。
- 映像は物件の一部を撮影したものです。物件の契約にあたっての最終判断はご自身の判断に基づいて行ってください。
- 仲介手数料について

アットホームは物件情報の適正化に努めております。
内容に誤りがある場合にはこちらへご連絡ください。