不動産 賃貸 マンション等の住宅情報:埼玉住まい情報


東京都台東区入谷2丁目(入谷駅)の賃貸:物件詳細

  • 物件詳細
  • 情報の見方
  • 印刷用画面
交通
所在地
駅徒歩 賃料
管理費等
敷金/保証金
礼金
間取り
面積
物件種目
築年月

東京メトロ日比谷線/入谷 新着

東京都台東区入谷2丁目

5分

12.7万円

12,000円

1ヶ月 / なし

1ヶ月

ワンルーム

37.76m²

賃貸マンション

2012年7月(築13年9ヶ月)

おすすめPOINTペット相談、分譲タイプ、常時ゴミ出し可能、24時間換気システム、外観タイル張り、IT重説対応物件、保証人不要

おすすめコメント  スタッフ: 内田 麻奈美

ペット飼育可能な分譲マンションの募集になります。 オススメのポイントはオシャレなカウンターキッチンと広々としたウォークインクローゼットになります。 居室も11.9帖ありゆとりのある生活が送れます。

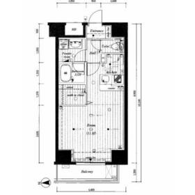
間取図

間取図

外観

外観

<
その他の画像
  • リビング
  • キッチン
  • バス/シャワー
  • 洗面
  • トイレ
  • 設備
  • 室内
  • 収納
  • 玄関
  • その他
  • バルコニー
  • その他
  • エントランス
  • 共有部分
  • 共有部分
  • 共有部分
  • 共有部分
  • 駐車場
  • その他
  • その他
  • その他
  • 外観
  • リビング
  • リビング
  • 収納
  • キッチン
  • キッチン
  • バス/シャワー
  • バス/シャワー
  • 洗面
  • 洗面
  • トイレ
  • 玄関
  • 設備
  • 設備
  • 設備
  • 設備
  • 販売店
  • コンビニ
  • 販売店
  • 販売店
  • 販売店
  • 飲食店
  • 飲食店
  • 飲食店
>
    • とりあえず保存
    • お問い合わせ
    交通

    東京メトロ日比谷線 入谷駅 徒歩5分

    その他の交通

    JR山手線 鶯谷駅 徒歩14分

    つくばエクスプレス 浅草駅 徒歩10分

    所在地 東京都台東区入谷2丁目
    物件種目 賃貸マンション
    賃料 12.7万円 管理費等 12,000円
    敷金 / 保証金 1ヶ月 / なし 礼金 1ヶ月
    敷引 保証金償却
    その他一時金 なし、鍵交換代等:33,000円~ 保険等 要 2年 15,000円
    維持費等 入居者サポート:1,210円/月 クレジットカード決済 初期費用可
    間取り ワンルーム(洋11.9) 専有面積 37.76m²
    築年月 2012年7月(築13年9ヶ月) 階建 / 階 12階建 / 2階
    建物構造 RC 総戸数
    主要採光面 西 駐車場
    バイク置き場 駐輪場
    建物名・部屋番号 レオーネ上野入谷 203 ペット 小型犬可・ 猫可
    リフォーム履歴
    リノベーション履歴
    備考
    賃貸保証等:加入要(初回保証料:月額総賃料の50% 更新保証料:1年毎に1万円 引落手数料:330円/月)
    管理形態/管理員の勤務形態:-/-
    IT重説対応物件
    退去時室内クリーニング費60500円、エアコン清掃費16500円は借主様負担
    ペット飼育の場合、保証金1ヶ月追加(償却)
    短期解約違約金:1年未満の解約の場合、賃料等の1ヶ月分
    共用部分の付随設備の詳細(空き状況・料金等)は要確認
    ご入居される方のご内容によって保証会社等の契約条件に変動あり
    借主様の瑕疵による汚れ・キズ等は別途ご負担いただきます。
    エネルギー消費性能
    断熱性能
    目安光熱費
    バス・トイレ バス・トイレ別、浴室乾燥機、シャワー付洗面化粧台、洗面所独立、洗面所、温水洗浄便座、トイレ
    キッチン カウンターキッチン、システムキッチン、2口コンロ、ガスコンロ可、グリル
    セキュリティー モニター付オートロック、オートロック、モニター付インターホン、ディンプルキー、ダブルロックドア、防犯カメラ
    収納 ウォークインクローゼット、収納スペース、クローゼット、シューズボックス
    設備・サービス 室内洗濯機置場、洗濯機置場、フローリング、都市ガス、エアコン、人感センサー付照明、間接照明、複層ガラス
    TV・通信 インターネット対応、光ファイバー
    その他 宅配BOX、バルコニー、エレベーター
    契約期間 2年 現況 居住中
    条件等 入居可能時期 2026年4月下旬予定
    仲介手数料 1.1ヶ月    
    更新料 新賃料 1ヶ月 物件番号 1116682925
    情報公開日 2026年3月29日 次回更新予定日 2026年4月12日
    ケータイ用バーコード

    QRコード

    スマートフォンでこの物件を見る
    スマートフォンからもこの物件をご覧になれます。
    ※「-」と表示されている項目については、情報提供会社にご確認ください。

    この物件の周辺情報

    周辺施設 いなげや 入谷店
    距離 227m
    周辺施設 ミニストップ 入谷2丁目店
    距離 161m
    周辺施設 ミヤモトドラッグ 入谷店
    距離 250m
    周辺施設 浅草ROX
    距離 1168m
    周辺施設 ドン・キホーテ 浅草店
    距離 1058m
    周辺施設 マクドナルド 三ノ輪店
    距離 1073m
    周辺施設 オリジン弁当かっぱ橋店
    距離 335m
    周辺施設 ガスト 台東根岸店
    距離 776m

    クイックお問い合わせ

    ここから簡単にお問い合わせをすることができます。
    (SSLでの暗号化での送信を希望されるお客さまは こちら よりお問い合わせください)

    お問い合わせ内容(必須)
    お名前(必須) 姓  名 
    メールアドレス(必須)
    ※携帯電話のメールアドレスをご入力される方はこちらをご確認ください
    電話番号(必須)
    - -

    ※入力いただいた電話番号へSMSまたは音声でパスワードをご連絡します。

    携帯電話の番号をご入力の方へ

    携帯電話の番号をご入力の方へ
    確認画面にて送信ボタンをクリックするとSMSが携帯電話に届きます。
    そのSMSに記載のパスワード(認証番号)を入力し、お問い合わせを完了してください。
    尚、SMSの送信者番号は 0005 202 760 となります。
    これはアットホームの固定番号です。

    備考欄 希望条件、物件案内希望日、質問などがございましたらご記入ください。
    お問い合わせを行う前に「個人情報の取り扱いについて」を必ずお読みください。
    「個人情報の取り扱いについて」に同意いただいた場合は「上記にご同意の上 確認画面へ進む」のボタンをクリックしてください。

    個人情報の取り扱いについて

    皆さまが送付された個人情報はアットホーム(株)のサーバを経由し、お問い合わせ先の不動産会社にメールまたはFAXにて転送されるためアットホーム(株)にも保管されます。アットホーム(株)で保管された個人情報の取り扱いについては、【こちら】をご覧ください。
    また、本画面でご記入いただいた個人情報は、お問い合わせ先の不動産会社でも保管します。 お問い合わせ先の不動産会社が保管する個人情報の取り扱いについては、不動産会社に直接お問い合わせください。

    情報提供会社

    情報提供会社

    (株)部屋市場 上野本店

    東京都知事免許(4)第88642号

    交通:
    JR山手線/御徒町駅 徒歩2分
    東京都台東区上野6丁目5-1 羽山ビル2F
    TEL:
    03-5818-8387
    FAX:
    03-5818-8386
    所属団体:
    (公社)全日本不動産協会会員
    (公社)首都圏不動産公正取引協議会加盟

    取引態様:仲介

    • 会社情報
    • 00018394
    スマートフォンで
    この不動産会社を見る
    QRコード
    • とりあえず保存
    • お問い合わせ
    • 提携サイト等より掲載されている物件情報につきましては、不動産会社詳細情報にリンクされていないものがあります。
    • 物件に関するお問合せは、物件詳細ページの「情報提供会社」に表示されている不動産会社へ直接お願いいたします。
    • 間取図は、現況を優先させていただきます。
    • 映像は物件の一部を撮影したものです。物件の契約にあたっての最終判断はご自身の判断に基づいて行ってください。
    • 仲介手数料について仲介手数料

    アットホームは物件情報の適正化に努めております。 内容に誤りがある場合にはこちらへご連絡ください。

    【埼玉住まい情報】では、日本全国の物件から賃貸マンションや賃貸アパート・賃貸一戸建て等の賃貸住宅情報、新築マンション・分譲マンションや中古マンション等の売買マンション情報、新築一戸建てや中古一戸建てなどの戸建住宅、 土地など、総合的な不動産住宅情報検索サービスを提供致します。
    【埼玉住まい情報】から、選りすぐりの不動産物件を探してみましょう。

    【免責事項】
    このコーナーの運営はアットホーム株式会社(https://www.athome.co.jp/)が行っています。
    このコーナーに掲載している物件情報は、「アットホーム不動産情報ネットワーク」に加盟する不動産会社等(情報提供元)から提供されています。信頼性の高い情報提供が行えるよう、最大限の努力をしておりますが、その内容を保証するものではありません。 利用者のみなさまと各情報提供元との取引に起因する損害および情報が掲載されたことに起因する損害等については、株式会社イーシティ埼玉、およびアットホームは一切責任を負いません。
    各物件情報の内容や画像等はすべて現況を優先させていただきます。
    お取引等(お取引の準備、資金調達等を含みます)の際には、内容や契約条件等について、各情報提供元より十分な説明を受け、ご自身でご確認の上、判断してください。
    このコーナーへの物件情報のご掲載、その他不動産業務ソリューション等についての不動産会社様のお問合せはこちらからお願いいたします。

    物件画像: