東京都北区東十条2丁目(東十条駅)の賃貸:物件詳細
交通 所在地 |
駅徒歩 |
賃料 管理費等 |
敷金/保証金 礼金 |
間取り 面積 |
物件種目 築年月 |
|
JR京浜東北線/東十条
東京都北区東十条2丁目
|
3分
|
10万円
12,000円
|
なし / 1.5ヶ月
なし
|
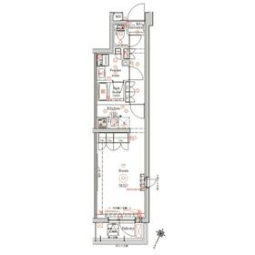
ワンルーム
29.10m²
|
賃貸マンション
2022年2月(築4年1ヶ月)
|
ペット相談、分譲タイプ、常時ゴミ出し可能、角部屋、二人入居可、24時間セキュリティー、2面採光、24時間換気システム、外観タイル張り、IT重説対応物件
|
|
間取図
角部屋・1Kたいプ
|
外観
「東十条」駅、徒歩3分
|
<
その他の画像
>
|
| 交通 | JR京浜東北線 東十条駅 徒歩3分 |
|---|
| その他の交通 | JR埼京線 十条駅 徒歩10分 東京メトロ南北線 王子神谷駅 徒歩12分 |
| 所在地 |
東京都北区東十条2丁目
|
| 物件種目 |
賃貸マンション |
| 賃料 |
10万円 |
管理費等 |
12,000円 |
| 敷金 / 保証金 |
なし / 1.5ヶ月 |
礼金 |
なし |
| 敷引 |
- |
保証金償却 |
- |
| その他一時金 |
ルームクリーニング費:55,000円、PIMサポートクラブ:27,000円、契約事務手数料:11,000円、鍵交換費:33,000円 |
保険等 |
要 2年 27,000円 |
| 維持費等 |
- |
クレジットカード決済 |
初期費用可 |
| 間取り |
ワンルーム(洋室8.5畳) |
専有面積 |
29.10m² |
| 築年月 |
2022年2月(築4年1ヶ月)
|
階建 / 階 |
5階建 / 3階 |
| 建物構造 |
RC |
総戸数 |
- |
| 主要採光面 |
北西 |
駐車場 |
- |
| バイク置き場 |
- |
駐輪場 |
有 |
| 建物名・部屋番号 |
ガリシア東十条South |
ペット |
相談 |
| アピールポイント |
2022年築!「東十条駅」、徒歩3分!「東京駅」まで直通19分!徒歩圏内に「十条駅」や「王子神谷」駅もあるので3路線利用可能です! |
| リフォーム履歴 |
- |
| リノベーション履歴 |
- |
| 備考 |
賃貸保証等:加入要(初回保証委託料は総賃料等の30%~ 2年目以降1年毎に10,000円)
管理形態/管理員の勤務形態:-/巡回
バルコニー:3.24m²
IT重説対応物件、管理人巡回
・保証金⇒契約時償却・PIMサポートクラブ(2年間)⇒保険料16,000円(2年間)含む・法人契約⇒敷1・礼2に変更・更新料:新賃料の1ヵ月分・更新事務手数料:0.5ヵ月・短期解約違約金:1年未満で賃料1ヶ月分・ペット飼育時:保証金1ヵ月追加
|
| エネルギー消費性能 |
- |
| 断熱性能 |
- |
| 目安光熱費 |
- |
| バス・トイレ |
バス・トイレ別、浴室暖房、浴室乾燥機、洗面所独立、洗面台、シャワー、温水洗浄便座、トイレ |
| キッチン |
システムキッチン、2口コンロ、ガスコンロ可 |
| セキュリティー |
モニター付オートロック、オートロック、ディンプルキー、ダブルロックドア、防犯カメラ |
| 収納 |
収納スペース、クローゼット、シューズボックス |
| 設備・サービス |
室内洗濯機置場、洗濯機置場、給湯、フローリング、都市ガス、エアコン、暖房、冷房 |
| TV・通信 |
インターネット使用料無料、CS、BS端子 |
| その他 |
宅配BOX、バルコニー、駐輪場、エレベーター |
| 契約期間 |
2年 |
現況 |
居住中 |
| 条件等 |
- |
入居可能時期 |
2026年3月上旬予定 |
| 仲介手数料 |
1.1ヶ月 |
|
|
| 更新料 |
新賃料 1ヶ月 |
物件番号 |
1116685617 |
| 情報公開日 |
2026年2月3日 |
次回更新予定日 |
2026年3月4日 |
| ケータイ用バーコード |
- スマートフォンでこの物件を見る
- スマートフォンからもこの物件をご覧になれます。
|
※「-」と表示されている項目については、情報提供会社にご確認ください。
| 周辺施設 |
ローソン 北区東十条二丁目店 |
| 距離 |
145m |
写真を見る |
| 周辺施設 |
セブンイレブン 北区東十条2丁目店 |
| 距離 |
217m |
写真を見る |
| 周辺施設 |
まいばすけっと 東十条1丁目店 |
| 距離 |
427m |
写真を見る |
| 周辺施設 |
サミットストア 王子桜田通り店 |
| 距離 |
587m |
写真を見る |
ここから簡単にお問い合わせをすることができます。
(SSLでの暗号化での送信を希望されるお客さまは
こちら
よりお問い合わせください)
お問い合わせを行う前に
「個人情報の取り扱いについて」を必ずお読みください。
「個人情報の取り扱いについて」に同意いただいた場合は「上記にご同意の上 確認画面へ進む」のボタンをクリックしてください。
個人情報の取り扱いについて
皆さまが送付された個人情報はアットホーム(株)のサーバを経由し、お問い合わせ先の不動産会社にメールまたはFAXにて転送されるためアットホーム(株)にも保管されます。アットホーム(株)で保管された個人情報の取り扱いについては、【こちら】をご覧ください。
また、本画面でご記入いただいた個人情報は、お問い合わせ先の不動産会社でも保管します。 お問い合わせ先の不動産会社が保管する個人情報の取り扱いについては、不動産会社に直接お問い合わせください。
東京都知事免許(4)第87852号 |
|---|
- 交通:
- 東京メトロ銀座線/赤坂見附駅 徒歩3分
- 東京都港区赤坂3丁目15-5 アーベイン赤坂1階・2階
- TEL:
- 03-5575-3201
- FAX:
- 03-5575-9140
- 所属団体:
- (公社)全日本不動産協会会員(公社)首都圏不動産公正取引協議会加盟
取引態様:仲介  - 00017577
|
- スマートフォンで
この不動産会社を見る

|
- 提携サイト等より掲載されている物件情報につきましては、不動産会社詳細情報にリンクされていないものがあります。
- 物件に関するお問合せは、物件詳細ページの「情報提供会社」に表示されている不動産会社へ直接お願いいたします。
- 間取図は、現況を優先させていただきます。
- 映像は物件の一部を撮影したものです。物件の契約にあたっての最終判断はご自身の判断に基づいて行ってください。
- 仲介手数料について

アットホームは物件情報の適正化に努めております。
内容に誤りがある場合にはこちらへご連絡ください。