東京都港区南青山5丁目(表参道駅)の賃貸:物件詳細
交通 所在地 |
駅徒歩 |
賃料 管理費等 |
敷金/保証金 礼金 |
間取り 面積 |
物件種目 築年月 |
|
東京メトロ銀座線/表参道
東京都港区南青山5丁目
|
4分
|
48万円
25,000円
|
96万円 / なし
48万円
|
2LDK
75.95m²
|
賃貸マンション
1977年12月(築48年4ヶ月)
|
分譲タイプ、最上階、南向き、オール電化
|
|
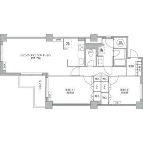
間取図
|
外観
|
その他の画像
|
| 交通 | 東京メトロ銀座線 表参道駅 徒歩4分 |
|---|
| その他の交通 | 東京メトロ半蔵門線 表参道駅 徒歩4分 東京メトロ千代田線 表参道駅 徒歩4分 |
| 所在地 |
東京都港区南青山5丁目
|
| 物件種目 |
賃貸マンション |
| 賃料 |
48万円 |
管理費等 |
25,000円 |
| 敷金 / 保証金 |
96万円 / なし |
礼金 |
48万円 |
| 敷引 |
- |
保証金償却 |
- |
| その他一時金 |
鍵交換代:37,400円、アクト安心ライフ24:16,500円 |
保険等 |
要 2年 20,000円 |
| 維持費等 |
- |
| 間取り |
2LDK(洋8 洋6 LDK17) |
専有面積 |
75.95m² |
| 築年月 |
1977年12月(築48年4ヶ月)
|
階建 / 階 |
5階建 / 5階 |
| 建物構造 |
RC |
総戸数 |
1戸 |
| 主要採光面 |
南 |
駐車場 |
無 |
| バイク置き場 |
- |
駐輪場 |
- |
| 建物名・部屋番号 |
パレ・ロワイヤル南青山 502 |
ペット |
-
|
| リフォーム履歴 |
- |
| リノベーション履歴 |
- |
| 備考 |
賃貸保証等:加入要(エポスカード 申込時必要書類・初回・月次・条件等の詳細につきましては、申し込み前にご確認ください。)
管理形態/管理員の勤務形態:-/-
表参道駅徒歩5分以内☆
クロスやフローリングの貼替予定!
|
| エネルギー消費性能 |
- |
| 断熱性能 |
- |
| 目安光熱費 |
- |
| バス・トイレ |
バス・トイレ別、洗面所独立、洗面所、洗面台、シャワー、温水洗浄便座 |
| キッチン |
システムキッチン、IHクッキングヒーター、3口以上コンロ、2口コンロ、グリル |
| セキュリティー |
オートロック、モニター付インターホン、防犯カメラ |
| 収納 |
収納スペース、シューズボックス |
| 設備・サービス |
全居室エアコン、エアコン2台以上、室内洗濯機置場、洗濯機置場、給湯、エアコン、暖房、冷房 |
| TV・通信 |
インターネット対応、CATVインターネット |
| その他 |
宅配BOX、バルコニー、エレベーター |
| 契約期間 |
2年 |
現況 |
- |
| 条件等 |
定期借家 |
入居可能時期 |
2026年4月4日予定 |
| 仲介手数料 |
52.8万円 |
|
|
| 更新料 |
新賃料 1ヶ月 |
物件番号 |
1116702418 |
| 情報公開日 |
2026年3月4日 |
次回更新予定日 |
2026年3月18日 |
| ケータイ用バーコード |
- スマートフォンでこの物件を見る
- スマートフォンからもこの物件をご覧になれます。
|
※「-」と表示されている項目については、情報提供会社にご確認ください。
| 周辺施設 |
紀伊国屋インターナショナル |
| 距離 |
640m |
ここから簡単にお問い合わせをすることができます。
(SSLでの暗号化での送信を希望されるお客さまは
こちら
よりお問い合わせください)
お問い合わせを行う前に
「個人情報の取り扱いについて」を必ずお読みください。
「個人情報の取り扱いについて」に同意いただいた場合は「上記にご同意の上 確認画面へ進む」のボタンをクリックしてください。
個人情報の取り扱いについて
皆さまが送付された個人情報はアットホーム(株)のサーバを経由し、お問い合わせ先の不動産会社にメールまたはFAXにて転送されるためアットホーム(株)にも保管されます。アットホーム(株)で保管された個人情報の取り扱いについては、【こちら】をご覧ください。
また、本画面でご記入いただいた個人情報は、お問い合わせ先の不動産会社でも保管します。 お問い合わせ先の不動産会社が保管する個人情報の取り扱いについては、不動産会社に直接お問い合わせください。
国土交通大臣免許(5)第6189号 |
|---|
- 交通:
- 京王線/調布駅 徒歩1分
- 東京都調布市布田4丁目6-1 調布丸善ビル4F
- TEL:
- 042-489-1513
- FAX:
- 042-489-1512
- 所属団体:
- (公社)東京都宅地建物取引業協会会員不動産公正取引協議会加盟
取引態様:代理  - 00351779
|
- スマートフォンで
この不動産会社を見る

|
- 提携サイト等より掲載されている物件情報につきましては、不動産会社詳細情報にリンクされていないものがあります。
- 物件に関するお問合せは、物件詳細ページの「情報提供会社」に表示されている不動産会社へ直接お願いいたします。
- 間取図は、現況を優先させていただきます。
- 映像は物件の一部を撮影したものです。物件の契約にあたっての最終判断はご自身の判断に基づいて行ってください。
- 仲介手数料について

アットホームは物件情報の適正化に努めております。
内容に誤りがある場合にはこちらへご連絡ください。