大阪府大阪市住之江区粉浜1丁目(粉浜駅)の賃貸:物件詳細
交通 所在地 |
駅徒歩 |
賃料 管理費等 |
敷金/保証金 礼金 |
間取り 面積 |
物件種目 築年月 |
|
南海本線/粉浜
大阪府大阪市住之江区粉浜1丁目
|
4分
|
7.7万円
6,000円
|
なし / なし
1ヶ月
|
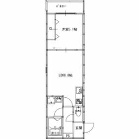
1LDK
35.31m²
|
賃貸アパート
2026年2月
|
駐車場2台分、角部屋、最上階、高齢者相談、ルームシェア可、二人入居可、24時間セキュリティー、ハイサッシ採用、2面採光、24時間換気システム、閑静な住宅街、保証人不要
|
|
間取図
|
外観
|
<
その他の画像
>
|
| 交通 | 南海本線 粉浜駅 徒歩4分 |
|---|
| その他の交通 | 阪堺電気軌道阪堺線 東粉浜駅 徒歩4分 地下鉄四つ橋線 玉出駅 徒歩7分 |
| 所在地 |
大阪府大阪市住之江区粉浜1丁目
|
| 物件種目 |
賃貸アパート |
| 賃料 |
7.7万円 |
管理費等 |
6,000円 |
| 敷金 / 保証金 |
なし / なし |
礼金 |
1ヶ月 |
| 敷引 |
- |
保証金償却 |
- |
| その他一時金 |
なし |
保険等 |
不要 |
| 維持費等 |
生活安心サポート費用:550円/月、駐輪場利用料:330円/月、月額利用料:2,490円/月、バイク置場利用料:3,300円/月 |
クレジットカード決済 |
初期費用可 |
| 間取り |
1LDK(洋室5.1畳/LDK8.8畳) |
専有面積 |
35.31m² |
| 築年月 |
2026年2月
|
階建 / 階 |
3階建 / 3階 |
| 建物構造 |
木造 |
総戸数 |
- |
| 主要採光面 |
東 |
駐車場 |
有 16,500円/月 |
| バイク置き場 |
有 |
駐輪場 |
有 |
| 建物名・部屋番号 |
EIJU粉浜駅前 |
ペット |
-
|
| アピールポイント |
新築ハイツ 角部屋 バイク置場有 1Gインターネット無料 追焚バス 2人入居可 お部屋探しはホームセレクト玉出店まで その他にも敷金礼金無し、新築、ペット可、デザイナーズ、分譲賃貸、戸建、タワーマンション、家具家電付、仲介手数料無料、仲介手数料半月、楽器、保証人不要、高齢者相談、事務所可等の物件もご相談下さい。他にもいろいろな物件がございます。お部屋探しはホームセレクト玉出店まで |
| リフォーム履歴 |
- |
| リノベーション履歴 |
- |
| 備考 |
賃貸保証等:加入要(初回保証料:総賃料の100%・1年更新1万円)
管理形態/管理員の勤務形態:-/巡回
非喫煙者限定、外壁サイディング、管理人巡回
新築ハイツ 角部屋 バイク置場有 1Gインターネット無料 追焚バス 2人入居可 お部屋探しはホームセレクト玉出店まで
新築ハイツ 角部屋 バイク置場有 1Gインターネット無料 追焚バス 2人入居可 お部屋探しはホームセレクト玉出店まで
|
| エネルギー消費性能 |
- |
| 断熱性能 |
- |
| 目安光熱費 |
- |
| バス・トイレ |
バス・トイレ別、浴室暖房、浴室乾燥機、追焚機能、シャワー付洗面化粧台、洗面所独立、洗面台、シャワー、温水洗浄便座、トイレ |
| キッチン |
システムキッチン、2口コンロ、ガスコンロ可 |
| セキュリティー |
モニター付オートロック、オートロック、モニター付インターホン、ディンプルキー、ダブルロックドア、防犯カメラ、シャッター雨戸、防犯用ガラス、火災警報器(報知機) |
| 収納 |
収納スペース、クローゼット、シューズボックス |
| 設備・サービス |
室内洗濯機置場、洗濯機置場、給湯、全居室フローリング、フローリング、都市ガス、エアコン、暖房、冷房、ダウンライト、照明器具、複層ガラス |
| TV・通信 |
インターネット対応、インターネット使用料無料、CATVインターネット、ケーブルTV |
| その他 |
宅配BOX、バイク置き場、バルコニー、駐輪場 |
| 契約期間 |
2年 |
現況 |
未完成 |
| 条件等 |
- |
入居可能時期 |
指定有り2026年2月15日 |
| 更新料 |
- |
物件番号 |
1116752117 |
| 情報公開日 |
2026年2月3日 |
次回更新予定日 |
2026年2月18日 |
| ケータイ用バーコード |
- スマートフォンでこの物件を見る
- スマートフォンからもこの物件をご覧になれます。
|
※「-」と表示されている項目については、情報提供会社にご確認ください。
| 周辺施設 |
コノミヤ粉浜店 |
| 距離 |
278m |
写真を見る |
ここから簡単にお問い合わせをすることができます。
(SSLでの暗号化での送信を希望されるお客さまは
こちら
よりお問い合わせください)
お問い合わせを行う前に
「個人情報の取り扱いについて」を必ずお読みください。
「個人情報の取り扱いについて」に同意いただいた場合は「上記にご同意の上 確認画面へ進む」のボタンをクリックしてください。
個人情報の取り扱いについて
皆さまが送付された個人情報はアットホーム(株)のサーバを経由し、お問い合わせ先の不動産会社にメールまたはFAXにて転送されるためアットホーム(株)にも保管されます。アットホーム(株)で保管された個人情報の取り扱いについては、【こちら】をご覧ください。
また、本画面でご記入いただいた個人情報は、お問い合わせ先の不動産会社でも保管します。 お問い合わせ先の不動産会社が保管する個人情報の取り扱いについては、不動産会社に直接お問い合わせください。
大阪府知事免許(3)第56965号 |
|---|
- 交通:
- 地下鉄四つ橋線/玉出駅 徒歩1分
- 大阪府大阪市西成区玉出西2丁目6-1
- TEL:
- 06-6655-6711
- FAX:
- 06-6655-6712
- 所属団体:
- (公社)全日本不動産協会会員(公社)近畿地区不動産公正取引協議会加盟
取引態様:仲介  - 50107958
|
- スマートフォンで
この不動産会社を見る

|
- 提携サイト等より掲載されている物件情報につきましては、不動産会社詳細情報にリンクされていないものがあります。
- 物件に関するお問合せは、物件詳細ページの「情報提供会社」に表示されている不動産会社へ直接お願いいたします。
- 間取図は、現況を優先させていただきます。
- 映像は物件の一部を撮影したものです。物件の契約にあたっての最終判断はご自身の判断に基づいて行ってください。
- 仲介手数料について

アットホームは物件情報の適正化に努めております。
内容に誤りがある場合にはこちらへご連絡ください。