東京都新宿区歌舞伎町2丁目(東新宿駅)の賃貸:物件詳細
交通 所在地 |
駅徒歩 |
賃料 管理費等 |
敷金/保証金 礼金 |
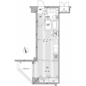
間取り 面積 |
物件種目 築年月 |
|
都営大江戸線/東新宿
東京都新宿区歌舞伎町2丁目
|
4分
|
12.9万円
10,000円
|
1.5ヶ月 / なし
1ヶ月
|
1DK
30.96m²
|
賃貸マンション
2003年2月(築22年9ヶ月)
|
分譲タイプ、高齢者相談、二人入居可、外観タイル張り、IT重説対応物件
|
|
間取図
|
外観
外はこのようになっています
|
<
その他の画像
>
|
| 交通 | 都営大江戸線 東新宿駅 徒歩4分 |
|---|
| その他の交通 | 西武新宿線 西武新宿駅 徒歩6分 JR山手線 新大久保駅 徒歩11分 |
| 所在地 |
東京都新宿区歌舞伎町2丁目
|
| 物件種目 |
賃貸マンション |
| 賃料 |
12.9万円 |
管理費等 |
10,000円 |
| 敷金 / 保証金 |
1.5ヶ月 / なし |
礼金 |
1ヶ月 |
| 敷引 |
- |
保証金償却 |
- |
| その他一時金 |
24時間メンテナンスサービス(2年毎):16,500円、鍵交換代等:29,700円~ |
保険等 |
要 2年 20,000円 |
| 維持費等 |
- |
| 間取り |
1DK(洋4.5、DK7.7) |
専有面積 |
30.96m² |
| 築年月 |
2003年2月(築22年9ヶ月)
|
階建 / 階 |
12階建 / 8階 |
| 建物構造 |
SRC |
総戸数 |
- |
| 主要採光面 |
南西 |
駐車場 |
近有 40,000円/月 |
| バイク置き場 |
- |
駐輪場 |
有 |
| 建物名・部屋番号 |
デュオ・スカーラ新宿Ⅱ |
ペット |
-
|
| アピールポイント |
セキュリティ面は、オートロック・TVインターホンなどを設置しているので安全面でも優れております。室内設備は洗面所独立・浴室乾燥機など充実した設備を備え付けています。共用部には宅配ボックスが備え付けられているため、非対面で荷物を受け取れます。徒歩4分の位置に駅がある物件です。暖かな陽射しが心地よい、明るい室内の物件となっています。こちらは12階建ての物件です。全居室にフローリングを使用しているので、掃除やお手入れが簡単です。この物件はお風呂に追い焚き機能が付いています。社会人になったからには、1DKでゆったりした一人暮らしの生活を。車をよく利用する方も安心、近隣に駐車場があります。 |
| リフォーム履歴 |
- |
| リノベーション履歴 |
- |
| 備考 |
賃貸保証等:加入要(初回保証料:総賃料の60% 年間保証料:1.3万円 口座振替手数料:月額330円)
管理形態/管理員の勤務形態:-/-
バルコニー:4.13m²
IT重説対応物件
室内設備は洗面所独立・浴室乾燥機など大変充実しております。専用ボックスがあるので、配達員と顔を合わせずに宅配便を受け取れます。セキュリティ面は、TVインターホン・オートロックなどを備え付けているので安心して暮らせます。2駅利用できる場所にあり、アクセスが便利です。この物件のお風呂は追い炊き機能がついています。なんと専有面積が30.96平米もございます。クローゼット付きの物件です。駐車スペースが近くにあるので、車での外出も楽々。犯罪を抑制する効果がある防犯カメラ付きの物件です。駅まで歩いてアクセスできる、徒歩4分の距離に立地する物件です。
|
| エネルギー消費性能 |
- |
| 断熱性能 |
- |
| 目安光熱費 |
- |
| バス・トイレ |
バス・トイレ別、浴室乾燥機、オートバス、追焚機能、洗面所独立、洗面所、温水洗浄便座、トイレ |
| キッチン |
オープンキッチン、システムキッチン、3口以上コンロ、ガスコンロ可、グリル |
| セキュリティー |
モニター付オートロック、オートロック、モニター付インターホン、ディンプルキー、ダブルロックドア、防犯カメラ |
| 収納 |
収納スペース、クローゼット |
| 設備・サービス |
室内洗濯機置場、洗濯機置場、全居室フローリング、フローリング、エアコン、冷房 |
| TV・通信 |
CATVインターネット、ケーブルTV、CS、BS端子 |
| その他 |
宅配BOX、バルコニー、駐輪場、エレベーター |
| 契約期間 |
2年 |
現況 |
空家 |
| 条件等 |
- |
入居可能時期 |
即時 |
| 更新料 |
新賃料 1ヶ月 |
物件番号 |
1117201715 |
| 情報公開日 |
2025年10月19日 |
次回更新予定日 |
2025年11月3日 |
| ケータイ用バーコード |
- スマートフォンでこの物件を見る
- スマートフォンからもこの物件をご覧になれます。
|
※「-」と表示されている項目については、情報提供会社にご確認ください。
| 周辺施設 |
ふらっと新宿 新宿スポーツセンター店 |
| 距離 |
1441m |
写真を見る |
| 周辺施設 |
ケンタッキーフライドチキン ヨークフーズ新宿富久店 |
| 距離 |
1180m |
写真を見る |
| 周辺施設 |
新宿区立富久さくら公園 |
| 距離 |
1230m |
写真を見る |
| 周辺施設 |
maruetsu(マルエツ) 新宿六丁目店 |
| 距離 |
474m |
写真を見る |
| 周辺施設 |
ニュータウンオオクボ |
| 距離 |
1436m |
写真を見る |
| 周辺施設 |
ローソンサテライト 新宿イーストサイドスクエア店 |
| 距離 |
636m |
写真を見る |
| 周辺施設 |
Olympic(オリンピック) 早稲田店 |
| 距離 |
1636m |
写真を見る |
| 周辺施設 |
どらっぐぱぱす 新宿イーストサイドスクエア店 |
| 距離 |
603m |
写真を見る |
ここから簡単にお問い合わせをすることができます。
(SSLでの暗号化での送信を希望されるお客さまは
こちら
よりお問い合わせください)
お問い合わせを行う前に
「個人情報の取り扱いについて」を必ずお読みください。
「個人情報の取り扱いについて」に同意いただいた場合は「上記にご同意の上 確認画面へ進む」のボタンをクリックしてください。
個人情報の取り扱いについて
皆さまが送付された個人情報はアットホーム(株)のサーバを経由し、お問い合わせ先の不動産会社にメールまたはFAXにて転送されるためアットホーム(株)にも保管されます。アットホーム(株)で保管された個人情報の取り扱いについては、【こちら】をご覧ください。
また、本画面でご記入いただいた個人情報は、お問い合わせ先の不動産会社でも保管します。 お問い合わせ先の不動産会社が保管する個人情報の取り扱いについては、不動産会社に直接お問い合わせください。
東京都知事免許(1)第107337号 |
|---|
- 交通:
- JR山手線/新宿駅 徒歩1分
- 東京都新宿区西新宿1丁目3-3 品川ステーションビル新宿5F
- TEL:
- 03-6258-0867
- 所属団体:
- (公社)東京都宅地建物取引業協会会員(公社)首都圏不動産公正取引協議会加盟
取引態様:仲介  - 00278932
|
- スマートフォンで
この不動産会社を見る

|
- 提携サイト等より掲載されている物件情報につきましては、不動産会社詳細情報にリンクされていないものがあります。
- 物件に関するお問合せは、物件詳細ページの「情報提供会社」に表示されている不動産会社へ直接お願いいたします。
- 間取図は、現況を優先させていただきます。
- 映像は物件の一部を撮影したものです。物件の契約にあたっての最終判断はご自身の判断に基づいて行ってください。
- 仲介手数料について

アットホームは物件情報の適正化に努めております。
内容に誤りがある場合にはこちらへご連絡ください。