東京都中央区日本橋箱崎町(水天宮前駅)の賃貸:物件詳細
交通 所在地 |
駅徒歩 |
賃料 管理費等 |
敷金/保証金 礼金 |
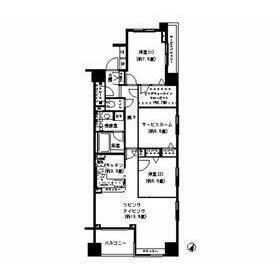
間取り 面積 |
物件種目 築年月 |
|
東京メトロ半蔵門線/水天宮前
東京都中央区日本橋箱崎町
|
3分
|
34.5万円
なし
|
1ヶ月 / なし
1ヶ月
|
2SLDK
80.04m²
|
賃貸マンション
2005年3月(築20年9ヶ月)
|
楽器相談、常時ゴミ出し可能、角部屋、高齢者相談、二人入居可、2面採光、IT重説対応物件、保証人不要
|
|
間取図
|
外観
落ち着いた雰囲気の外観です
|
<
その他の画像
>
|
| 交通 | 東京メトロ半蔵門線 水天宮前駅 徒歩3分 |
|---|
| その他の交通 | 東京メトロ日比谷線 人形町駅 徒歩9分 東京メトロ東西線 茅場町駅 徒歩11分 |
| 所在地 |
東京都中央区日本橋箱崎町
|
| 物件種目 |
賃貸マンション |
| 賃料 |
34.5万円 |
管理費等 |
なし |
| 敷金 / 保証金 |
1ヶ月 / なし |
礼金 |
1ヶ月 |
| 敷引 |
- |
保証金償却 |
- |
| その他一時金 |
室内清掃費用:149,674円、鍵交換代等:33,000円~ |
保険等 |
要 |
| 維持費等 |
口座振替事務手数料:110円/月 |
| 間取り |
2SLDK(LDK17.1、洋7、洋5、S5) |
専有面積 |
80.04m² |
| 築年月 |
2005年3月(築20年9ヶ月)
|
階建 / 階 |
地上11階地下1階建 / 5階 |
| 建物構造 |
RC |
総戸数 |
- |
| 主要採光面 |
南東 |
駐車場 |
近有 35,000円/月 |
| バイク置き場 |
- |
駐輪場 |
有 |
| 建物名・部屋番号 |
KDXレジデンス日本橋水天宮 |
ペット |
-
|
| アピールポイント |
セキュリティ面は、オートロック・TVインターホンなどを設置しているので安全面でも優れております。共用部には宅配ボックス・ゴミ出し24時間OKなどが備わっておりとても充実しています。室内設備は洗面所独立・浴室乾燥機など充実した設備を備え付けています。収納はクロゼット・シューズWIC・全居室収納など豊富なので、広々と空間を利用することも可能です。楽しく快適なお住まい、間取りが2SLDKで家族の仲が深まる。防犯対策がしっかりしてあるマンションなので日々安心して暮らせます。こちらは管理人が巡回するため、セキュリティレベルの高いマンションです。エアコン付きのマンションなので、快適に生活できます。このマンションは駐輪場付きの物件です。3口コンロが付いているので、3つの料理を同時に進められて時短につながります。システムキッチンは収納性に優れているため、キッチン回り物であふれるのを防げます。 |
| リフォーム履歴 |
- |
| リノベーション履歴 |
- |
| 備考 |
賃貸保証等:加入要(初回保証委託料(最低20,000円):月額賃料等の50%、 2年目以降:9,600円/年)
管理形態/管理員の勤務形態:-/巡回
バルコニー:8m²
IT重説対応物件、管理人巡回
セキュリティ面は、TVインターホン・オートロックなどを備え付けているので安心して暮らせます。収納はクロゼット・シューズWIC・全居室収納など豊富なので、衣類や履き物の整理がしやすく便利です。共用部にはゴミ出し24時間OK・宅配ボックスなどが揃っております。室内設備は洗面所独立・浴室乾燥機など大変充実しております。心地良いお部屋、リビングが広くて快適、間取り2SLDKのお家。調理を同時に進めることで忙しい朝でも短い時間で一気に料理ができる、3口コンロの物件です。必要なものは決断だけ。毎月34.5万円で至高の生活を手に入れましょう。コチラのバルコニーの広さは8㎡となっています。お湯を沸かし直せる追い焚き機能付きです。駐輪場付きのマンションです。専有面積80.04平米で、広々しております。
|
| エネルギー消費性能 |
- |
| 断熱性能 |
- |
| 目安光熱費 |
- |
| バス・トイレ |
バス・トイレ別、浴室乾燥機、オートバス、追焚機能、洗面所独立、洗面所、温水洗浄便座、トイレ |
| キッチン |
カウンターキッチン、システムキッチン、3口以上コンロ、ガスコンロ可、グリル |
| セキュリティー |
モニター付オートロック、オートロック、モニター付インターホン、ディンプルキー、ダブルロックドア、防犯カメラ |
| 収納 |
全居室収納、ウォークインクローゼット、収納スペース、シューズインクローゼット、クローゼット |
| 設備・サービス |
室内洗濯機置場、洗濯機置場、全居室フローリング、フローリング、都市ガス、エアコン、冷房 |
| TV・通信 |
インターネット対応、CS、BS端子 |
| その他 |
宅配BOX、二面バルコニー、バルコニー、駐輪場、エレベーター |
| 契約期間 |
2年 |
現況 |
居住中 |
| 条件等 |
定期借家 |
入居可能時期 |
2025年11月下旬予定 |
| 更新料 |
新賃料 1ヶ月 |
物件番号 |
1117617215 |
| 情報公開日 |
2025年11月1日 |
次回更新予定日 |
2025年11月15日 |
| ケータイ用バーコード |
- スマートフォンでこの物件を見る
- スマートフォンからもこの物件をご覧になれます。
|
※「-」と表示されている項目については、情報提供会社にご確認ください。
| 周辺施設 |
小鳩保育園永代 |
| 距離 |
1139m |
写真を見る |
| 周辺施設 |
スターバックスコーヒー 人形町店 |
| 距離 |
986m |
写真を見る |
| 周辺施設 |
まいばすけっと 日本橋蛎殻町店 |
| 距離 |
337m |
写真を見る |
| 周辺施設 |
ファミリーマート 日本橋かきがら町店 |
| 距離 |
241m |
写真を見る |
| 周辺施設 |
ホリベ薬局人形町店 |
| 距離 |
533m |
写真を見る |
| 周辺施設 |
キャンドゥ 深川店 |
| 距離 |
1458m |
写真を見る |
| 周辺施設 |
日本橋清洲クリニック |
| 距離 |
855m |
写真を見る |
ここから簡単にお問い合わせをすることができます。
(SSLでの暗号化での送信を希望されるお客さまは
こちら
よりお問い合わせください)
お問い合わせを行う前に
「個人情報の取り扱いについて」を必ずお読みください。
「個人情報の取り扱いについて」に同意いただいた場合は「上記にご同意の上 確認画面へ進む」のボタンをクリックしてください。
個人情報の取り扱いについて
皆さまが送付された個人情報はアットホーム(株)のサーバを経由し、お問い合わせ先の不動産会社にメールまたはFAXにて転送されるためアットホーム(株)にも保管されます。アットホーム(株)で保管された個人情報の取り扱いについては、【こちら】をご覧ください。
また、本画面でご記入いただいた個人情報は、お問い合わせ先の不動産会社でも保管します。 お問い合わせ先の不動産会社が保管する個人情報の取り扱いについては、不動産会社に直接お問い合わせください。
東京都知事免許(1)第107337号 |
|---|
- 交通:
- JR山手線/新橋駅 徒歩5分
- 東京都中央区銀座8丁目11-1 GINZA GS BLD.2 7階
- TEL:
- 03-6281-4770
- FAX:
- 03-6281-4771
- 所属団体:
- (公社)東京都宅地建物取引業協会会員(公社)首都圏不動産公正取引協議会加盟
取引態様:仲介  - 00271811
|
- スマートフォンで
この不動産会社を見る

|
- 提携サイト等より掲載されている物件情報につきましては、不動産会社詳細情報にリンクされていないものがあります。
- 物件に関するお問合せは、物件詳細ページの「情報提供会社」に表示されている不動産会社へ直接お願いいたします。
- 間取図は、現況を優先させていただきます。
- 映像は物件の一部を撮影したものです。物件の契約にあたっての最終判断はご自身の判断に基づいて行ってください。
- 仲介手数料について

アットホームは物件情報の適正化に努めております。
内容に誤りがある場合にはこちらへご連絡ください。