兵庫県神戸市東灘区住吉東町2丁目(住吉駅)の賃貸:物件詳細
交通 所在地 |
駅徒歩 |
賃料 管理費等 |
敷金/保証金 礼金 |
間取り 面積 |
物件種目 築年月 |
|
JR東海道本線/住吉
兵庫県神戸市東灘区住吉東町2丁目
|
6分
|
12万円
5,000円
|
なし / なし
1ヶ月
|
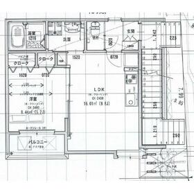
1LDK
35.24m²
|
賃貸アパート
2026年2月
|
角部屋、二人入居可、24時間換気システム、IT重説対応物件、保証人不要
|
|
間取図
|
外観
|
その他の画像
|
| 交通 | JR東海道本線 住吉駅 徒歩6分 |
|---|
| その他の交通 | 六甲アイランド線 住吉駅 徒歩6分 阪神本線 魚崎駅 徒歩10分 |
| 所在地 |
兵庫県神戸市東灘区住吉東町2丁目
|
| 物件種目 |
賃貸アパート |
| 賃料 |
12万円 |
管理費等 |
5,000円 |
| 敷金 / 保証金 |
なし / なし |
礼金 |
1ヶ月 |
| 敷引 |
- |
保証金償却 |
- |
| その他一時金 |
室内清掃費用:45,000円 |
保険等 |
要 2年 20,000円 |
| 維持費等 |
- |
クレジットカード決済 |
初期費用可 |
| 間取り |
1LDK(LDK9.8洋室5.2) |
専有面積 |
35.24m² |
| 築年月 |
2026年2月
|
階建 / 階 |
3階建 / 2階 |
| 建物構造 |
木造 |
総戸数 |
3戸 |
| 主要採光面 |
|
駐車場 |
近有 16,500円/月 |
| バイク置き場 |
- |
駐輪場 |
- |
| 建物名・部屋番号 |
|
ペット |
-
|
| アピールポイント |
当店は、阪急電鉄神戸本線岡本駅、JR東海道・山陽本線摂津本山駅、2WAYでアクセスも良好です(^^)神戸市はもちろん兵庫県全域・大阪府全域のお部屋もご紹介が可能なお店となっておりますので、場所を問わず幅広いご提案が可能です。ご内見の際は、現地集合やお問い合わせ物件の最寄り駅集合も可能です♪初めてのお引越しのお客様は不安も多いと思いますが、当店のスタッフがしっかりサポート致します。お部屋探しはホームメイトFC岡本にて♪
|
| リフォーム履歴 |
- |
| リノベーション履歴 |
- |
| 備考 |
管理形態/管理員の勤務形態:-/巡回
IT重説対応物件、管理人巡回
|
| エネルギー消費性能 |
- |
| 断熱性能 |
- |
| 目安光熱費 |
- |
| バス・トイレ |
バス・トイレ別、シャワー付洗面化粧台、洗面所独立、洗面台、シャワー、温水洗浄便座、トイレ |
| キッチン |
システムキッチン、2口コンロ、ガスコンロ付 |
| セキュリティー |
モニター付インターホン |
| 収納 |
収納スペース、クローゼット、シューズボックス |
| 設備・サービス |
室内洗濯機置場、都市ガス給湯、給湯、フローリング、都市ガス、エアコン |
| TV・通信 |
インターネット対応 |
| その他 |
バルコニー |
| 契約期間 |
2年 |
現況 |
未完成 |
| 条件等 |
- |
入居可能時期 |
指定有り2026年2月28日 |
| 更新料 |
- |
物件番号 |
1117644420 |
| 情報公開日 |
2025年12月25日 |
次回更新予定日 |
2026年1月8日 |
| ケータイ用バーコード |
- スマートフォンでこの物件を見る
- スマートフォンからもこの物件をご覧になれます。
|
※「-」と表示されている項目については、情報提供会社にご確認ください。
| 周辺施設 |
二木ゴルフ神戸東灘店 |
| 距離 |
1274m |
写真を見る |
| 周辺施設 |
御影クラッセ |
| 距離 |
1245m |
写真を見る |
| 周辺施設 |
いかりスーパーマーケット岡本店 |
| 距離 |
1067m |
写真を見る |
| 周辺施設 |
コープミニ魚崎 |
| 距離 |
908m |
写真を見る |
| 周辺施設 |
Maxvaluエクスプレス魚崎店 |
| 距離 |
1102m |
写真を見る |
| 周辺施設 |
ファミリーマート神戸住吉宮町二丁目店 |
| 距離 |
741m |
写真を見る |
| 周辺施設 |
セブンイレブン神戸田中町4丁目店 |
| 距離 |
734m |
写真を見る |
| 周辺施設 |
ロイヤルホスト東神戸店 |
| 距離 |
347m |
写真を見る |
ここから簡単にお問い合わせをすることができます。
(SSLでの暗号化での送信を希望されるお客さまは
こちら
よりお問い合わせください)
お問い合わせを行う前に
「個人情報の取り扱いについて」を必ずお読みください。
「個人情報の取り扱いについて」に同意いただいた場合は「上記にご同意の上 確認画面へ進む」のボタンをクリックしてください。
個人情報の取り扱いについて
皆さまが送付された個人情報はアットホーム(株)のサーバを経由し、お問い合わせ先の不動産会社にメールまたはFAXにて転送されるためアットホーム(株)にも保管されます。アットホーム(株)で保管された個人情報の取り扱いについては、【こちら】をご覧ください。
また、本画面でご記入いただいた個人情報は、お問い合わせ先の不動産会社でも保管します。 お問い合わせ先の不動産会社が保管する個人情報の取り扱いについては、不動産会社に直接お問い合わせください。
国土交通大臣免許(1)第10411号 |
|---|
- 交通:
- 阪急神戸線/岡本駅 徒歩3分
- 兵庫県神戸市東灘区岡本1丁目4-5 マナ岡本1F
- TEL:
- 078-412-3333
- FAX:
- 078-412-3334
- 所属団体:
- (一社)兵庫県宅地建物取引業協会会員(公社)近畿地区不動産公正取引協議会加盟
取引態様:仲介  - 50108649
|
- スマートフォンで
この不動産会社を見る

|
- 提携サイト等より掲載されている物件情報につきましては、不動産会社詳細情報にリンクされていないものがあります。
- 物件に関するお問合せは、物件詳細ページの「情報提供会社」に表示されている不動産会社へ直接お願いいたします。
- 間取図は、現況を優先させていただきます。
- 映像は物件の一部を撮影したものです。物件の契約にあたっての最終判断はご自身の判断に基づいて行ってください。
- 仲介手数料について

アットホームは物件情報の適正化に努めております。
内容に誤りがある場合にはこちらへご連絡ください。