愛知県名古屋市東区東桜2丁目(高岳駅)の賃貸:物件詳細
交通 所在地 |
駅徒歩 |
賃料 管理費等 |
敷金/保証金 礼金 |
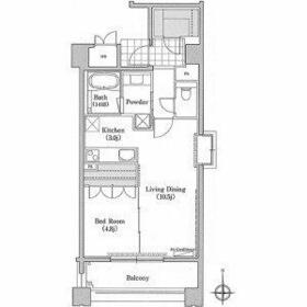
間取り 面積 |
物件種目 築年月 |
|
名古屋市桜通線/高岳
愛知県名古屋市東区東桜2丁目
|
3分
|
16万円
10,000円
|
1ヶ月 / なし
17万円
|
1LDK
51.96m²
|
賃貸マンション
2008年3月(築18年1ヶ月)
|
ペット相談、フロントサービス、最上階、南向き、高齢者相談、二人入居可、24時間換気システム、IT重説対応物件、保証人不要
|
|
間取図
|
外観
|
<
その他の画像
>
|
| 交通 | 名古屋市桜通線 高岳駅 徒歩3分 |
|---|
| その他の交通 | 名古屋市東山線 新栄町駅 徒歩8分 名古屋市名城線 久屋大通駅 徒歩9分 |
| 所在地 |
愛知県名古屋市東区東桜2丁目
|
| 物件種目 |
賃貸マンション |
| 賃料 |
16万円 |
管理費等 |
10,000円 |
| 敷金 / 保証金 |
1ヶ月 / なし |
礼金 |
17万円 |
| 敷引 |
- |
保証金償却 |
- |
| その他一時金 |
なし、鍵交換代等:38,500円~ |
保険等 |
要 2年 22,000円 |
| 維持費等 |
町内会費:300円/月、CATV:550円/月 |
| 間取り |
1LDK(LD10.5、K3、洋4.8) |
専有面積 |
51.96m² |
| 築年月 |
2008年3月(築18年1ヶ月)
|
階建 / 階 |
14階建 / 14階 |
| 建物構造 |
SRC |
総戸数 |
- |
| 主要採光面 |
南 |
駐車場 |
空無 |
| バイク置き場 |
- |
駐輪場 |
- |
| 建物名・部屋番号 |
LaSante東桜 |
ペット |
相談 |
| アピールポイント |
収納はウォークインクロゼット・シューズボックスなどが備え付けられているので、衣類や日用品の収納に重宝します。共用部には宅配ボックスが付いているため、自分の好きなタイミングで荷物を受け取ることができます。セキュリティ面は、オートロック・TVインターホンなど充実しているので安心して生活できます。室内設備は洗面化粧台・浴室乾燥機など豊富に揃っており、過ごしやすいお部屋になっております。お住まいにネットの回線を繋げましたので暮らしに役立ちます。この物件はCATV対応の為、簡単な契約で視聴可能です。こちらのお部屋の階数は14階です、いかがでしょうか。入居時からインターネット環境が整っているため、忙しい方でも工事の日程調整をすることなくすぐにインターネットを使うことができます。敷地内ごみ置き場があるのでゴミの持ち運びの負担を少しでも減らすことができます。住み心地にこだわるならリビングやダイニングのある1LDKはイチオシです。キッチンにIHクッキングヒーターが付いています。 |
| リフォーム履歴 |
- |
| リノベーション履歴 |
- |
| 備考 |
賃貸保証等:加入要(日本セーフティー株式会社)
管理形態/管理員の勤務形態:-/-
IT重説対応物件
短期解約違約金 退去時 1ヶ月 1年以内での退去、退去時RC代 退去時 120,000円
|
| エネルギー消費性能 |
- |
| 断熱性能 |
- |
| 目安光熱費 |
- |
| バス・トイレ |
バス・トイレ別、浴室乾燥機、追焚機能、洗面所独立、洗面所、シャワー、温水洗浄便座、タンクレストイレ、トイレ |
| キッチン |
システムキッチン、IHクッキングヒーター、2口コンロ |
| セキュリティー |
モニター付オートロック、オートロック、モニター付インターホン、防犯カメラ |
| 収納 |
ウォークインクローゼット、収納スペース、シューズインクローゼット、クローゼット、シューズボックス |
| 設備・サービス |
室内洗濯機置場、洗濯機置場、出窓、全居室フローリング、フローリング、都市ガス、エアコン |
| TV・通信 |
インターネット対応、インターネット使用料無料、ケーブルTV、CS、BS端子 |
| その他 |
宅配BOX、バルコニー、エレベーター |
| 契約期間 |
2年 |
現況 |
空家 |
| 条件等 |
- |
入居可能時期 |
即時 |
| 更新料 |
33,000円 |
物件番号 |
1117881212 |
| 情報公開日 |
2026年2月26日 |
次回更新予定日 |
2026年4月7日 |
| ケータイ用バーコード |
- スマートフォンでこの物件を見る
- スマートフォンからもこの物件をご覧になれます。
|
※「-」と表示されている項目については、情報提供会社にご確認ください。
| 周辺施設 |
AOI名古屋病院 |
| 距離 |
845m |
写真を見る |
| 周辺施設 |
名古屋高岳郵便局 |
| 距離 |
435m |
写真を見る |
ここから簡単にお問い合わせをすることができます。
(SSLでの暗号化での送信を希望されるお客さまは
こちら
よりお問い合わせください)
お問い合わせを行う前に
「個人情報の取り扱いについて」を必ずお読みください。
「個人情報の取り扱いについて」に同意いただいた場合は「上記にご同意の上 確認画面へ進む」のボタンをクリックしてください。
個人情報の取り扱いについて
皆さまが送付された個人情報はアットホーム(株)のサーバを経由し、お問い合わせ先の不動産会社にメールまたはFAXにて転送されるためアットホーム(株)にも保管されます。アットホーム(株)で保管された個人情報の取り扱いについては、【こちら】をご覧ください。
また、本画面でご記入いただいた個人情報は、お問い合わせ先の不動産会社でも保管します。 お問い合わせ先の不動産会社が保管する個人情報の取り扱いについては、不動産会社に直接お問い合わせください。
愛知県知事免許(1)第24681号 |
|---|
- 交通:
- 名古屋市東山線/今池駅 徒歩4分
- 愛知県名古屋市千種区今池5丁目5-4 第70プロスパービル1F
- TEL:
- 052-715-7175
- FAX:
- 052-715-7176
- 所属団体:
- (公社)愛知県宅地建物取引業協会会員東海不動産公正取引協議会加盟
取引態様:仲介  - 40409198
|
- スマートフォンで
この不動産会社を見る

|
- 提携サイト等より掲載されている物件情報につきましては、不動産会社詳細情報にリンクされていないものがあります。
- 物件に関するお問合せは、物件詳細ページの「情報提供会社」に表示されている不動産会社へ直接お願いいたします。
- 間取図は、現況を優先させていただきます。
- 映像は物件の一部を撮影したものです。物件の契約にあたっての最終判断はご自身の判断に基づいて行ってください。
- 仲介手数料について

アットホームは物件情報の適正化に努めております。
内容に誤りがある場合にはこちらへご連絡ください。