兵庫県尼崎市常松1丁目(甲東園駅)の賃貸:物件詳細
交通 所在地 |
駅徒歩 |
賃料 管理費等 |
敷金/保証金 礼金 |
間取り 面積 |
物件種目 築年月 |
|
阪急今津線/甲東園
兵庫県尼崎市常松1丁目
|
25分
|
6.3万円
5,000円
|
なし / なし
なし
|
1LDK
40.00m²
|
賃貸アパート
1996年11月(築29年7ヶ月)
|
ペット相談、デザイナーズ、角部屋、高齢者相談、二人入居可、閑静な住宅街、IT重説対応物件
|
|
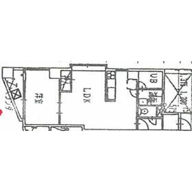
間取図
|
外観
落ち着いた雰囲気の外観です
|
<
その他の画像
>
|
|
|
| 交通 | 阪急今津線 甲東園駅 徒歩25分 |
|---|
| その他の交通 | 阪急今津線 門戸厄神駅 徒歩28分 阪急神戸線 武庫之荘駅 徒歩37分 |
| 所在地 |
兵庫県尼崎市常松1丁目
|
| 物件種目 |
賃貸アパート |
| 賃料 |
6.3万円 |
管理費等 |
5,000円 |
| 敷金 / 保証金 |
なし / なし |
礼金 |
なし |
| 敷引 |
- |
保証金償却 |
- |
| その他一時金 |
なし、鍵交換代等:16,500円~ |
保険等 |
要 2年 20,000円 |
| 維持費等 |
- |
クレジットカード決済 |
初期費用可 |
| 間取り |
1LDK |
専有面積 |
40.00m² |
| 築年月 |
1996年11月(築29年7ヶ月)
|
階建 / 階 |
4階建 / 2階 |
| 建物構造 |
RC |
総戸数 |
- |
| 主要採光面 |
|
駐車場 |
近有 15,000円/月 |
| バイク置き場 |
- |
駐輪場 |
有 |
| 建物名・部屋番号 |
MAISON KOUMU |
ペット |
相談 |
| アピールポイント |
収納はクロゼット・押入などが備え付けられているので、衣類や日用品の収納に重宝します。セキュリティ面は、オートロック・TVインターホンなど充実しているので安心して生活できます。朝の整髪が効率よくなる洗面化粧台が備え付けられています。インターネットが無料であるため、利用料を気にすることなくネットを使用できSNSで多くの人と連絡を取りたい方にもおすすめです。事前のお申し出をいただければ、ペットの飼育が可能かどうかご相談いただけます。生活費は半分、楽しさは二倍の二人入居可能物件。清潔な敷地内ごみ置き場も用意されております。角部屋の物件です。料理好きの方、楽しく料理がしたいならダイニングキッチン付の物件ですよ。今引っ越しをお考えの方におすすめなのが、こちらのアパートです。 |
| リフォーム履歴 |
- |
| リノベーション履歴 |
- |
| 備考 |
賃貸保証等:加入要(必須 初回保証料:総賃料の50%/更新料:10,000円(年)/月額引落手数料:550円)
管理形態/管理員の勤務形態:-/-
IT重説対応物件、外壁コンクリート
物件のお問い合わせはSumoSumoまで♪♪
SumoSumoのオススメ物件です♪室内を見て頂ければきっと気に入って頂けると思います♪♪
|
| エネルギー消費性能 |
- |
| 断熱性能 |
- |
| 目安光熱費 |
- |
| バス・トイレ |
バス・トイレ別、洗面所独立、洗面所、洗面台、シャワー、トイレ |
| キッチン |
カウンターキッチン、システムキッチン、独立型キッチン、ガスコンロ可 |
| セキュリティー |
モニター付オートロック、オートロック、モニター付インターホン、防犯カメラ |
| 収納 |
収納スペース、クローゼット |
| 設備・サービス |
室内洗濯機置場、洗濯機置場、都市ガス給湯、給湯、フローリング、都市ガス、エアコン |
| TV・通信 |
インターネット使用料無料、ケーブルTV、CS、BS端子 |
| その他 |
バルコニー、駐輪場 |
| 契約期間 |
2年 |
現況 |
空家 |
| 条件等 |
- |
入居可能時期 |
相談 |
| 更新料 |
- |
物件番号 |
1118211425 |
| 情報公開日 |
2026年3月30日 |
次回更新予定日 |
2026年5月26日 |
| ケータイ用バーコード |
- スマートフォンでこの物件を見る
- スマートフォンからもこの物件をご覧になれます。
|
※「-」と表示されている項目については、情報提供会社にご確認ください。
| 周辺施設 |
ファミリーマート 尼崎常松店 |
| 距離 |
369m |
写真を見る |
| 周辺施設 |
生活協同組合コープこうべ コープミニ西武庫 |
| 距離 |
380m |
写真を見る |
| 周辺施設 |
ローソン 尼崎常松店 |
| 距離 |
465m |
写真を見る |
| 周辺施設 |
西宮警察署甲武橋交番 |
| 距離 |
706m |
写真を見る |
| 周辺施設 |
尼崎時友郵便局 |
| 距離 |
697m |
写真を見る |
| 周辺施設 |
セブンイレブン 尼崎武庫の里2丁目店 |
| 距離 |
794m |
写真を見る |
ここから簡単にお問い合わせをすることができます。
(SSLでの暗号化での送信を希望されるお客さまは
こちら
よりお問い合わせください)
お問い合わせを行う前に
「個人情報の取り扱いについて」を必ずお読みください。
「個人情報の取り扱いについて」に同意いただいた場合は「上記にご同意の上 確認画面へ進む」のボタンをクリックしてください。
個人情報の取り扱いについて
皆さまが送付された個人情報はアットホーム(株)のサーバを経由し、お問い合わせ先の不動産会社にメールまたはFAXにて転送されるためアットホーム(株)にも保管されます。アットホーム(株)で保管された個人情報の取り扱いについては、【こちら】をご覧ください。
また、本画面でご記入いただいた個人情報は、お問い合わせ先の不動産会社でも保管します。 お問い合わせ先の不動産会社が保管する個人情報の取り扱いについては、不動産会社に直接お問い合わせください。
国土交通大臣免許(2)第9550号 |
|---|
- 交通:
- JR東海道本線/尼崎駅 徒歩3分
- 兵庫県尼崎市潮江1丁目7-1
- TEL:
- 06-4400-6315
- 所属団体:
- (公社)全日本不動産協会会員(公社)近畿地区不動産公正取引協議会加盟
取引態様:仲介  - 50102791
|
- スマートフォンで
この不動産会社を見る

|
- 提携サイト等より掲載されている物件情報につきましては、不動産会社詳細情報にリンクされていないものがあります。
- 物件に関するお問合せは、物件詳細ページの「情報提供会社」に表示されている不動産会社へ直接お願いいたします。
- 間取図は、現況を優先させていただきます。
- 映像は物件の一部を撮影したものです。物件の契約にあたっての最終判断はご自身の判断に基づいて行ってください。
- 仲介手数料について

アットホームは物件情報の適正化に努めております。
内容に誤りがある場合にはこちらへご連絡ください。