東京都新宿区西新宿7丁目(新宿駅)の賃貸:物件詳細
交通 所在地 |
駅徒歩 |
賃料 管理費等 |
敷金/保証金 礼金 |
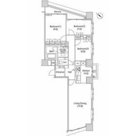
間取り 面積 |
物件種目 築年月 |
|
JR山手線/新宿
東京都新宿区西新宿7丁目
|
8分
|
47.5万円
25,000円
|
1ヶ月 / なし
1ヶ月
|
3LDK
86.75m²
|
賃貸マンション
2006年3月(築20年1ヶ月)
|
デザイナーズ、分譲タイプ、フロントサービス、常時ゴミ出し可能、角部屋、二人入居可、24時間セキュリティー、2面採光、24時間換気システム、保証人不要
|
|
間取図
|
外観
|
<
その他の画像
>
|
| 交通 | JR山手線 新宿駅 徒歩8分 |
|---|
| その他の交通 | JR総武線 大久保駅 徒歩6分 都営大江戸線 新宿西口駅 徒歩4分 |
| 所在地 |
東京都新宿区西新宿7丁目
|
| 物件種目 |
賃貸マンション |
| 賃料 |
47.5万円 |
管理費等 |
25,000円 |
| 敷金 / 保証金 |
1ヶ月 / なし |
礼金 |
1ヶ月 |
| 敷引 |
- |
保証金償却 |
- |
| その他一時金 |
なし |
保険等 |
要 2年 20,000円 |
| 維持費等 |
- |
| 間取り |
3LDK(LD14.9、洋8、洋6、洋5.5) |
専有面積 |
86.75m² |
| 築年月 |
2006年3月(築20年1ヶ月)
|
階建 / 階 |
地上32階地下2階建 / 31階 |
| 建物構造 |
RC |
総戸数 |
- |
| 主要採光面 |
南西 |
駐車場 |
- |
| バイク置き場 |
- |
駐輪場 |
- |
| 建物名・部屋番号 |
ファーストリアルタワー新宿 |
ペット |
-
|
| リフォーム履歴 |
- |
| リノベーション履歴 |
- |
| 備考 |
賃貸保証等:加入要(初回保証料40%~50%)
管理形態/管理員の勤務形態:-/-
二重床・二重天井
◆初期費用・web内見・入居日交渉等なんでもご相談ください◆
【お部屋探しはクレアスレント】★日常生活に便利なコンビニ・スーパーも近く生活環境良好★インターネットで紹介していない類似物件も多数ご案内!お客様の要望にお応えし、快適で素敵なお部屋をご紹介いたします!仕様・図面・写真等に相違があった場合は現況を優先します。
|
| エネルギー消費性能 |
- |
| 断熱性能 |
- |
| 目安光熱費 |
- |
| バス・トイレ |
バス・トイレ別、浴室乾燥機、オートバス、追焚機能、シャワー付洗面化粧台、洗面所独立、洗面所、洗面台、シャワー、温水洗浄便座、タンクレストイレ、トイレ |
| キッチン |
システムキッチン、3口以上コンロ、ガスコンロ可、グリル |
| セキュリティー |
モニター付オートロック、オートロック、モニター付インターホン、ダブルロックドア、防犯カメラ |
| 収納 |
収納スペース、トランクルーム、クローゼット、シューズボックス |
| 設備・サービス |
室内洗濯機置場、二重床、洗濯機置場、都市ガス給湯、給湯、フローリング、都市ガス、エアコン、人感センサー付照明 |
| TV・通信 |
インターネット対応、CS、BS端子 |
| その他 |
宅配BOX、エレベーター2基以上、コインランドリー、二面バルコニー、バルコニー、エレベーター |
| 契約期間 |
2年 |
現況 |
空家 |
| 条件等 |
- |
入居可能時期 |
相談 |
| 更新料 |
新賃料 1ヶ月 |
物件番号 |
1118292615 |
| 情報公開日 |
2026年3月15日 |
次回更新予定日 |
2026年3月29日 |
| ケータイ用バーコード |
- スマートフォンでこの物件を見る
- スマートフォンからもこの物件をご覧になれます。
|
※「-」と表示されている項目については、情報提供会社にご確認ください。
| 周辺施設 |
オリンピック 新宿百人町店 |
| 距離 |
253m |
写真を見る |
| 周辺施設 |
セブンイレブン 北新宿1丁目店 |
| 距離 |
252m |
写真を見る |
| 周辺施設 |
クスリの龍生堂薬局 北新宿店 |
| 距離 |
271m |
写真を見る |
| 周辺施設 |
まいばすけっと 北新宿1丁目店 |
| 距離 |
261m |
写真を見る |
| 周辺施設 |
なか卯 新宿職安通り店 |
| 距離 |
487m |
写真を見る |
| 周辺施設 |
セブンイレブン 新宿職安通り店 |
| 距離 |
510m |
写真を見る |
ここから簡単にお問い合わせをすることができます。
(SSLでの暗号化での送信を希望されるお客さまは
こちら
よりお問い合わせください)
お問い合わせを行う前に
「個人情報の取り扱いについて」を必ずお読みください。
「個人情報の取り扱いについて」に同意いただいた場合は「上記にご同意の上 確認画面へ進む」のボタンをクリックしてください。
個人情報の取り扱いについて
皆さまが送付された個人情報はアットホーム(株)のサーバを経由し、お問い合わせ先の不動産会社にメールまたはFAXにて転送されるためアットホーム(株)にも保管されます。アットホーム(株)で保管された個人情報の取り扱いについては、【こちら】をご覧ください。
また、本画面でご記入いただいた個人情報は、お問い合わせ先の不動産会社でも保管します。 お問い合わせ先の不動産会社が保管する個人情報の取り扱いについては、不動産会社に直接お問い合わせください。
国土交通大臣免許(1)第10473号 |
|---|
- 交通:
- JR山手線/新宿駅 徒歩3分
- 東京都新宿区西新宿1丁目22-1 スタンダードビル4F
- TEL:
- 03-6824-9402
- FAX:
- 03-3342-3400
取引態様:仲介  - 00100471
|
- スマートフォンで
この不動産会社を見る

|
- 提携サイト等より掲載されている物件情報につきましては、不動産会社詳細情報にリンクされていないものがあります。
- 物件に関するお問合せは、物件詳細ページの「情報提供会社」に表示されている不動産会社へ直接お願いいたします。
- 間取図は、現況を優先させていただきます。
- 映像は物件の一部を撮影したものです。物件の契約にあたっての最終判断はご自身の判断に基づいて行ってください。
- 仲介手数料について

アットホームは物件情報の適正化に努めております。
内容に誤りがある場合にはこちらへご連絡ください。