北海道札幌市北区北八条西1丁目(さっぽろ駅)の賃貸:物件詳細
交通 所在地 |
駅徒歩 |
賃料 管理費等 |
敷金/保証金 礼金 |
間取り 面積 |
物件種目 築年月 |
|
札幌市東豊線/さっぽろ
北海道札幌市北区北八条西1丁目
|
1分
|
28万円
20,000円
|
1ヶ月 / なし
1ヶ月
|
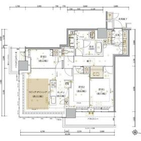
3LDK
87.21m²
|
賃貸マンション
2023年12月(築2年4ヶ月)
|
分譲タイプ、常時ゴミ出し可能、角部屋、高齢者相談、二人入居可、ロードヒーティング
|
|
間取図
|
外観
外観
|
<
その他の画像
>
|
| 交通 | 札幌市東豊線 さっぽろ駅 徒歩1分 |
|---|
| その他の交通 | JR函館本線 札幌駅 徒歩4分 札幌市南北線 さっぽろ駅 徒歩1分 |
| 所在地 |
北海道札幌市北区北八条西1丁目
|
| 物件種目 |
賃貸マンション |
| 賃料 |
28万円 |
管理費等 |
20,000円 |
| 敷金 / 保証金 |
1ヶ月 / なし |
礼金 |
1ヶ月 |
| 敷引 |
実費 |
保証金償却 |
- |
| その他一時金 |
クリーニング:77,000円、エアコン清掃費用:19,800円 |
保険等 |
不要 |
| 維持費等 |
24時間管理費:1,320円/月、インターネット使用料:1,430円/月 |
クレジットカード決済 |
初期費用可 |
| 間取り |
3LDK(LD13.5 K3.5 洋5 洋6 洋7) |
専有面積 |
87.21m² |
| 築年月 |
2023年12月(築2年4ヶ月)
|
階建 / 階 |
地上48階地下2階建 / 5階 |
| 建物構造 |
RC |
総戸数 |
- |
| 主要採光面 |
南東 |
駐車場 |
無 |
| バイク置き場 |
- |
駐輪場 |
有 |
| 建物名・部屋番号 |
ONE札幌ステーションタワー 511 |
ペット |
-
|
| リフォーム履歴 |
- |
| リノベーション履歴 |
- |
| 備考 |
賃貸保証等:加入要(株式会社エポスカード 実費)
管理形態/管理員の勤務形態:-/日勤
非喫煙者限定、管理人日勤
駐車場 区画毎サイズ料金異なる 24000円~38000円 バイク置場有 空要確認 コンシェルジュ.
|
| エネルギー消費性能 |
- |
| 断熱性能 |
- |
| 目安光熱費 |
- |
| バス・トイレ |
バス・トイレ別、浴室乾燥機、追焚機能、シャワー付洗面化粧台、洗面所独立、洗面台、温水洗浄便座、トイレ |
| キッチン |
アイランドキッチン、システムキッチン、食器洗浄乾燥機、ディスポーザー、IHクッキングヒーター、3口以上コンロ |
| セキュリティー |
オートロック、モニター付インターホン、防犯カメラ |
| 収納 |
ウォークインクローゼット、クローゼット、シューズボックス |
| 設備・サービス |
床暖房、室内洗濯機置場、都市ガス、エアコン、FF暖房、暖房、冷房、照明器具 |
| TV・通信 |
インターネット対応、光ファイバー、ケーブルTV、CS、BS端子 |
| その他 |
宅配BOX、エレベーター2基以上、二面バルコニー、バルコニー、駐輪場 |
| 契約期間 |
2年 |
現況 |
空家 |
| 条件等 |
- |
入居可能時期 |
即時 |
| 更新料 |
なし |
物件番号 |
1118317219 |
| 情報公開日 |
2026年3月4日 |
次回更新予定日 |
2026年4月1日 |
| ケータイ用バーコード |
- スマートフォンでこの物件を見る
- スマートフォンからもこの物件をご覧になれます。
|
※「-」と表示されている項目については、情報提供会社にご確認ください。
| 周辺施設 |
札幌市立北九条小学校 |
| 距離 |
296m |
写真を見る |
| 周辺施設 |
札幌市立中央中学校 |
| 距離 |
1143m |
写真を見る |
| 周辺施設 |
コープさっぽろ北12条店 |
| 距離 |
627m |
写真を見る |
| 周辺施設 |
さつきた8・1 |
| 距離 |
205m |
写真を見る |
| 周辺施設 |
ツルハドラッグ北10条西店 |
| 距離 |
479m |
写真を見る |
| 周辺施設 |
ビックカメラ札幌店 |
| 距離 |
807m |
写真を見る |
| 周辺施設 |
サイゼリヤ札幌駅北口店 |
| 距離 |
432m |
写真を見る |
ここから簡単にお問い合わせをすることができます。
(SSLでの暗号化での送信を希望されるお客さまは
こちら
よりお問い合わせください)
お問い合わせを行う前に
「個人情報の取り扱いについて」を必ずお読みください。
「個人情報の取り扱いについて」に同意いただいた場合は「上記にご同意の上 確認画面へ進む」のボタンをクリックしてください。
個人情報の取り扱いについて
皆さまが送付された個人情報はアットホーム(株)のサーバを経由し、お問い合わせ先の不動産会社にメールまたはFAXにて転送されるためアットホーム(株)にも保管されます。アットホーム(株)で保管された個人情報の取り扱いについては、【こちら】をご覧ください。
また、本画面でご記入いただいた個人情報は、お問い合わせ先の不動産会社でも保管します。 お問い合わせ先の不動産会社が保管する個人情報の取り扱いについては、不動産会社に直接お問い合わせください。
北海道知事免許 石狩(1)第9218号 |
|---|
- 交通:
- JR札沼線/桑園駅 徒歩8分
- 北海道札幌市中央区北五条西14丁目1番地50 鹿友ディアプラザ札幌1階
- TEL:
- 011-351-0597
- FAX:
- 011-351-5574
- 所属団体:
- (公社)北海道宅地建物取引業協会会員(一社)北海道不動産公正取引協議会加盟
取引態様:仲介  - 10006061
|
- スマートフォンで
この不動産会社を見る

|
- 提携サイト等より掲載されている物件情報につきましては、不動産会社詳細情報にリンクされていないものがあります。
- 物件に関するお問合せは、物件詳細ページの「情報提供会社」に表示されている不動産会社へ直接お願いいたします。
- 間取図は、現況を優先させていただきます。
- 映像は物件の一部を撮影したものです。物件の契約にあたっての最終判断はご自身の判断に基づいて行ってください。
- 仲介手数料について

アットホームは物件情報の適正化に努めております。
内容に誤りがある場合にはこちらへご連絡ください。