東京都文京区向丘2丁目(本駒込駅)の賃貸:物件詳細
交通 所在地 |
駅徒歩 |
賃料 管理費等 |
敷金/保証金 礼金 |
間取り 面積 |
物件種目 築年月 |
|
東京メトロ南北線/本駒込
東京都文京区向丘2丁目
|
2分
|
19.8万円
10,000円
|
1ヶ月 / なし
1ヶ月
|
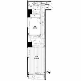
1LDK
54.69m²
|
賃貸マンション
1995年3月(築30年10ヶ月)
|
分譲タイプ、常時ゴミ出し可能、角部屋、二人入居可、2面採光、24時間換気システム、閑静な住宅街、外観タイル張り、IT重説対応物件、保証人不要
|
|
間取図
|
外観
|
<
その他の画像
>
|
| 交通 | 東京メトロ南北線 本駒込駅 徒歩2分 |
|---|
| その他の交通 | 都営三田線 白山駅 徒歩5分 東京メトロ南北線 東大前駅 徒歩9分 |
| 所在地 |
東京都文京区向丘2丁目
|
| 物件種目 |
賃貸マンション |
| 賃料 |
19.8万円 |
管理費等 |
10,000円 |
| 敷金 / 保証金 |
1ヶ月 / なし |
礼金 |
1ヶ月 |
| 敷引 |
- |
保証金償却 |
- |
| その他一時金 |
安心サポート:16,500円、鍵交換代等:22,000円~ |
保険等 |
要 2年 20,000円 |
| 維持費等 |
- |
クレジットカード決済 |
初期費用可 |
| 間取り |
1LDK(LDK16.6、洋6) |
専有面積 |
54.69m² |
| 築年月 |
1995年3月(築30年10ヶ月)
|
階建 / 階 |
13階建 / 2階 |
| 建物構造 |
SRC |
総戸数 |
- |
| 主要採光面 |
南西 |
駐車場 |
- |
| バイク置き場 |
- |
駐輪場 |
- |
| 建物名・部屋番号 |
ロイヤルグリーン本郷 |
ペット |
-
|
| リフォーム履歴 |
- |
| リノベーション履歴 |
- |
| 備考 |
賃貸保証等:加入要(初回保証料:月額総賃料の50% 以降1年毎に1万円 月額保証料:330円)
管理形態/管理員の勤務形態:-/-
バルコニー:2.87m²
IT重説対応物件
退去時室内クリーニング費は借主様負担となります。
共用部分の付随設備の詳細(空き状況・料金等)は要確認
ご入居される方のご内容によって保証会社等の契約条件に変動あり
借主様の瑕疵による汚れ・キズ等は別途ご負担いただきます。
|
| エネルギー消費性能 |
- |
| 断熱性能 |
- |
| 目安光熱費 |
- |
| バス・トイレ |
バス・トイレ別、シャワー付洗面化粧台、洗面所独立、洗面所、シャワー、温水洗浄便座、トイレ |
| キッチン |
システムキッチン、2口コンロ、ガスコンロ可、グリル |
| セキュリティー |
モニター付オートロック、オートロック、モニター付インターホン、防犯カメラ |
| 収納 |
収納スペース、クローゼット、シューズボックス |
| 設備・サービス |
室内洗濯機置場、洗濯機置場、都市ガス給湯、給湯、全居室フローリング、フローリング、都市ガス、エアコン、冷房、ダウンライト、間接照明、照明器具 |
| TV・通信 |
インターネット対応 |
| その他 |
宅配BOX、バルコニー、エレベーター |
| 契約期間 |
2年 |
現況 |
空家 |
| 条件等 |
- |
入居可能時期 |
即時 |
| 仲介手数料 |
1.1ヶ月 |
|
|
| 更新料 |
新賃料 1.5ヶ月 |
物件番号 |
1118342115 |
| 情報公開日 |
2025年9月23日 |
次回更新予定日 |
2025年12月20日 |
| ケータイ用バーコード |
- スマートフォンでこの物件を見る
- スマートフォンからもこの物件をご覧になれます。
|
※「-」と表示されている項目については、情報提供会社にご確認ください。
| 周辺施設 |
まいばすけっと 本駒込駅前店 |
| 距離 |
139m |
写真を見る |
| 周辺施設 |
ファミリーマート 向丘二丁目北店 |
| 距離 |
171m |
写真を見る |
| 周辺施設 |
薬 マツモトキヨシ 白山上店 |
| 距離 |
267m |
写真を見る |
| 周辺施設 |
キッチンオリジン 本駒込店 |
| 距離 |
283m |
写真を見る |
| 周辺施設 |
文京白山上郵便局 |
| 距離 |
325m |
写真を見る |
| 周辺施設 |
モスバーガー 千駄木店 |
| 距離 |
1069m |
写真を見る |
| 周辺施設 |
松屋 白山店 |
| 距離 |
207m |
写真を見る |
| 周辺施設 |
千駄木喫茶ギャリコ |
| 距離 |
513m |
写真を見る |
ここから簡単にお問い合わせをすることができます。
(SSLでの暗号化での送信を希望されるお客さまは
こちら
よりお問い合わせください)
お問い合わせを行う前に
「個人情報の取り扱いについて」を必ずお読みください。
「個人情報の取り扱いについて」に同意いただいた場合は「上記にご同意の上 確認画面へ進む」のボタンをクリックしてください。
個人情報の取り扱いについて
皆さまが送付された個人情報はアットホーム(株)のサーバを経由し、お問い合わせ先の不動産会社にメールまたはFAXにて転送されるためアットホーム(株)にも保管されます。アットホーム(株)で保管された個人情報の取り扱いについては、【こちら】をご覧ください。
また、本画面でご記入いただいた個人情報は、お問い合わせ先の不動産会社でも保管します。 お問い合わせ先の不動産会社が保管する個人情報の取り扱いについては、不動産会社に直接お問い合わせください。
東京都知事免許(4)第88642号 |
|---|
- 交通:
- JR山手線/御徒町駅 徒歩2分
- 東京都台東区上野6丁目5-1 羽山ビル2F
- TEL:
- 03-5818-8387
- FAX:
- 03-5818-8386
- 所属団体:
- (公社)全日本不動産協会会員(公社)首都圏不動産公正取引協議会加盟
取引態様:仲介  - 00018394
|
- スマートフォンで
この不動産会社を見る

|
- 提携サイト等より掲載されている物件情報につきましては、不動産会社詳細情報にリンクされていないものがあります。
- 物件に関するお問合せは、物件詳細ページの「情報提供会社」に表示されている不動産会社へ直接お願いいたします。
- 間取図は、現況を優先させていただきます。
- 映像は物件の一部を撮影したものです。物件の契約にあたっての最終判断はご自身の判断に基づいて行ってください。
- 仲介手数料について

アットホームは物件情報の適正化に努めております。
内容に誤りがある場合にはこちらへご連絡ください。