東京都杉並区高円寺南1丁目(中野駅)の賃貸:物件詳細
交通 所在地 |
駅徒歩 |
賃料 管理費等 |
敷金/保証金 礼金 |
間取り 面積 |
物件種目 築年月 |
JR中央線/中野
東京都杉並区高円寺南1丁目
|
13分
|
14.4万円
15,000円
|
1ヶ月 / なし
1ヶ月
|
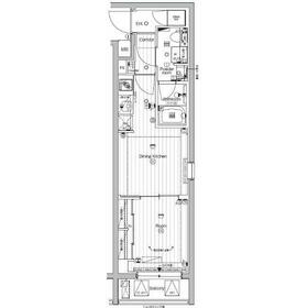
1DK
29.84m²
|
賃貸マンション
2022年5月(築3年6ヶ月)
|
ペット相談、デザイナーズ、常時ゴミ出し可能、角部屋、最上階、南向き、高齢者相談、二人入居可、24時間換気システム、外観タイル張り、IT重説対応物件、保証人不要
|
間取図
|
外観
外観も気になるポイント
|
<
その他の画像
>
|
交通 | JR中央線 中野駅 徒歩13分 |
---|
その他の交通 | 東京メトロ丸ノ内線 東高円寺駅 徒歩4分 JR総武線 高円寺駅 徒歩15分 |
所在地 |
東京都杉並区高円寺南1丁目
|
物件種目 |
賃貸マンション |
賃料 |
14.4万円 |
管理費等 |
15,000円 |
敷金 / 保証金 |
1ヶ月 / なし |
礼金 |
1ヶ月 |
敷引 |
1ヶ月 |
保証金償却 |
- |
その他一時金 |
入居中サポート:21,450円、抗菌代:17,600円、事務手数料:11,000円、鍵交換代等:22,000円~ |
保険等 |
要 2年 23,000円 |
維持費等 |
- |
間取り |
1DK(洋4.3) |
専有面積 |
29.84m² |
築年月 |
2022年5月(築3年6ヶ月)
|
階建 / 階 |
地上4階地下1階建 / 4階 |
建物構造 |
RC |
総戸数 |
- |
主要採光面 |
南 |
駐車場 |
近有 35,000円/月 |
バイク置き場 |
- |
駐輪場 |
有 |
建物名・部屋番号 |
PREMIUM CUBE 東高円寺 |
ペット |
相談 |
アピールポイント |
共用部には敷地内ごみ置き場・エレベータなどが揃っております。室内設備はBS・CS・照明付き・追い焚きなどが揃っており、とても充実しています。ネットの回線をマンションに繋げています、パソコン使用可。二口コンロが付いている物件です。犯罪を抑制する効果がある防犯カメラ付きの物件です。水回りにもこだわりたい方には1DKで快適に生活を送りましょう。指定期日は2025年11月となっておりますのでご連絡はお急ぎくださいね。設備条件が充実した月々14.4万円台のお部屋です。毎日スマートフォンで長時間SNSを利用するという方、インターネット無料なのでデータ通信量を気にすることなくインターネットをご利用いただけます。 |
リフォーム履歴 |
- |
リノベーション履歴 |
- |
備考 |
賃貸保証等:加入要(保証会社必須/~50%)
管理形態/管理員の勤務形態:-/-
IT重説対応物件
収納はクロゼット・トランクルームなどが備え付けられているので、衣類や日用品の収納に重宝します。室内設備は浴室乾燥機・洗面化粧台などが揃っているので、快適に過ごしやすいお部屋になります。セキュリティ面は、TVインターホン・オートロックなどを設置しているので安全面でも優れております。共用部には宅配ボックス・ゴミ出し24時間OKなどが揃っております。BS・CSに加入することができます。駅まで徒歩13分の物件です。忙しい朝に遠くまでゴミ捨てに行かずに済むように、共用部にゴミ置き場を備え付けております。インターネット無料なので、在宅のオンライン授業やリモート業務があるなど学校生活や仕事上でインターネットが必要不可欠な方におすすめです。システムキッチンはコンロや作業台が一体化しているので段差がなく、掃除がとても楽になります。近くの駐車場を利用すると暗い夜道を歩かなくても大丈夫です。2口コンロが付いているので、2つの料理を同時に進められて時短につながります。
|
エネルギー消費性能 |
- |
断熱性能 |
- |
目安光熱費 |
- |
バス・トイレ |
バス・トイレ別、浴室乾燥機、オートバス、追焚機能、温水洗浄便座、トイレ |
キッチン |
システムキッチン、2口コンロ、ガスコンロ可 |
セキュリティー |
モニター付オートロック、オートロック、モニター付インターホン、ディンプルキー、ダブルロックドア、防犯カメラ |
収納 |
収納スペース、トランクルーム、クローゼット |
設備・サービス |
室内洗濯機置場、洗濯機置場、全居室フローリング、フローリング、都市ガス、エアコン、冷房、照明器具 |
TV・通信 |
インターネット対応、インターネット使用料無料、CATVインターネット、ケーブルTV、CS、BS端子 |
その他 |
宅配BOX、バルコニー、駐輪場、エレベーター |
契約期間 |
2年 |
現況 |
居住中 |
条件等 |
- |
入居可能時期 |
2025年11月中旬予定 |
更新料 |
新賃料 1.5ヶ月 |
物件番号 |
1118408315 |
情報公開日 |
2025年10月15日 |
次回更新予定日 |
2025年10月29日 |
ケータイ用バーコード |
- スマートフォンでこの物件を見る
- スマートフォンからもこの物件をご覧になれます。
|
※「-」と表示されている項目については、情報提供会社にご確認ください。
周辺施設 |
miniピアゴ中野中央5丁目店 |
距離 |
1118m |
写真を見る |
周辺施設 |
まいばすけっと 新中野駅前店 |
距離 |
1193m |
写真を見る |
周辺施設 |
マルエツ プチ 大和町店 |
距離 |
1429m |
写真を見る |
周辺施設 |
セブンイレブン 中野本町4丁目店 |
距離 |
1218m |
写真を見る |
周辺施設 |
中央鈴薬局 |
距離 |
1126m |
写真を見る |
周辺施設 |
【仮庁舎】中野警察署 |
距離 |
1283m |
写真を見る |
ここから簡単にお問い合わせをすることができます。
(SSLでの暗号化での送信を希望されるお客さまは
こちら
よりお問い合わせください)
お問い合わせを行う前に
「個人情報の取り扱いについて」を必ずお読みください。
「個人情報の取り扱いについて」に同意いただいた場合は「上記にご同意の上 確認画面へ進む」のボタンをクリックしてください。
個人情報の取り扱いについて
皆さまが送付された個人情報はアットホーム(株)のサーバを経由し、お問い合わせ先の不動産会社にメールまたはFAXにて転送されるためアットホーム(株)にも保管されます。アットホーム(株)で保管された個人情報の取り扱いについては、【こちら】をご覧ください。
また、本画面でご記入いただいた個人情報は、お問い合わせ先の不動産会社でも保管します。 お問い合わせ先の不動産会社が保管する個人情報の取り扱いについては、不動産会社に直接お問い合わせください。
東京都知事免許(1)第107337号 |
---|
- 交通:
- JR山手線/新宿駅 徒歩1分
- 東京都新宿区西新宿1丁目3-3 品川ステーションビル新宿5F
- TEL:
- 03-6258-0867
- 所属団体:
- (公社)東京都宅地建物取引業協会会員(公社)首都圏不動産公正取引協議会加盟
取引態様:仲介  - 00278932
|
- スマートフォンで
この不動産会社を見る

|
- 提携サイト等より掲載されている物件情報につきましては、不動産会社詳細情報にリンクされていないものがあります。
- 物件に関するお問合せは、物件詳細ページの「情報提供会社」に表示されている不動産会社へ直接お願いいたします。
- 間取図は、現況を優先させていただきます。
- 映像は物件の一部を撮影したものです。物件の契約にあたっての最終判断はご自身の判断に基づいて行ってください。
- 仲介手数料について

アットホームは物件情報の適正化に努めております。
内容に誤りがある場合にはこちらへご連絡ください。