不動産 賃貸 マンション等の住宅情報:埼玉住まい情報


千葉県市川市新浜1丁目(行徳駅)の賃貸:物件詳細

  • 物件詳細
  • 情報の見方
  • 印刷用画面
交通
所在地
駅徒歩 賃料
管理費等
敷金/保証金
礼金
間取り
面積
物件種目
築年月

東京メトロ東西線/行徳 新着

千葉県市川市新浜1丁目

10分

10万円

8,000円

1ヶ月 / なし

なし

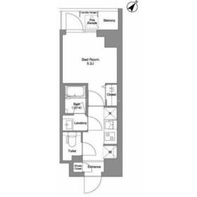
1K

20.28m²

賃貸マンション

2026年2月
新築 

おすすめPOINT常時ゴミ出し可能、IT重説対応物件、保証人不要

おすすめコメント  スタッフ: 八重田社員

当店HPにアップしきれなかった未公開物件写真も掲載中ですのでご覧ください。ネット上の気になる物件も全て当店にお持ち頂ければまとめてご案内可能です。初期費用等ご相談下さい【契約金のクレジット決済可】

間取図

間取図

外観

外観

<
その他の画像
  • エントランス
  • 共有部分
  • その他
  • 外観
  • その他
  • 駐車場
  • 外観
  • 外観
  • 外観
  • 外観
  • 外観
  • 外観
  • 外観
  • 外観
  • 外観
  • 外観
  • 外観
  • コンビニ
  • ショッピング施設
  • 小学校
  • 病院
  • 公園
  • その他
  • その他
  • ショッピング施設
>
    • とりあえず保存
    • お問い合わせ
    交通

    東京メトロ東西線 行徳駅 徒歩10分

    その他の交通

    JR京葉線 市川塩浜駅 徒歩20分

    東京メトロ東西線 妙典駅 徒歩25分

    所在地 千葉県市川市新浜1丁目
    物件種目 賃貸マンション
    賃料 10万円 管理費等 8,000円
    敷金 / 保証金 1ヶ月 / なし 礼金 なし
    敷引 保証金償却
    その他一時金 なし 保険等
    維持費等 クレジットカード決済 初期費用可
    間取り 1K(洋室5.2帖 K2.0帖) 専有面積 20.28m²
    築年月 2026年2月 新築  階建 / 階 7階建 / 1階
    建物構造 RC 総戸数 87戸
    主要採光面 北西 駐車場 有 16,500円/月
    バイク置き場 有 3,300円/月 駐輪場
    建物名・部屋番号 110 ペット
    アピールポイント 当社は賃貸物件数、賃貸情報量、来店客数、千葉県トップクラスの実績を持っております。ご提案できる物件情報を最新のラインナップでお待ちしております。ご提案、内見手配、ご契約まで女性専任スタッフによる安心安全のお部屋探しも実施しております。お気軽にご相談くださいませ。船橋市、市川市周辺でお部屋探しのお客様、当社のネットワークで様々なニーズにお応えいたします。デザイナーズ、ペット相談、新築、バイク、分譲賃貸、フリーレント物件、仲介手数料不要などのキャンペーン物件を取り揃えてます。スタッフが本気でサポート致しますので、ご満足いただける事をお約束いたします。ネットで出ていないお勧め物件もありますので、まずはお気軽にお電話・お問い合わせ下さい。
    リフォーム履歴
    リノベーション履歴
    備考
    賃貸保証等:加入要(初回総賃料の50% 毎月1%)
    管理形態/管理員の勤務形態:-/-
    IT重説対応物件
    火災保険:16550円/2年。退去時清掃費用:室内38500円、エアコン11000円。駐車場:13200円~16500円/月。バイク置場:3300円/月。1年未満の解約は総賃料1ヶ月分の違約金あり。
    エネルギー消費性能
    断熱性能
    目安光熱費
    バス・トイレ バス・トイレ別、浴室乾燥機、シャワー付洗面化粧台、洗面所独立、温水洗浄便座
    キッチン システムキッチン、2口コンロ、ガスコンロ付、ガスコンロ可
    セキュリティー モニター付オートロック、オートロック、モニター付インターホン、ディンプルキー
    収納 収納スペース、クローゼット、シューズボックス
    設備・サービス 室内洗濯機置場、フローリング、都市ガス、エアコン、照明器具
    TV・通信 インターネット対応、インターネット使用料無料、CS、BS端子
    その他 宅配BOX、バイク置き場、バルコニー、駐輪場、エレベーター
    契約期間 2年 現況 完成済
    条件等 入居可能時期 即時
    更新料 新賃料 1ヶ月 物件番号 1118592023
    情報公開日 2026年3月20日 次回更新予定日 2026年4月4日
    ケータイ用バーコード

    QRコード

    スマートフォンでこの物件を見る
    スマートフォンからもこの物件をご覧になれます。
    ※「-」と表示されている項目については、情報提供会社にご確認ください。

    この物件の周辺情報

    周辺施設 ファミリーマート市川湊新田2丁目店
    距離 1000m
    周辺施設 ワイズディスカ末広店
    距離 610m
    周辺施設 市川市立南新浜小学校
    距離 560m
    周辺施設 行徳総合病院
    距離 1340m
    周辺施設 南行徳公園
    距離 2310m
    周辺施設 行徳駅(東京メトロ 東西線)
    距離 830m
    周辺施設 東京外環自動車道市川南IC
    距離 3130m
    周辺施設 アコレ湊新田2丁目店
    距離 950m

    クイックお問い合わせ

    ここから簡単にお問い合わせをすることができます。
    (SSLでの暗号化での送信を希望されるお客さまは こちら よりお問い合わせください)

    お問い合わせ内容(必須)
    お名前(必須) 姓  名 
    メールアドレス(必須)
    ※携帯電話のメールアドレスをご入力される方はこちらをご確認ください
    電話番号(必須)
    - -

    ※入力いただいた電話番号へSMSまたは音声でパスワードをご連絡します。

    携帯電話の番号をご入力の方へ

    携帯電話の番号をご入力の方へ
    確認画面にて送信ボタンをクリックするとSMSが携帯電話に届きます。
    そのSMSに記載のパスワード(認証番号)を入力し、お問い合わせを完了してください。
    尚、SMSの送信者番号は 0005 202 760 となります。
    これはアットホームの固定番号です。

    備考欄 希望条件、物件案内希望日、質問などがございましたらご記入ください。
    お問い合わせを行う前に「個人情報の取り扱いについて」を必ずお読みください。
    「個人情報の取り扱いについて」に同意いただいた場合は「上記にご同意の上 確認画面へ進む」のボタンをクリックしてください。

    個人情報の取り扱いについて

    皆さまが送付された個人情報はアットホーム(株)のサーバを経由し、お問い合わせ先の不動産会社にメールまたはFAXにて転送されるためアットホーム(株)にも保管されます。アットホーム(株)で保管された個人情報の取り扱いについては、【こちら】をご覧ください。
    また、本画面でご記入いただいた個人情報は、お問い合わせ先の不動産会社でも保管します。 お問い合わせ先の不動産会社が保管する個人情報の取り扱いについては、不動産会社に直接お問い合わせください。

    情報提供会社

    情報提供会社

    (株)ハウスパートナー 本八幡店

    国土交通大臣免許(5)第6943号

    交通:
    JR総武線/本八幡駅 徒歩2分
    千葉県市川市南八幡4丁目6-4 YMK本八幡 地下1階
    TEL:
    047-378-1000
    FAX:
    047-378-5000
    所属団体:
    (公社)全日本不動産協会会員
    (公社)首都圏不動産公正取引協議会加盟

    取引態様:仲介

    • 会社情報
    • 00275934
    スマートフォンで
    この不動産会社を見る
    QRコード
    • とりあえず保存
    • お問い合わせ
    • 提携サイト等より掲載されている物件情報につきましては、不動産会社詳細情報にリンクされていないものがあります。
    • 物件に関するお問合せは、物件詳細ページの「情報提供会社」に表示されている不動産会社へ直接お願いいたします。
    • 間取図は、現況を優先させていただきます。
    • 映像は物件の一部を撮影したものです。物件の契約にあたっての最終判断はご自身の判断に基づいて行ってください。
    • 仲介手数料について仲介手数料

    アットホームは物件情報の適正化に努めております。 内容に誤りがある場合にはこちらへご連絡ください。

    【埼玉住まい情報】では、日本全国の物件から賃貸マンションや賃貸アパート・賃貸一戸建て等の賃貸住宅情報、新築マンション・分譲マンションや中古マンション等の売買マンション情報、新築一戸建てや中古一戸建てなどの戸建住宅、 土地など、総合的な不動産住宅情報検索サービスを提供致します。
    【埼玉住まい情報】から、選りすぐりの不動産物件を探してみましょう。

    【免責事項】
    このコーナーの運営はアットホーム株式会社(https://www.athome.co.jp/)が行っています。
    このコーナーに掲載している物件情報は、「アットホーム不動産情報ネットワーク」に加盟する不動産会社等(情報提供元)から提供されています。信頼性の高い情報提供が行えるよう、最大限の努力をしておりますが、その内容を保証するものではありません。 利用者のみなさまと各情報提供元との取引に起因する損害および情報が掲載されたことに起因する損害等については、株式会社イーシティ埼玉、およびアットホームは一切責任を負いません。
    各物件情報の内容や画像等はすべて現況を優先させていただきます。
    お取引等(お取引の準備、資金調達等を含みます)の際には、内容や契約条件等について、各情報提供元より十分な説明を受け、ご自身でご確認の上、判断してください。
    このコーナーへの物件情報のご掲載、その他不動産業務ソリューション等についての不動産会社様のお問合せはこちらからお願いいたします。

    物件画像: