東京都台東区北上野2丁目(上野駅)の賃貸:物件詳細
交通 所在地 |
駅徒歩 |
賃料 管理費等 |
敷金/保証金 礼金 |
間取り 面積 |
物件種目 築年月 |
JR山手線/上野
東京都台東区北上野2丁目
|
8分
|
14.5万円
なし
|
1ヶ月 / なし
1ヶ月
|
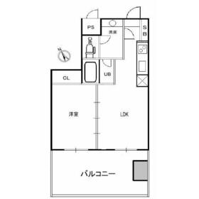
1LDK
34.65m²
|
賃貸マンション
1994年1月(築31年10ヶ月)
|
二人入居可、SOHO向き、IT重説対応物件、保証人不要
|
間取図
|
外観
|
その他の画像
|
交通 | JR山手線 上野駅 徒歩8分 |
---|
その他の交通 | 東京メトロ日比谷線 入谷駅 徒歩6分 東京メトロ銀座線 稲荷町駅 徒歩7分 |
所在地 |
東京都台東区北上野2丁目
|
物件種目 |
賃貸マンション |
賃料 |
14.5万円 |
管理費等 |
なし |
敷金 / 保証金 |
1ヶ月 / なし |
礼金 |
1ヶ月 |
敷引 |
- |
保証金償却 |
- |
その他一時金 |
なし、鍵交換代等:27,500円~ |
保険等 |
要 2年 24,000円 |
維持費等 |
- |
クレジットカード決済 |
初期費用可 |
間取り |
1LDK(LDK8、洋6) |
専有面積 |
34.65m² |
築年月 |
1994年1月(築31年10ヶ月)
|
階建 / 階 |
地上9階地下1階建 / 8階 |
建物構造 |
SRC |
総戸数 |
- |
主要採光面 |
南西 |
駐車場 |
- |
バイク置き場 |
- |
駐輪場 |
- |
建物名・部屋番号 |
上野TAビル 802 |
ペット |
-
|
リフォーム履歴 |
- |
リノベーション履歴 |
- |
備考 |
賃貸保証等:加入要(初回保証料:月額賃料等の40%(保証人なし)、月額賃料等の30%(保証人あり) 次年度以降保証料:10000円/年 口座引落手数料:330円/月)
管理形態/管理員の勤務形態:-/-
IT重説対応物件
退去時室内クリーニング費は借主様負担となります。
解約予告:2ヶ月前
定期借家契約2年:再契約料は新賃料の1ヶ月分
SOHO利用相談可:法人登記不可、その他詳細規定あり
共用部分の付随設備の詳細(空き状況・料金等)は要確認
ご入居される方のご内容によって保証会社等の契約条件に変動あり
借主様の瑕疵による汚れ・キズ等は別途ご負担いただきます。
|
エネルギー消費性能 |
- |
断熱性能 |
- |
目安光熱費 |
- |
バス・トイレ |
バス・トイレ別、追焚機能、洗面所独立、洗面所、シャワー、温水洗浄便座、トイレ |
キッチン |
システムキッチン |
セキュリティー |
モニター付オートロック、オートロック、モニター付インターホン |
収納 |
収納スペース、クローゼット、シューズボックス |
設備・サービス |
室内洗濯機置場、洗濯機置場、都市ガス給湯、給湯、全居室フローリング、フローリング、都市ガス、エアコン、冷房 |
TV・通信 |
インターネット対応 |
その他 |
バルコニー、エレベーター |
契約期間 |
2年 |
現況 |
空家 |
条件等 |
定期借家 |
入居可能時期 |
即時 |
仲介手数料 |
不要 |
|
|
更新料 |
- |
物件番号 |
1119443615 |
情報公開日 |
2025年9月25日 |
次回更新予定日 |
2025年10月24日 |
ケータイ用バーコード |
- スマートフォンでこの物件を見る
- スマートフォンからもこの物件をご覧になれます。
|
※「-」と表示されている項目については、情報提供会社にご確認ください。
周辺施設 |
まいばすけっと 北上野2丁目店 |
距離 |
168m |
写真を見る |
周辺施設 |
セブンイレブン 台東北上野1丁目店 |
距離 |
236m |
写真を見る |
周辺施設 |
ウエルシア台東入谷調剤薬局 |
距離 |
487m |
写真を見る |
周辺施設 |
エニタイムフィットネス上野店 |
距離 |
4m |
写真を見る |
周辺施設 |
東上野六郵便局 |
距離 |
218m |
写真を見る |
周辺施設 |
オリジン弁当 入谷店 |
距離 |
483m |
写真を見る |
周辺施設 |
上野学園大学図書館 |
距離 |
168m |
写真を見る |
周辺施設 |
マルエツ 東上野店 |
距離 |
307m |
写真を見る |
ここから簡単にお問い合わせをすることができます。
(SSLでの暗号化での送信を希望されるお客さまは
こちら
よりお問い合わせください)
お問い合わせを行う前に
「個人情報の取り扱いについて」を必ずお読みください。
「個人情報の取り扱いについて」に同意いただいた場合は「上記にご同意の上 確認画面へ進む」のボタンをクリックしてください。
個人情報の取り扱いについて
皆さまが送付された個人情報はアットホーム(株)のサーバを経由し、お問い合わせ先の不動産会社にメールまたはFAXにて転送されるためアットホーム(株)にも保管されます。アットホーム(株)で保管された個人情報の取り扱いについては、【こちら】をご覧ください。
また、本画面でご記入いただいた個人情報は、お問い合わせ先の不動産会社でも保管します。 お問い合わせ先の不動産会社が保管する個人情報の取り扱いについては、不動産会社に直接お問い合わせください。
東京都知事免許(4)第88642号 |
---|
- 交通:
- JR山手線/御徒町駅 徒歩2分
- 東京都台東区上野6丁目5-1 羽山ビル2F
- TEL:
- 03-5818-8387
- FAX:
- 03-5818-8386
- 所属団体:
- (公社)全日本不動産協会会員(公社)首都圏不動産公正取引協議会加盟
取引態様:仲介  - 00018394
|
- スマートフォンで
この不動産会社を見る

|
- 提携サイト等より掲載されている物件情報につきましては、不動産会社詳細情報にリンクされていないものがあります。
- 物件に関するお問合せは、物件詳細ページの「情報提供会社」に表示されている不動産会社へ直接お願いいたします。
- 間取図は、現況を優先させていただきます。
- 映像は物件の一部を撮影したものです。物件の契約にあたっての最終判断はご自身の判断に基づいて行ってください。
- 仲介手数料について

アットホームは物件情報の適正化に努めております。
内容に誤りがある場合にはこちらへご連絡ください。