東京都千代田区神田神保町1丁目(神保町駅)の賃貸:物件詳細
交通 所在地 |
駅徒歩 |
賃料 管理費等 |
敷金/保証金 礼金 |
間取り 面積 |
物件種目 築年月 |
|
東京メトロ半蔵門線/神保町
東京都千代田区神田神保町1丁目
|
5分
|
13.3万円
10,000円
|
1ヶ月 / なし
1ヶ月
|
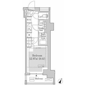
1K
27.39m²
|
賃貸マンション
2020年11月(築5年4ヶ月)
|
ペット相談、楽器相談、分譲タイプ、常時ゴミ出し可能、24時間セキュリティー、24時間換気システム、外観タイル張り、保証人不要
|
|
間取図
|
外観
|
<
その他の画像
>
|
| 交通 | 東京メトロ半蔵門線 神保町駅 徒歩5分 |
|---|
| その他の交通 | JR総武線 水道橋駅 徒歩7分 JR中央線 御茶ノ水駅 徒歩10分 |
| 所在地 |
東京都千代田区神田神保町1丁目
|
| 物件種目 |
賃貸マンション |
| 賃料 |
13.3万円 |
管理費等 |
10,000円 |
| 敷金 / 保証金 |
1ヶ月 / なし |
礼金 |
1ヶ月 |
| 敷引 |
- |
保証金償却 |
- |
| その他一時金 |
24時間サポート:19,800円、鍵交換代:33,000円 |
保険等 |
要 2年 32,000円 |
| 維持費等 |
- |
クレジットカード決済 |
初期費用可 |
| 間取り |
1K(洋室8畳/K2畳) |
専有面積 |
27.39m² |
| 築年月 |
2020年11月(築5年4ヶ月)
|
階建 / 階 |
14階建 / 3階 |
| 建物構造 |
RC |
総戸数 |
- |
| 主要採光面 |
|
駐車場 |
- |
| バイク置き場 |
- |
駐輪場 |
有 |
| 建物名・部屋番号 |
|
ペット |
相談 |
| リフォーム履歴 |
- |
| リノベーション履歴 |
- |
| 備考 |
賃貸保証等:加入要(初回保証料:総賃料の50% 月次保証料:総賃料の1% Jリース)
管理形態/管理員の勤務形態:-/日勤
管理人日勤
ペット相談 楽器相談 床暖房
追炊き機能 ウォシュレット 洗面所独立 浴室乾燥機 グリル付 モニター付オートロック 宅配BOX
|
| エネルギー消費性能 |
- |
| 断熱性能 |
- |
| 目安光熱費 |
- |
| バス・トイレ |
ミストサウナ、バス・トイレ別、浴室暖房、浴室乾燥機、オートバス、追焚機能、洗面所独立、洗面台、シャワー、温水洗浄便座、トイレ |
| キッチン |
システムキッチン、2口コンロ、ガスコンロ付、グリル |
| セキュリティー |
モニター付オートロック、オートロック、モニター付インターホン、ディンプルキー、ダブルロックドア、防犯カメラ、火災警報器(報知機) |
| 収納 |
全居室収納、収納スペース、クローゼット、シューズボックス |
| 設備・サービス |
全居室エアコン、床暖房、室内洗濯機置場、洗濯機置場、給湯、全居室フローリング、フローリング、都市ガス、エアコン、暖房、冷房、人感センサー付照明、ダウンライト、照明器具 |
| TV・通信 |
インターネット対応、光ファイバー、BS端子、マルチメディアコンセント |
| その他 |
宅配BOX、バルコニー、駐輪場、エレベーター |
| 契約期間 |
2年 |
現況 |
居住中 |
| 条件等 |
- |
入居可能時期 |
相談 |
| 更新料 |
- |
物件番号 |
1119577617 |
| 情報公開日 |
2026年2月13日 |
次回更新予定日 |
2026年2月27日 |
| ケータイ用バーコード |
- スマートフォンでこの物件を見る
- スマートフォンからもこの物件をご覧になれます。
|
※「-」と表示されている項目については、情報提供会社にご確認ください。
| 周辺施設 |
マルエツプチ 神田神保町二丁目店 |
| 距離 |
216m |
写真を見る |
| 周辺施設 |
成城石井 神保町店 |
| 距離 |
592m |
写真を見る |
| 周辺施設 |
セブンイレブン 神田神保町1丁目店 |
| 距離 |
104m |
写真を見る |
| 周辺施設 |
ローソン 神田神保町白山通り店 |
| 距離 |
213m |
写真を見る |
| 周辺施設 |
マツモトキヨシ 神保町店 |
| 距離 |
167m |
写真を見る |
| 周辺施設 |
やよい軒 水道橋白山通り店 |
| 距離 |
193m |
写真を見る |
| 周辺施設 |
江戸前回転寿司 もりいち 神保町店 |
| 距離 |
195m |
写真を見る |
ここから簡単にお問い合わせをすることができます。
(SSLでの暗号化での送信を希望されるお客さまは
こちら
よりお問い合わせください)
お問い合わせを行う前に
「個人情報の取り扱いについて」を必ずお読みください。
「個人情報の取り扱いについて」に同意いただいた場合は「上記にご同意の上 確認画面へ進む」のボタンをクリックしてください。
個人情報の取り扱いについて
皆さまが送付された個人情報はアットホーム(株)のサーバを経由し、お問い合わせ先の不動産会社にメールまたはFAXにて転送されるためアットホーム(株)にも保管されます。アットホーム(株)で保管された個人情報の取り扱いについては、【こちら】をご覧ください。
また、本画面でご記入いただいた個人情報は、お問い合わせ先の不動産会社でも保管します。 お問い合わせ先の不動産会社が保管する個人情報の取り扱いについては、不動産会社に直接お問い合わせください。
東京都知事免許(2)第99909号 |
|---|
- 交通:
- JR総武線/水道橋駅 徒歩3分
- 東京都千代田区神田三崎町1丁目1-2 三崎町スカイフィールドビル1F
- TEL:
- 03-5280-7180
- FAX:
- 03-5280-7186
- 所属団体:
- (公社)全日本不動産協会会員(公社)首都圏不動産公正取引協議会加盟
取引態様:仲介  - 00261761
|
- スマートフォンで
この不動産会社を見る

|
- 提携サイト等より掲載されている物件情報につきましては、不動産会社詳細情報にリンクされていないものがあります。
- 物件に関するお問合せは、物件詳細ページの「情報提供会社」に表示されている不動産会社へ直接お願いいたします。
- 間取図は、現況を優先させていただきます。
- 映像は物件の一部を撮影したものです。物件の契約にあたっての最終判断はご自身の判断に基づいて行ってください。
- 仲介手数料について

アットホームは物件情報の適正化に努めております。
内容に誤りがある場合にはこちらへご連絡ください。