福岡県福岡市東区和白5丁目(和白駅)の賃貸:物件詳細
交通 所在地 |
駅徒歩 |
賃料 管理費等 |
敷金/保証金 礼金 |
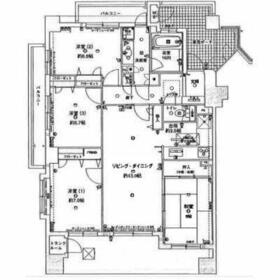
間取り 面積 |
物件種目 築年月 |
|
JR香椎線/和白
福岡県福岡市東区和白5丁目
|
7分
|
12万円
なし
|
1ヶ月 / なし
2ヶ月
|
4LDK
95.37m²
|
賃貸マンション
2003年2月(築22年9ヶ月)
|
分譲タイプ
|
|
間取図
|
外観
|
<
その他の画像
>
|
| 交通 | JR香椎線 和白駅 徒歩7分 |
|---|
| その他の交通 | 西鉄貝塚線 三苫駅 徒歩24分 西鉄貝塚線 唐の原駅 徒歩21分 |
| 所在地 |
福岡県福岡市東区和白5丁目
|
| 物件種目 |
賃貸マンション |
| 賃料 |
12万円 |
管理費等 |
なし |
| 敷金 / 保証金 |
1ヶ月 / なし |
礼金 |
2ヶ月 |
| 敷引 |
- |
保証金償却 |
- |
| その他一時金 |
室内清掃費用:77,000円、鍵交換代等:38,500円~ |
保険等 |
要 2年 20,000円 |
| 維持費等 |
口座振替料:440円/月 |
| 間取り |
4LDK |
専有面積 |
95.37m² |
| 築年月 |
2003年2月(築22年9ヶ月)
|
階建 / 階 |
10階建 / 1階 |
| 建物構造 |
SRC |
総戸数 |
- |
| 主要採光面 |
|
駐車場 |
無 |
| バイク置き場 |
- |
駐輪場 |
- |
| 建物名・部屋番号 |
サンリヤン和白 V 111 |
ペット |
-
|
| アピールポイント |
収納はシューズボックス・床下収納などが備え付けられているので、衣類や日用品の収納に重宝します。室内設備はシステムキッチン・洗面台などが揃っており、とても充実しています。セキュリティ面は、オートロック・TVインターホンなど充実しているので安心して生活できます。お風呂に入っているときに宅配業者が来てしまっても宅配ボックスがあるので、わざわざ出なくても荷物を受け取ることができます。駅まで徒歩7分なので、アクセスの良い物件です。素敵な生活を送るための近道、分譲賃貸です。忙しい時でも効率よく料理したい人におすすめな、3口コンロ付きの物件です。多くの方にご好評をいただいている、清潔感のある賃貸物件です。賃料は12万円です。実際に部屋を確認して納得の新居選びを。空き部屋であれば入居までスムーズです。2駅利用可能なので、用途や行き先に応じて経路を選択できます。 |
| リフォーム履歴 |
- |
| リノベーション履歴 |
- |
| 備考 |
賃貸保証等:利用可(有 ふれんず宅建保証(総額賃料の50%)※契約者や条件によっては、内容が変更になる場合があります。)
管理形態/管理員の勤務形態:-/-
|
| エネルギー消費性能 |
- |
| 断熱性能 |
- |
| 目安光熱費 |
- |
| バス・トイレ |
バス・トイレ別、洗面台、シャワー、温水洗浄便座、トイレ |
| キッチン |
システムキッチン、3口以上コンロ |
| セキュリティー |
モニター付オートロック、オートロック、モニター付インターホン、防犯カメラ、防犯用ガラス |
| 収納 |
収納スペース、シューズボックス、床下収納 |
| 設備・サービス |
室内洗濯機置場、洗濯機置場、都市ガス給湯、給湯、都市ガス |
| TV・通信 |
- |
| その他 |
宅配BOX、専用庭、バルコニー、エレベーター |
| 契約期間 |
2年 |
現況 |
空家 |
| 条件等 |
- |
入居可能時期 |
相談 |
| 更新料 |
- |
物件番号 |
1119702212 |
| 情報公開日 |
2025年10月24日 |
次回更新予定日 |
2025年11月7日 |
| ケータイ用バーコード |
- スマートフォンでこの物件を見る
- スマートフォンからもこの物件をご覧になれます。
|
※「-」と表示されている項目については、情報提供会社にご確認ください。
ここから簡単にお問い合わせをすることができます。
(SSLでの暗号化での送信を希望されるお客さまは
こちら
よりお問い合わせください)
お問い合わせを行う前に
「個人情報の取り扱いについて」を必ずお読みください。
「個人情報の取り扱いについて」に同意いただいた場合は「上記にご同意の上 確認画面へ進む」のボタンをクリックしてください。
個人情報の取り扱いについて
皆さまが送付された個人情報はアットホーム(株)のサーバを経由し、お問い合わせ先の不動産会社にメールまたはFAXにて転送されるためアットホーム(株)にも保管されます。アットホーム(株)で保管された個人情報の取り扱いについては、【こちら】をご覧ください。
また、本画面でご記入いただいた個人情報は、お問い合わせ先の不動産会社でも保管します。 お問い合わせ先の不動産会社が保管する個人情報の取り扱いについては、不動産会社に直接お問い合わせください。
福岡県知事免許(1)第19757号 |
|---|
- 交通:
- 地下鉄空港線/赤坂駅
- 福岡県福岡市中央区大名1丁目3-32 ラコルテ大名201
- TEL:
- 092-739-7123
- 所属団体:
- (公社)福岡県宅地建物取引業協会会員(一社)九州不動産公正取引協議会加盟
取引態様:仲介  - 80505927
|
- スマートフォンで
この不動産会社を見る

|
- 提携サイト等より掲載されている物件情報につきましては、不動産会社詳細情報にリンクされていないものがあります。
- 物件に関するお問合せは、物件詳細ページの「情報提供会社」に表示されている不動産会社へ直接お願いいたします。
- 間取図は、現況を優先させていただきます。
- 映像は物件の一部を撮影したものです。物件の契約にあたっての最終判断はご自身の判断に基づいて行ってください。
- 仲介手数料について

アットホームは物件情報の適正化に努めております。
内容に誤りがある場合にはこちらへご連絡ください。