大阪府大阪市東淀川区東中島4丁目(新大阪駅)の賃貸:物件詳細
交通 所在地 |
駅徒歩 |
賃料 管理費等 |
敷金/保証金 礼金 |
間取り 面積 |
物件種目 築年月 |
|
地下鉄御堂筋線/新大阪
大阪府大阪市東淀川区東中島4丁目
|
12分
|
6.9万円
3,500円
|
なし / なし
1ヶ月
|
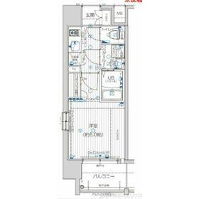
1K
21.46m²
|
賃貸マンション
2019年1月(築7年3ヶ月)
|
ペット相談、分譲タイプ、IT重説対応物件
|
|
間取図
間取図
|
外観
|
<
その他の画像
>
|
| 交通 | 地下鉄御堂筋線 新大阪駅 徒歩12分 |
|---|
| その他の交通 | 阪急京都線 崇禅寺駅 徒歩9分 阪急千里線 柴島駅 徒歩14分 |
| 所在地 |
大阪府大阪市東淀川区東中島4丁目
|
| 物件種目 |
賃貸マンション |
| 賃料 |
6.9万円 |
管理費等 |
3,500円 |
| 敷金 / 保証金 |
なし / なし |
礼金 |
1ヶ月 |
| 敷引 |
- |
保証金償却 |
- |
| その他一時金 |
室内清掃費用:38,500円、エアコンクリーニング代:11,000円、鍵交換代等:27,500円~ |
保険等 |
要 |
| 維持費等 |
- |
クレジットカード決済 |
初期費用可 |
| 間取り |
1K |
専有面積 |
21.46m² |
| 築年月 |
2019年1月(築7年3ヶ月)
|
階建 / 階 |
10階建 / 4階 |
| 建物構造 |
RC |
総戸数 |
123戸 |
| 主要採光面 |
|
駐車場 |
- |
| バイク置き場 |
有 |
駐輪場 |
有 |
| 建物名・部屋番号 |
エスリード新大阪グランファースト |
ペット |
相談 |
| アピールポイント |
東海道線「新大阪」徒歩6分です。高い耐久性や断熱・気密性、防音性に優れた鉄筋コンクリート構造です。女性やお子様にも安心のオートロック付き物件です。 |
| リフォーム履歴 |
- |
| リノベーション履歴 |
- |
| 備考 |
管理形態/管理員の勤務形態:-/-
IT重説対応物件
東海道線「新大阪」徒歩6分です。高い耐久性や断熱・気密性、防音性に優れた鉄筋コンクリート構造です。女性やお子様にも安心のオートロック付き物件です。
|
| エネルギー消費性能 |
- |
| 断熱性能 |
- |
| 目安光熱費 |
- |
| バス・トイレ |
バス・トイレ別、浴室乾燥機、洗面所独立、温水洗浄便座、トイレ |
| キッチン |
2口コンロ |
| セキュリティー |
オートロック、カードキー、防犯カメラ |
| 収納 |
クローゼット、シューズボックス |
| 設備・サービス |
室内洗濯機置場、都市ガス給湯、給湯、フローリング、都市ガス、エアコン、照明器具 |
| TV・通信 |
光ファイバー、ケーブルTV、CS、BS端子 |
| その他 |
宅配BOX、バイク置き場、バルコニー、駐輪場、エレベーター |
| 契約期間 |
1年 |
現況 |
居住中 |
| 条件等 |
- |
入居可能時期 |
2026年5月中旬予定 |
| 仲介手数料 |
0.55ヶ月 |
|
|
| 更新料 |
なし |
物件番号 |
1120253023 |
| 情報公開日 |
2026年3月23日 |
次回更新予定日 |
2026年4月7日 |
| ケータイ用バーコード |
- スマートフォンでこの物件を見る
- スマートフォンからもこの物件をご覧になれます。
|
※「-」と表示されている項目については、情報提供会社にご確認ください。
| 周辺施設 |
市立吹田市民病院 |
| 距離 |
6560m |
写真を見る |
| 周辺施設 |
私立大和大学 |
| 距離 |
4620m |
写真を見る |
| 周辺施設 |
吹田市役所 |
| 距離 |
3730m |
写真を見る |
| 周辺施設 |
社会医療法人愛仁会井上病院 |
| 距離 |
3740m |
写真を見る |
| 周辺施設 |
キリン堂吹田南金田店 |
| 距離 |
2900m |
写真を見る |
| 周辺施設 |
吹田内本町郵便局 |
| 距離 |
3640m |
写真を見る |
| 周辺施設 |
三菱UFJ銀行江坂支店 |
| 距離 |
3990m |
写真を見る |
ここから簡単にお問い合わせをすることができます。
(SSLでの暗号化での送信を希望されるお客さまは
こちら
よりお問い合わせください)
お問い合わせを行う前に
「個人情報の取り扱いについて」を必ずお読みください。
「個人情報の取り扱いについて」に同意いただいた場合は「上記にご同意の上 確認画面へ進む」のボタンをクリックしてください。
個人情報の取り扱いについて
皆さまが送付された個人情報はアットホーム(株)のサーバを経由し、お問い合わせ先の不動産会社にメールまたはFAXにて転送されるためアットホーム(株)にも保管されます。アットホーム(株)で保管された個人情報の取り扱いについては、【こちら】をご覧ください。
また、本画面でご記入いただいた個人情報は、お問い合わせ先の不動産会社でも保管します。 お問い合わせ先の不動産会社が保管する個人情報の取り扱いについては、不動産会社に直接お問い合わせください。
国土交通大臣免許(7)第5206号 |
|---|
- 交通:
- 地下鉄谷町線/天神橋筋六丁目駅 徒歩2分
- 大阪府大阪市北区本庄東1丁目6-21 ブリージェ天六ビル1階
- TEL:
- 0120-958-133
- FAX:
- 06-6377-6321
- 所属団体:
- (一社)大阪府宅地建物取引業協会会員(公社)近畿地区不動産公正取引協議会加盟
取引態様:仲介  - 50111805
|
- スマートフォンで
この不動産会社を見る

|
- 提携サイト等より掲載されている物件情報につきましては、不動産会社詳細情報にリンクされていないものがあります。
- 物件に関するお問合せは、物件詳細ページの「情報提供会社」に表示されている不動産会社へ直接お願いいたします。
- 間取図は、現況を優先させていただきます。
- 映像は物件の一部を撮影したものです。物件の契約にあたっての最終判断はご自身の判断に基づいて行ってください。
- 仲介手数料について

アットホームは物件情報の適正化に努めております。
内容に誤りがある場合にはこちらへご連絡ください。