東京都文京区本郷1丁目(水道橋駅)の賃貸:物件詳細
交通 所在地 |
駅徒歩 |
賃料 管理費等 |
敷金/保証金 礼金 |
間取り 面積 |
物件種目 築年月 |
|
都営三田線/水道橋
東京都文京区本郷1丁目
|
4分
|
34.3万円
20,000円
|
1ヶ月 / なし
なし
|
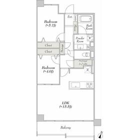
2LDK
60.00m²
|
賃貸マンション
1998年5月(築27年11ヶ月)
|
ペット相談、南向き、二人入居可、外観タイル張り、保証人不要
|
|
間取図
|
外観
|
<
その他の画像
>
|
| 交通 | 都営三田線 水道橋駅 徒歩4分 |
|---|
| その他の交通 | 東京メトロ丸ノ内線 本郷三丁目駅 徒歩6分 JR総武線 水道橋駅 徒歩7分 |
| 所在地 |
東京都文京区本郷1丁目
|
| 物件種目 |
賃貸マンション |
| 賃料 |
34.3万円 |
管理費等 |
20,000円 |
| 敷金 / 保証金 |
1ヶ月 / なし |
礼金 |
なし |
| 敷引 |
- |
保証金償却 |
- |
| その他一時金 |
24時間入居サポート:19,800円、鍵交換代等:27,500円~ |
保険等 |
要 2年 21,800円 |
| 維持費等 |
- |
| 間取り |
2LDK(LDK15.5、洋5.7、洋4) |
専有面積 |
60.00m² |
| 築年月 |
1998年5月(築27年11ヶ月)
|
階建 / 階 |
9階建 / 7階 |
| 建物構造 |
SRC |
総戸数 |
- |
| 主要採光面 |
南 |
駐車場 |
- |
| バイク置き場 |
有 11,000円/月 |
駐輪場 |
有 550円/月 |
| 建物名・部屋番号 |
ルミークアン本郷 |
ペット |
相談 |
| リフォーム履歴 |
- |
| リノベーション履歴 |
- |
| 備考 |
賃貸保証等:加入要(初回月額総賃料の40%~60%次年度以降14,000円~)
管理形態/管理員の勤務形態:-/巡回
管理人巡回
・短期解約違約金
・1年未満の解約/賃料の1ヶ月分
・トランクルーム:7,700円~33,000円(税込)
※写真・図面と現況が異なる場合、現況を優先させて頂きます
・駐車場:詳細要確認
・ペット飼育詳細要確認、+敷1
|
| エネルギー消費性能 |
- |
| 断熱性能 |
- |
| 目安光熱費 |
- |
| バス・トイレ |
バス・トイレ別、浴室乾燥機、追焚機能、洗面所独立、洗面所、シャワー、温水洗浄便座、トイレ |
| キッチン |
カウンターキッチン、システムキッチン、食器洗浄乾燥機、浄水器、3口以上コンロ、ガスコンロ可、グリル |
| セキュリティー |
モニター付オートロック、オートロック、モニター付インターホン、防犯カメラ |
| 収納 |
収納スペース、クローゼット、シューズボックス |
| 設備・サービス |
室内洗濯機置場、洗濯機置場、全居室フローリング、フローリング、都市ガス、エアコン |
| TV・通信 |
インターネット対応 |
| その他 |
宅配BOX、バイク置き場、バルコニー、駐輪場、エレベーター |
| 契約期間 |
2年 |
現況 |
空家 |
| 条件等 |
- |
入居可能時期 |
即時 |
| 更新料 |
新賃料 1ヶ月 |
物件番号 |
1120383015 |
| 情報公開日 |
2026年2月8日 |
次回更新予定日 |
2026年3月5日 |
| ケータイ用バーコード |
- スマートフォンでこの物件を見る
- スマートフォンからもこの物件をご覧になれます。
|
※「-」と表示されている項目については、情報提供会社にご確認ください。
| 周辺施設 |
バーガーキング 新宿靖国通り店 |
| 距離 |
92m |
写真を見る |
| 周辺施設 |
四谷警察署 花園交番 |
| 距離 |
251m |
写真を見る |
| 周辺施設 |
ドン・キホーテ 新宿東口本店 |
| 距離 |
190m |
写真を見る |
| 周辺施設 |
ミネドラッグ 新宿明治通店 |
| 距離 |
372m |
写真を見る |
| 周辺施設 |
薬マツモトキヨシ 新宿三丁目Part2店 |
| 距離 |
403m |
写真を見る |
| 周辺施設 |
ローソン 新宿三丁目北店 |
| 距離 |
406m |
写真を見る |
| 周辺施設 |
日高屋 西武新宿前北店 |
| 距離 |
386m |
写真を見る |
ここから簡単にお問い合わせをすることができます。
(SSLでの暗号化での送信を希望されるお客さまは
こちら
よりお問い合わせください)
お問い合わせを行う前に
「個人情報の取り扱いについて」を必ずお読みください。
「個人情報の取り扱いについて」に同意いただいた場合は「上記にご同意の上 確認画面へ進む」のボタンをクリックしてください。
個人情報の取り扱いについて
皆さまが送付された個人情報はアットホーム(株)のサーバを経由し、お問い合わせ先の不動産会社にメールまたはFAXにて転送されるためアットホーム(株)にも保管されます。アットホーム(株)で保管された個人情報の取り扱いについては、【こちら】をご覧ください。
また、本画面でご記入いただいた個人情報は、お問い合わせ先の不動産会社でも保管します。 お問い合わせ先の不動産会社が保管する個人情報の取り扱いについては、不動産会社に直接お問い合わせください。
東京都知事免許(3)第96228号 |
|---|
- 交通:
- 東京メトロ有楽町線/池袋駅 徒歩3分
- 東京都豊島区池袋2丁目53-1
- TEL:
- 03-5927-1172
- FAX:
- 03-5927-1173
- 所属団体:
- (公社)東京都宅地建物取引業協会会員(公社)首都圏不動産公正取引協議会加盟
取引態様:仲介  - 00279020
|
- スマートフォンで
この不動産会社を見る

|
- 提携サイト等より掲載されている物件情報につきましては、不動産会社詳細情報にリンクされていないものがあります。
- 物件に関するお問合せは、物件詳細ページの「情報提供会社」に表示されている不動産会社へ直接お願いいたします。
- 間取図は、現況を優先させていただきます。
- 映像は物件の一部を撮影したものです。物件の契約にあたっての最終判断はご自身の判断に基づいて行ってください。
- 仲介手数料について

アットホームは物件情報の適正化に努めております。
内容に誤りがある場合にはこちらへご連絡ください。