不動産 賃貸 マンション等の住宅情報:埼玉住まい情報


東京都江東区東雲1丁目(辰巳駅)の賃貸:物件詳細

  • 物件詳細
  • 情報の見方
  • 印刷用画面
交通
所在地
駅徒歩 賃料
管理費等
敷金/保証金
礼金
間取り
面積
物件種目
築年月

東京メトロ有楽町線/辰巳

東京都江東区東雲1丁目

10分

16.5万円

12,000円

1ヶ月 / なし

1ヶ月

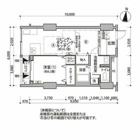
1LDK

54.71m²

賃貸マンション

2003年7月(築22年4ヶ月)

おすすめPOINTデザイナーズ、常時ゴミ出し可能、高齢者相談、二人入居可、閑静な住宅街、IT重説対応物件、保証人不要

おすすめコメント  スタッフ: 山本 冬馬

室内設備は洗面所独立・浴室乾燥機などが揃っており、とても充実しています。共用部には宅配ボックス・ゴミ出し24時間OKなど様々な設備やサービスが揃っているので便利です。

間取図

間取図

外観

外観

建物外観を気になさる方へ、見た目の良い物件です

<
その他の画像
  • リビング
  • キッチン
  • バス/シャワー
  • トイレ
  • 洗面
  • 室内
  • 収納
  • その他
  • 設備
  • 玄関
  • バルコニー
  • 共有部分
  • エントランス
  • その他
  • 小学校
  • 飲食店
  • その他
  • 銀行
  • 販売店
  • コンビニ
  • 販売店
  • 販売店
>
    • とりあえず保存
    • お問い合わせ
    交通

    東京メトロ有楽町線 辰巳駅 徒歩10分

    その他の交通

    りんかい線 東雲駅 徒歩11分

    新交通ゆりかもめ 豊洲駅 徒歩16分

    所在地 東京都江東区東雲1丁目
    物件種目 賃貸マンション
    賃料 16.5万円 管理費等 12,000円
    敷金 / 保証金 1ヶ月 / なし 礼金 1ヶ月
    敷引 保証金償却
    その他一時金 エアコン清掃費:28,600円、室内清掃費用:75,020円、鍵交換代等:33,000円~ 保険等 要 2年 16,550円
    維持費等
    間取り 1LDK(LDK14.1、洋6.2) 専有面積 54.71m²
    築年月 2003年7月(築22年4ヶ月) 階建 / 階 地上14階地下1階建 / 3階
    建物構造 RC 総戸数
    主要採光面 西 駐車場 近有 35,000円/月
    バイク置き場 駐輪場 有 無料
    建物名・部屋番号 東雲キャナルコートCODAN12号棟 ペット
    アピールポイント 共用部には敷地内ごみ置き場・エレベータ2基などが揃っております。室内設備は追い焚き・システムキッチン・床暖房など充実した設備を備え付けています。駅が周辺に2つあるので行動範囲が広がります。生活を快適にする設備も充実のこの物件は月16.5万円です。防犯カメラが設置されており、トラブルや犯罪への不安も和らぎます。BS・CSが利用可能なので、幅広いアニメや映画も楽しめます。バルコニー付きの物件でおすすめです。多くの方にご好評をいただいている、清潔感のある賃貸物件です。魅力的な駅近の物件で、駅まで徒歩10分です。
    リフォーム履歴
    リノベーション履歴
    備考
    賃貸保証等:加入要(レジデンシャルパートナーズ 保証料:賃料等の50%(最低2万)、月額保証・事務手数料:賃料等の1%(更新料無))
    管理形態/管理員の勤務形態:-/-
    IT重説対応物件
    セキュリティ面は、オートロック・TVインターホンなどを備え付けているので安心して暮らせます。収納はクロゼット・全居室収納などが備え付けられているので、衣類や日用品の収納に重宝します。共用部には宅配ボックス・ゴミ出し24時間OKなど様々な設備やサービスが揃っているので便利です。室内設備は洗面化粧台・浴室乾燥機など豊富に揃っており、過ごしやすいお部屋になっております。駅から徒歩10分の位置にある物件なので、アクセスも良好です。3口コンロが付いているので、同時にたくさん料理できるので毎日忙しい人におすすめです。2駅利用可能な物件なので、用途や行き先に応じて経路を選択できます。追い焚き機能のついた浴室なので翌日でも暖かいお風呂に入れます。物件の近くに駐車場があるので、車をお持ちの方はご利用ください。防犯カメラが付いているので、トラブルが発生した時も映像を確認できる安心感があります。閑静な住宅地にある物件です。
    エネルギー消費性能
    断熱性能
    目安光熱費
    バス・トイレ バス・トイレ別、浴室乾燥機、オートバス、追焚機能、洗面所独立、洗面所、温水洗浄便座、トイレ
    キッチン システムキッチン、3口以上コンロ、ガスコンロ可
    セキュリティー モニター付オートロック、オートロック、モニター付インターホン、防犯カメラ
    収納 全居室収納、収納スペース、クローゼット
    設備・サービス 全居室エアコン、エアコン2台以上、床暖房、室内洗濯機置場、洗濯機置場、全居室フローリング、フローリング、都市ガス、エアコン、暖房、冷房
    TV・通信 インターネット対応、CATVインターネット、ケーブルTV、CS、BS端子
    その他 宅配BOX、エレベーター2基以上、バルコニー、駐輪場、エレベーター
    契約期間 2年 現況 居住中
    条件等 入居可能時期 2025年12月中旬予定
    更新料 新賃料 1ヶ月 物件番号 1120453715
    情報公開日 2025年10月17日 次回更新予定日 2025年10月31日
    ケータイ用バーコード

    QRコード

    スマートフォンでこの物件を見る
    スマートフォンからもこの物件をご覧になれます。
    ※「-」と表示されている項目については、情報提供会社にご確認ください。

    この物件の周辺情報

    周辺施設 江東区立辰巳小学校
    距離 913m
    周辺施設 すきや橋次郎豊洲店
    距離 1438m
    周辺施設 辰巳の森緑道公園
    距離 1478m
    周辺施設 ゆうちょ銀行本店イオン東雲店内出張所
    距離 323m
    周辺施設 サカガミ グランルパ豊洲店
    距離 1269m
    周辺施設 ファミリーマート 江東東雲一丁目店
    距離 163m
    周辺施設 スーパービバホーム 豊洲店
    距離 1545m
    周辺施設 くすりの福太郎 東雲店 調剤専門店
    距離 277m

    クイックお問い合わせ

    ここから簡単にお問い合わせをすることができます。
    (SSLでの暗号化での送信を希望されるお客さまは こちら よりお問い合わせください)

    お問い合わせ内容(必須)
    お名前(必須) 姓  名 
    メールアドレス(必須)
    ※携帯電話のメールアドレスをご入力される方はこちらをご確認ください
    電話番号(必須)
    - -

    ※入力いただいた電話番号へSMSまたは音声でパスワードをご連絡します。

    携帯電話の番号をご入力の方へ

    携帯電話の番号をご入力の方へ
    確認画面にて送信ボタンをクリックするとSMSが携帯電話に届きます。
    そのSMSに記載のパスワード(認証番号)を入力し、お問い合わせを完了してください。
    尚、SMSの送信者番号は 0005 202 760 となります。
    これはアットホームの固定番号です。

    備考欄 希望条件、物件案内希望日、質問などがございましたらご記入ください。
    お問い合わせを行う前に「個人情報の取り扱いについて」を必ずお読みください。
    「個人情報の取り扱いについて」に同意いただいた場合は「上記にご同意の上 確認画面へ進む」のボタンをクリックしてください。

    個人情報の取り扱いについて

    皆さまが送付された個人情報はアットホーム(株)のサーバを経由し、お問い合わせ先の不動産会社にメールまたはFAXにて転送されるためアットホーム(株)にも保管されます。アットホーム(株)で保管された個人情報の取り扱いについては、【こちら】をご覧ください。
    また、本画面でご記入いただいた個人情報は、お問い合わせ先の不動産会社でも保管します。 お問い合わせ先の不動産会社が保管する個人情報の取り扱いについては、不動産会社に直接お問い合わせください。

    情報提供会社

    情報提供会社

    Sky Yard Property(株)

    東京都知事免許(1)第107337号

    交通:
    JR山手線/新橋駅 徒歩5分
    東京都中央区銀座8丁目11-1 GINZA GS BLD.2 7階
    TEL:
    03-6281-4770
    FAX:
    03-6281-4771
    所属団体:
    (公社)東京都宅地建物取引業協会会員
    (公社)首都圏不動産公正取引協議会加盟

    取引態様:仲介

    • 会社情報
    • 00271811
    スマートフォンで
    この不動産会社を見る
    QRコード
    • とりあえず保存
    • お問い合わせ
    • 提携サイト等より掲載されている物件情報につきましては、不動産会社詳細情報にリンクされていないものがあります。
    • 物件に関するお問合せは、物件詳細ページの「情報提供会社」に表示されている不動産会社へ直接お願いいたします。
    • 間取図は、現況を優先させていただきます。
    • 映像は物件の一部を撮影したものです。物件の契約にあたっての最終判断はご自身の判断に基づいて行ってください。
    • 仲介手数料について仲介手数料

    アットホームは物件情報の適正化に努めております。 内容に誤りがある場合にはこちらへご連絡ください。

    【埼玉住まい情報】では、日本全国の物件から賃貸マンションや賃貸アパート・賃貸一戸建て等の賃貸住宅情報、新築マンション・分譲マンションや中古マンション等の売買マンション情報、新築一戸建てや中古一戸建てなどの戸建住宅、 土地など、総合的な不動産住宅情報検索サービスを提供致します。
    【埼玉住まい情報】から、選りすぐりの不動産物件を探してみましょう。

    【免責事項】
    このコーナーの運営はアットホーム株式会社(https://www.athome.co.jp/)が行っています。
    このコーナーに掲載している物件情報は、「アットホーム不動産情報ネットワーク」に加盟する不動産会社等(情報提供元)から提供されています。信頼性の高い情報提供が行えるよう、最大限の努力をしておりますが、その内容を保証するものではありません。 利用者のみなさまと各情報提供元との取引に起因する損害および情報が掲載されたことに起因する損害等については、株式会社イーシティ埼玉、およびアットホームは一切責任を負いません。
    各物件情報の内容や画像等はすべて現況を優先させていただきます。
    お取引等(お取引の準備、資金調達等を含みます)の際には、内容や契約条件等について、各情報提供元より十分な説明を受け、ご自身でご確認の上、判断してください。
    このコーナーへの物件情報のご掲載、その他不動産業務ソリューション等についての不動産会社様のお問合せはこちらからお願いいたします。

    物件画像: